查看完整案例


收藏

下载
探索实践
探索材料的本质
Explore the nature of materials
寻找石料过程
The process of finding stone
建造艺术是空间所承载的时代意志。充满活力,不断变幻,日新月异。既非昨日,亦非明日,唯有这样的建筑能被塑造。从任务的本质而发,以我们时代的方式来塑造形式。这就是我们的工作。
—密斯·凡·德·罗
Ludwig Mies van der Rohe
设计材料:金属饰面、石材、石料
本项目设计的目标简单明晰,通过清晰的体块关系,将空间结构、售卖功能和展示功能结合,简化结构体系,精简结构构件,重视结构逻辑,使之产生流动空间。使用最简搭配和材料平铺净化建造形式。
希望通过本次空间为载体,尝试新的突破,与客群对话,实现品牌性格鲜明化,希望呈现的是一个前卫、有分享性的新零售空间。
“设计是一种以最佳方式实现特定目的的方式来布置元素的计划。”
——查尔斯·伊姆斯 Charles Eames
▼概览,preview
项目名称:| 冬·岩 SHOWROOM FORU|项目地点:| 河南 |Location|
Henan, China
Design Date | 设计时间:2021 年 01 月
Completion Date | 竣工时间:2021 年 05 月
设计机构:河南赤梁空间建筑设计有限公司
Interior Design | Red Beam space design Co, Ltd
软装设计:河南赤梁空间建筑设计有限公司
FF&E Design|Red Beam spacedesign Co, Ltd Interior Design 主案设计:张真 Article 撰文:张真、李海峰
Photographer|摄影: 张真 video|视频: 墨臻- 王兆琦
Photography in the late|摄影后期: 李海峰. 高俊奇 材料供应商:共造室内建材▼视频,video
▼轴测分析,axon diagram
▼门店外观 exterior view
外立面表皮采用工业语言,波浪铝板和透明玻璃,材质与尺度的克制营造建筑体量感,同时考虑场地性,恰当距离脱离周边环境。透过金属,捕捉光的温度。为了增强光的存在感,外墙玻璃光线透过圆孔,光线被赋予了体块变化,加深空间中体块之间的联系。
The facade skin adopts industrial language Wavy aluminum plate and transparent glass, with restraint in material and scale, to create a sense of building volume. At the same time, consider the site, separate from the surrounding environment at an appropriate distance, and capture the temperature of light through metal. In order to enhance the sense of existence of light, the light of the outer wall glass passes through the round hole, and the light is endowed with the change of the blocks, deepening the connection between the blocks in the space.
▼室内入口,Indoor entry
走过狭长的“圆筒”入户抵达前厅售卖,增加体块感,让人有种置于建筑空间之中场域转换体验。
Walk through the long and narrow "cylinder" to enter the house and sell in the vestibule, which adds a sense of volume and gives people a field conversion experience in the architectural space.
通过空间中“装置”体块之间的联系,完成前场售卖空间和动线之间的贯穿,赋予空间内更多的可能性。将售卖空间和展览空间合并,通过体块之间的自由关系,空间会更有可玩性以及进入空间获得不一样视觉体验。Through the connection between the "device" blocks in the space, the penetration between the front selling space and the moving line is completed, endowing the space with more possibilities. By combining the selling space with the exhibition space and through the free relationship between the volumes, the space will be more playable and have a different visual experience when entering the space.
废弃石料与建筑结构相结合
The waste stone is integrated into the building structure
寻找废弃矿山遗留石材与石材废料,使其延续自身价值与建筑逻辑,感受时间的痕迹;好的空间应是不同材料关系的和谐统一,在空间表达中统一相同的逻辑。
Look for the stone and stone waste left by abandoned mines, make them continue their own value and architectural logic, and feel the trace of time; A good space should be the harmonious unity of the relationship between different materials, and unify the same logic in the expression of space.
对待材质本身,它想成为谁,该用何种方式用以对待是此次的出发点,出发原点受王鹏启发与影响。尊重材质本身属性。
The starting point of this time is to treat the material itself, who it wants to be and how it should be treated. The starting point is inspired and influenced by Wang Peng. Respect the properties of the material itself.
楼梯单体轴测图
Axonometric diagram of staircase monomer
▼室内概览,interior preview
采用各种体块的金属以及部分灵动的元素,重组与延展金属纯粹材质,以先锋艺术的形式表现;配合局部橙红色的束带将细微的细节形成视觉冲击。
The design uses a variety of metal blocks and some smart elements, recombination and extension of pure metal material, in the form of avant-garde art. With the local orange-red ribbon will form subtle details visual impact.
建筑师的职责是让每一块砖头回归到它自己的位置,建筑师不是在圆自己的梦,而是在帮助砖头完成它们的梦想。”——路易斯•康
The display area.
玻璃、水、石头、钢材。这是对于密斯提倡的设计元素进行重组与构建,通过不锈钢金属杆件相互叠加,层层阵列,秩序带来仪式感。
Glass, water, stone, steel. This is the reorganization and construction of the design elements advocated by Mies. Through the superposition of stainless steel metal rods and layers of array, the order brings a sense of ceremony.
将 2F 展示区作为空间材质进行较为彻底的裸露,作为对“诚实美学”的初步尝试。玻璃、石头以及钢材等物质加入空间设计中运用,结构、功能和实用作为目标,将裸漏的结构毫无遮蔽的展示在现场和空间装置结合。Take 2F exhibition area as a space material for more thorough exposure, as a preliminary attempt to "honest aesthetics". Glass, stone, steel and other materials plus Use in space design, structure, function and practicality as the goal, and combine the naked and leaky structure with the space device on site.
对于骨架式建筑,密斯放弃通过添加“无意义”的艺术化形式来换取一种“更优越的美学”,就像年轻的尼采对历史主义的清算一样:“脱下外套,露出你们的真面目!”只有“更多的想法而不是材料”能够实现这样的目标:“我们任务的目标常常是简单明晰的。只有对其加以认识并开始设计,才能带来卓越的建造方案。For skeleton architecture, Mies gave up adding "meaningless" artistic forms in exchange for a "better aesthetics", just like young Nietzsche’s liquidation of Historicism: "take off your coat and show your true face!" Only "more ideas than materials" can achieve this goal: "the goal of our task is often simple and clear. Only by understanding it and starting design can we bring excellent construction solutions."
—《缺少艺术性的文字 密斯·凡·德·罗建造艺术论》
弗里茨·诺伊迈耶(Fritz Neumeyer)摘自王鹏
▼细节,Detailed view
任何事物,除却本身所存在的作用价值外,往往还包含着一层象征意义,透过它们的特征、姿态或内涵,便能读出。空间中各种体块的穿插融合,延伸到空间氛围中的视觉语言,赋予空间恰到好处的活力与趣味。
In addition to the value of their own existence, things often contain a layer of symbolic meaning, which can be understood through their characteristics, gestures, or connotations. The interpenetration and integration of various volumes in the space extends to the visual language in the space atmosphere; Endow the space with proper vitality and interest.
▼平面图,plan
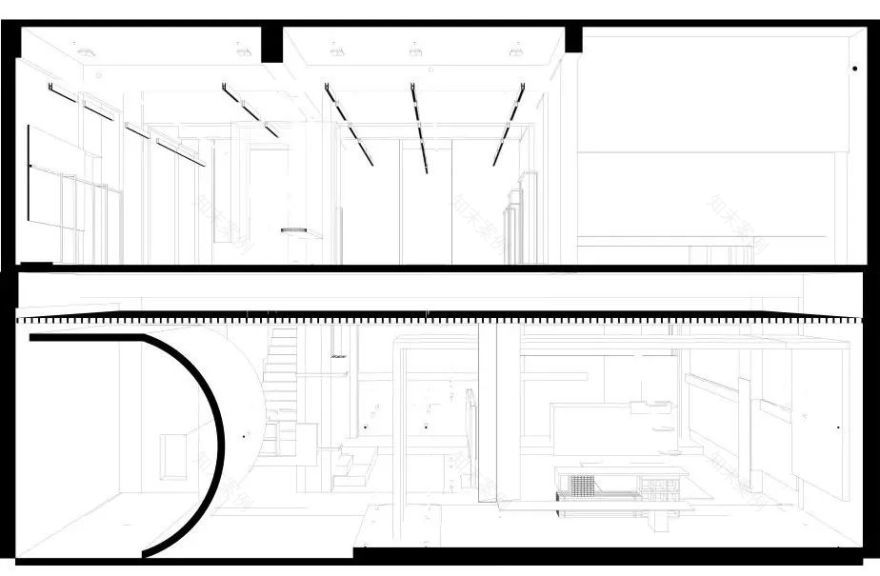
▼剖面图和结构细部,section and structure details
关于 | 赤梁 | RedBeam.DesignStudio.
张真 赤梁营造|RedBeam.DesignStudio. 创始人/设计主理人.
赤梁|RedBeam,DesignStudio.成立於河南·,設計團隊曾多年任職於國際知名設計機構,致力為不同行業的前瞻性客戶提供符合當代美學的居住及商業空間,作品致力於通過建構及空間介質關系,塑造東方語境下的當代性與在地性。
RedBeam, DesignStudio. Founded in Yuanyang, Henan Province. The design team has worked for many years in international well-known design institutions, and is committed to providing residential and commercial space in line with contemporary aesthetics for forward-looking customers in different industries. The work is committed to creating modernity and locality in the Oriental context through the construction and spatial medium relationship.
⊙ Address/中国郑州 金水区青年路 145#环球大厦 1301 室
⊙ Address /Global Building 145# Qingnian Road Zhengzhou.China
⊙ 设计咨询 /+86 17601312657
⊙ /+86 17601312657
⊙ Email
赤 梁 | 部 分 作 品 回 顾 Villa Madam 买手店 空 间 性 质 :商业零售
请点击上方图片了解项目的更多内容。Please click the picture below to know more about the project.
经济舱烧烤 CLUB 空间性质:商业餐厅。The nature of the Economy-class BBQ CLUB space: commercial restaurant.
请点击上方图片了解项目的更多内容。Please click the picture above to know more about the project.
河南集装箱图书馆空间性质:文化公建The spatial nature of Henan Container Library: Cultural public building.
请点击上方图片了解项目的更多内容... Please click the picture below to know more about the project... 浮光空间性质:住宅空间。
请点击上方图片了解项目的更多内容.
P l e a s e c l i c k t h e p i c t u r e b e l o w t o k n o w m o r e a b o u t t h e p r o j e c t.
客服
消息
收藏
下载
最近



























































