查看完整案例


收藏

下载
水韵·寒江雪
Water rhyme·Hanjiang snow
北冰洋大理石素雅白底,絮状白灰色纹理分布其中,空灵静美。
On the elegant white background of the Arctic Ocean, the flocculent white-gray texture is distributed among them, which is ethereal and beautiful.
独特的自然纹理与染色木面相呼应,勾勒的竖向线条缓和暗色调石材冰冷的质感。
Unique natural texture echoes the stained wood surface of the cabinet, the outlined vertical lines ease the cold texture of dark-tone stone. 氛围光源呼应于地面,展示整体空间平与衡。The atmosphere light source echoes the ground, highlighting the overall space balance. △ 项目实景拍摄 3DSCHEMATIC DIAGRAM
△ 项目立体解构图
PART 1
浅色木材与黑色立面的设计,配以中性色调的家具,营造空间的稳定性与安全感。电视背景墙右侧隐形门的设计让开放空间与隐私空间既互不打扰又可灵活联系。
客厅背景墙采用带有一定水韵感的寒江雪拼接黑色竖向木饰条,通过直观造型比例数值对比与转换,引导视觉区分吧台区域与客厅空间。
The background wall of the living room is made of black vertical wood decorative strips spliced with Hanjiang snow with a certain water rhyme. Through the comparison and conversion of visual modeling proportion values, the visual distinction between the bar area and the living room space is guided.
客厅直角型哑光砂质感皮面沙发搭配一组高低圆形黑色玻璃茶几,茶几表面为水波质感定制,沙发背靠与吧台空间相对应的木饰面,灰白色的绒面地毯,侧轴居中对称云石壁灯,间或点缀铜质元素,通过材质搭配,表达不同的空间情绪。
The right-angle matte sand leather sofa in the living room is matched with a set of customized water wave textures on the surface of the high and low round black glass tea table. It is backed by a wooden veneer corresponding to the bar space, a gray suede carpet, a marble wall lamp with a symmetrical side axis, and copper elements and materials are used occasionally to express different space emotions.
PART 2
入户不过分强调玄关的空间。吧台的高低比例,在扩展和充分利用空间的过程中探索可能性。
There is not too much emphasis on the entrance space. The ratio of bar height to bar height explores the possibility in the process of expanding and making full use of space.
贝加尔湖的拼接运用体制内的同类配色带来如同石材本身的混润感。墙体木面留比例的自然留缝,勾勒的竖向线条缓和了暗色调石材冰冷的质感。整体造型均做倒角设计使空间过渡自然。
The similar color scheme in the Splicing and application system of Lake Baikal brings a feeling of blending like the stone itself. The natural seam of the wood surface is left in proportion, and the outlined vertical lines ease the cold texture of dark-tone stone. The overall shape is chamfered to make the space transition natural.
PART 3
整体空间弱化装饰性。以地面的石材拼接分区作为敞开式的客厅、餐厅与吧台区域划分。墙面平行的直线条用以延长空间视觉感。
Looking at the overall space weakens the decoration. The stone splicing partition on the ground is used as the division of the open living room, dining room, and bar area. The straight line parallel to the wall is used to extend the visual sense of the space.
PART 4
空间本身的情绪感带给居住者的体验变化是否保持平与衡一直是在做这套案子设计的初衷。
The original intention of this case design is the change in the occupants’ experience brought by the emotional sense of whether the space is balanced or not.
PART 5
△ 项目设计改造前精装图
△ 项目拆除后施工现场 | 毛细管安装
△石材选样
△ 施工现场
△软装进场
PART6
INTERIOR PLAN
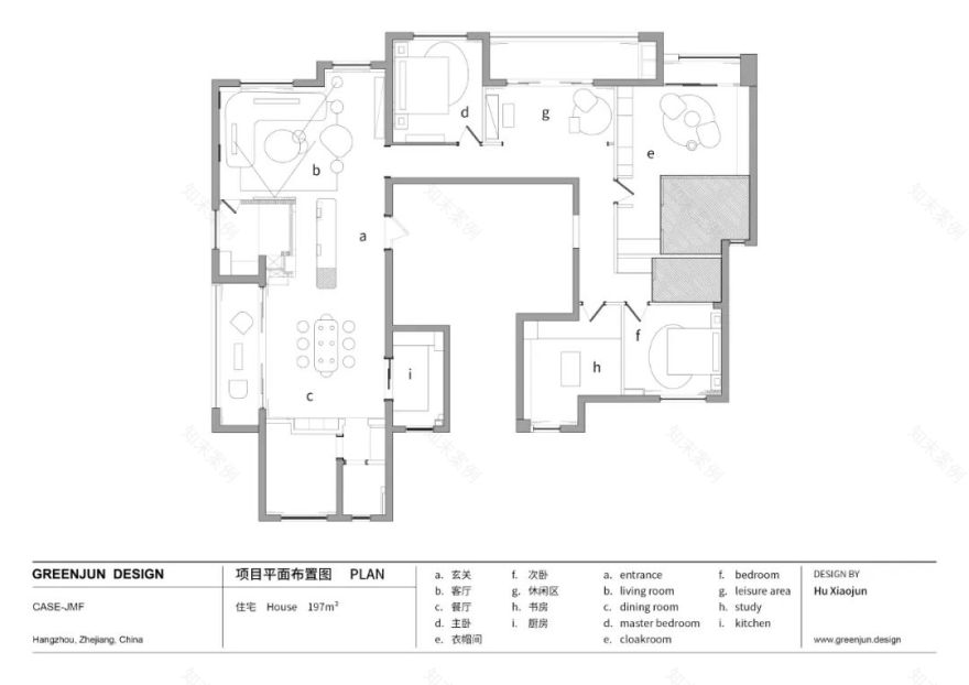
△ 项目平面布置图
项目名称 | JMF 平与衡(Parallelism and Balance)
项目类型 | 住宅
项目面积 | 197m²
项目地址 | 浙江省 杭州市 滨江区
主案设计 | GREENJUN
软装落地| GREENJUN
施工单位 | 杭州荣汇建筑装饰工程有限公司
木作品牌 | 上海尚伦家具制造有限公司
部分柜体| RARA
窗帘背景硬包|杭州阁绿家居有限公司
地板品牌 | REMEWOOD 如迷地板
项目摄影 | Tt
客服
消息
收藏
下载
最近
















































