查看完整案例


收藏

下载
空间·留给时间
Space - Leave it for time
时间是线状的,以几何线状饰条唤起对居宅的情绪。
开放空间以黑白灰作为相邻格调。
Time is linear, and geometric linear decorations arouse the emotion of dwelling house. The open space takes black, white and gray as the adjacent style.
暗棕色实木纹理基础铺设,蓄力沉静。私人空间采用淡灰柔光面辅以地面,释放感性。
Laying of dark solid wood texture foundation, Energy accumulation and calmness.
Private space with light gray soft glossy surface and floor, Release sensibility.
单向空间感受无二时光
One-way space feels no time.
△ 项目实景拍摄
3DSCHEMATIC DIAGRAM
△ 项目立体解构图
PART 1
客厅的电视机嵌入灰色纹理大理石背景墙,比例严谨。两侧玻璃质感吊灯的通透感,轴对称放置,营造空间的雅致秩序。原本的独立阳台空间调整涵盖进客厅沙发区域,提供绝佳的江景眺望视野,只以窗帘为界,模糊了内外分界之际。
The TV in the living room is embedded in the gray texture marble background wall, with a strict proportion. The transparent feeling of glass chandeliers on both sides, placed symmetrically, creates an elegant order of the space. The original independent balcony space adjustment covers the sofa area in the living room, providing an excellent view of the river, only bounded by curtains, blurring the boundary between inside and outside.
PART 2
以弧形电视背景墙为界,从玄关、客厅至书房,流线型吊顶造型横条纹深色木饰面引导视觉的纵向感官,连接三个半开放的功能空间为一个整体,成就彼此空间的整体感。
Taking the curved TV background wall as the boundary, from the porch, the living room to the study room, the streamlined ceiling with horizontal stripes and dark wood veneer guides the vertical sense of vision, connecting three semi-open functional spaces as a whole, and achieving the overall sense of each other’s space.
PART 3
主卧的定制柜体起到了空间隔断作用,十字型配置使空间格局宽敞舒适,满足了衣帽间的收纳功区划分。主卧空间使用柔和的倒角门框线条,低饱和的中性色调,营造轻松舒缓的氛围。
The customized cabinet body of the master bedroom plays the role of space partition. The cross configuration makes the spatial pattern spacious and comfortable, which meets the storage area division of the cloakroom. The master bedroom space uses soft chamfered door frame lines and low-saturated neutral tones to create a relaxing and soothing atmosphere.
PART 4
儿童房墙面、背景墙和天花选用奶白色一体的色系,搭配灰粽的窗帘和橡木色地面,整体格调纯净细腻。房间内过道处的造型镜面在担当舞蹈房功能的同时增添了空间的趣味性。
The walls, background walls and ceilings of children’s rooms are made of milk and white, with grey curtains and oak floors. The overall style is pure and delicate, and the modeling mirror at the aisle in the room plays the role of a dance room and adds interest to the space.
PART 5
所选材料包括深色橡木、三色大理石,在房屋的各个空间中交替使用,呼应与延伸。
The materials chosen include dark oak and tricolor marble, which are used alternately in various spaces of the house, echoing and extending.
PART 6
餐厅与吧台空间相连,在色调和材料的使用上保持了空间上的连贯性,黑色大理石包柱隔出餐厅卡座,搭配灰白拼色的餐椅与天然大理石石材餐桌,造就精致的就餐仪式感。卡座的顺毛质感中和整体硬朗的线条感。云石壁灯自带的透气絮状质感是这个空间呼吸的气口。
The dining room is connected to the bar space, maintaining spatial coherence in the use of tones and materials. The black marble wrapped pillar separates the dining room card table, with gray and white dining chairs and natural marble stone dining table, creating a sense of exquisite dining ritual. The velvety texture of the card holder neutralizes the overall tough line feeling. The self-contained breathable flocculent texture of the marble wall lamp is the air outlet for breathing in this space.
PART 7
这套设计线状成面,弱化过道,模糊空间与空间之间的融合。动静分区,保持相对独立空间。
This design is linear and planar, weakening the corridor and blurring the integration between space and space. Dynamic and static partition, keep relatively independent space. INTERIOR PLAN
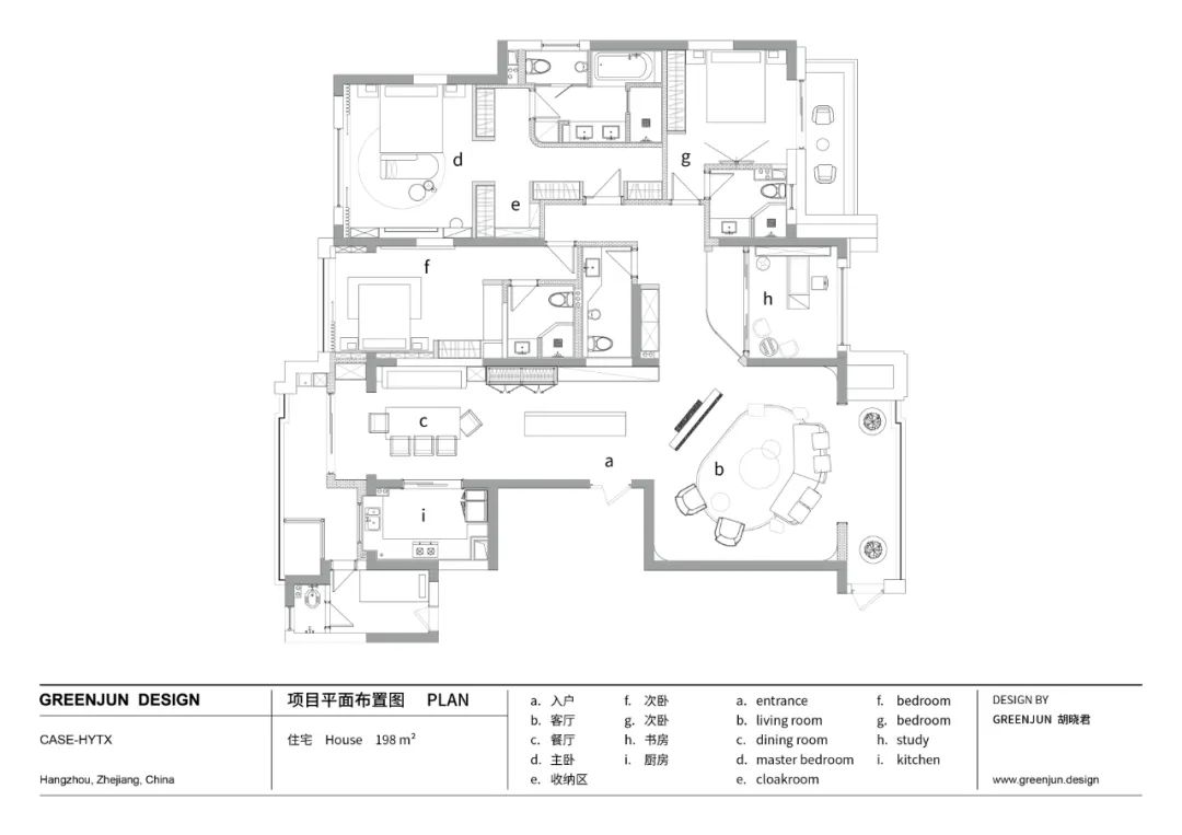
△ 项目平面布置图
项目名称 | HYTX 线状纵(Longitudinal Line)
项目类型 | 住宅
项目面积 | 198 m²
项目地址 | 浙江省 杭州市 滨江区
主案设计 | GREENJUN
软装落地| GREENJUN
施工单位 | 杭州极物装饰工程有限公司
木作品牌 | RARA
墙体饰面| 上海尚伦家具制造有限公司
窗帘背景硬包| 杭州阁绿家居有限公司
地板品牌 | REMEWOOD 如迷地板
项目摄影 | Tt
客服
消息
收藏
下载
最近




















































