查看完整案例

收藏

下载
生活就像一部琐碎又温暖的剧,
你不着痕迹的欢喜都藏在你热爱的每一个空间里,
那是经历时间发酵的红酒流入出的浓重色彩,
亦是轻盈在光晕晕染之间的悠长......
项 目 名 称 | 舟山|长峙岛|翡翠苑
项 目 面 积 | 400
㎡+
主创设计师 | 周宽
设 计 风 格 | 新古典
软 装 设 计 | 致·美软装
项 目 主 材 |
天然石材 、美学地板、混油木饰面、不锈钢、铜艺等
◆地下室平面规划图◆
▼ 负一层客厅|basement living room
进入地下室区域,复杂多变的天花在独有的空间高度下更具层次感,在不同大理石色彩与铜镜的衬托下摆放的大理石壁炉与黑胶留声机就显得尤为典雅复古,毗连的开放式吧区设有高光吧台、定制红酒柜,让户主与三五知己把酒言欢,细意品味生活。
▼ 休闲区|basement recreation area
经过酒吧区后转向棋牌室,地面大理石拼花与石膏线相辅相成可见设计师的用心所作,精心挑来的古典边柜增添了整个空间的艺术色彩。与之一墙之隔的是休闲影音区域,配置专业设备和容纳多人的沙发,是户主在小憩中享受与亲朋好友高歌一曲的私人场所。
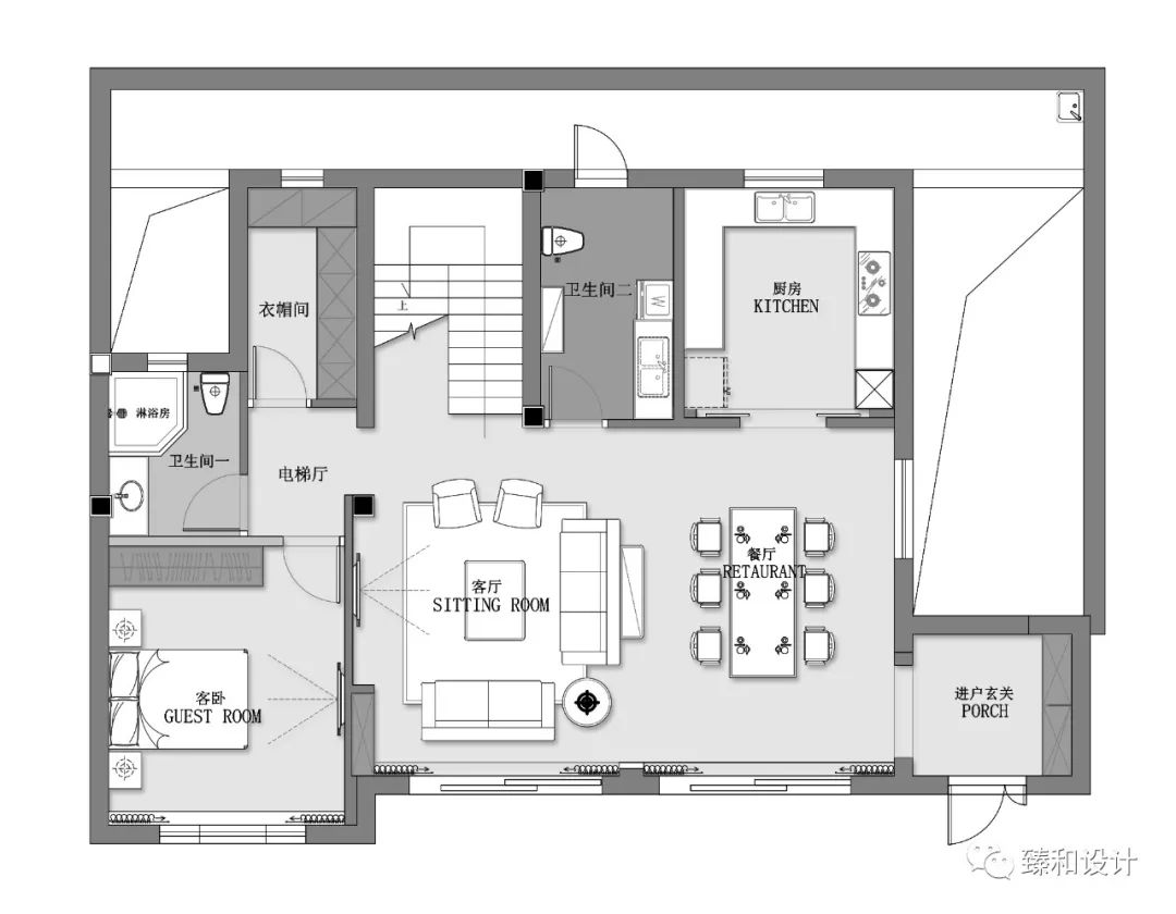
◆一楼平面规划图◆
▼ 入户|entrance hall
以黑与金交织出沉稳、型格却不失高贵的特质,並以简洁利落的线条勾勒出洒脱的气魄,整个空间以卢卡黄为主调,辅以黑檀点缀,摆放了刚柔并济的家具,营造时尚的高贵格调。
▼ 一层客厅|first floor living room
客厅弧形天花相配黑金花大理石,背景对称的独特设计搭配古典情怀的家具饰品为空间增添浪漫的质感,高光黑檀的细节,建立起空间与人的情感链接,彰显主人富有内蕴的艺术眼界与生活品味。
▼ 一层餐厅|first floor restaurant
与客厅互动的厨房及餐厅在色调和材料的使用上,保持了空间的连贯性,一盏夺目的水晶灯具映射于此,搭配别致的餐椅,让生活更添艺术色彩。
▼ 一层客房|first floor guest room
秋日的暖黄配衬香槟金背景,实木质感配衬不锈钢线条缀边,在温柔的色调下散发优雅尊贵的感觉。
◆二楼平面规划图◆
▼ 二层主卧|second floor master room
主人睡房贯彻整体设计,一室以实木棕基调,米白色织纹床背衬上同色系硬包;水晶吊坠床头壁灯与吊灯是卧室一大亮点,香槟金的古典纱幔和线条流畅的啡色单人座椅,散发成熟、趋时的感觉,步入式衣帽间依旧是熟悉的高光黑檀,可谓是知性女人的梦想空间。
▼ 二层书房|second floor santctum
设计师悉心地以一道夹丝玻璃趟门轻轻分隔廊道和书房,营造沉实写意的阅读、工作空间,保持室内开阔的空间感。书房内,实木玻璃书柜与同色调的雕花桌椅互相映衬,点点滴滴透露出细节之美感。
▼ 卫生间|the bathroom
设计师巧妙地把背景大理石柱与定制卫浴融于一体,墙面与地面的拼花造型相互呼应,令人眼前一亮。
▼ 二层女儿房|second floor daughter room
圆形天花对应下的香槟色家具、古典独特的梳妆台,灰色基调的窗帘与实木线条相碰撞,焕发低调刚柔并重的气氛。
剧里剧外,局里局外
在细碎的时光里,能有这样一个闲暇之地
如同《唐顿庄园》中的伯爵宅邸
带着属于家的温暖、舒适与惬意
只一眼,便心生欢喜....
..
客服
消息
收藏
下载
最近

































