查看完整案例

收藏

下载
项 目 名 称:舟山|临城|邦泰城. 排屋
项 目 面 积:350
㎡
主创设计师:徐诺.童莹
设 计 风 格:美式风
软 装 设 计:致·美软装
项 目
主 材:意大利进口砖 进口墙纸、美学地板、实木护墙板和艺术漆等
地下室原始框架图
地下室平面规划图
一楼原始框架图
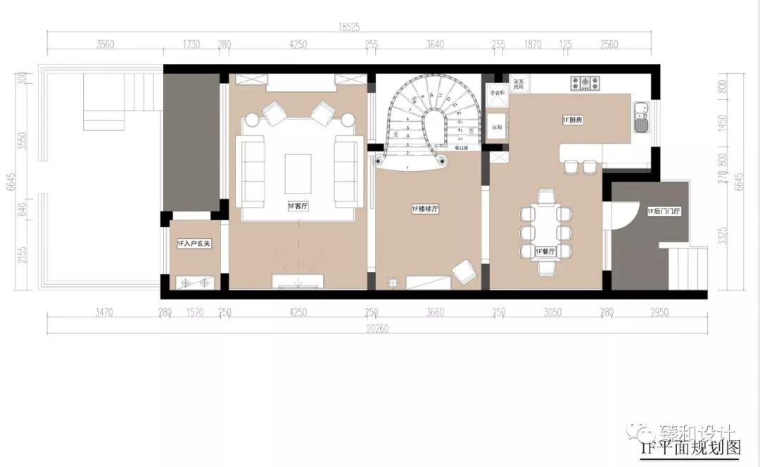
一楼平面规划图
二楼原始框架图
二楼平面规划图
三楼原始框架图
三楼平面规划图
效果图展示
如果上帝讲究细节的话,那么在这座美式风格的住宅中,他将会感到非常舒适自如。本案设计师很注重空间色彩的搭配,几乎每个空间都采用同一色系的色彩来营造一种氛围与格调。
实景图展示
—— 客 · 厅 ——
整体空间设计师都选用了深色实木元素,大面积的进口仿古砖从视觉上给人以浓浓的美式感。软装配饰上设计师选用古典的布艺沙发,深色系的背景在美式吊灯的光源下更显优雅。绿植的搭配跳脱了整体空间的沉静,更显青春活力。
—— 厨房 ·餐厅 ——
开放式的设计让厨房与餐厅,无论从空间感、美感及功能上都给人带来愉悦的体验,让主人在做饭的同时也可以与家人交流享受居家生活的乐趣。作为美式风来说厨房与餐厅的气质是典雅的,设计师选择深色的实木餐桌椅搭配美式复古吊灯,你会觉得就餐也是一种仪式感。
—— 卧 ·室 ——
卧室温馨而大气,这样的实木床搭配美式风刚刚好。一丝硬朗,一丝大气,一丝温馨,这便是最好的美式卧室。
—— 楼 · 梯 ——
楼梯是一套房子的灵魂,为了凸显空间的美感在浇筑楼梯时顺带做了一点弧度,不会显得过于生硬而失去了柔和之美。楼梯踏步实木地板配上同色系的扶手相得益彰,整体旋转而上显得十分优雅。
独家首发,未经授权,请勿盗用
主案设计——徐诺、童莹
臻和设计机构
地址:临城定沈路620号金跃大厦7楼
客服
消息
收藏
下载
最近























