查看完整案例


收藏

下载
设计风格 | Design style
【现代轻奢】
面积|Square Meters:500㎡
案例作品 | Case work:绿城玉兰花园
设计师 | Designer:熊胜
案例简介
Case description
为人之美,在于简约;处世之美,在于利落;胸怀之美,在于广阔;聚散之美,在于淡泊;内在之美,在于愉悦。寄居于明媚的阳光下,让人有种源自广博自然的平凡、温存与恬静。
【一楼平面图】
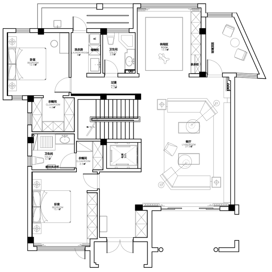
【二楼平面图】
【三楼平面图】
案例外观一览
设计师介绍
熊胜 XIONGSHENG 主任设计师 设计理念 Design concept 房子不是家,有温度,心安处,才是家。每一个空间都有它最佳的体验方式,让自然不再有界,做一个生活的翻译家。代表作品 Representative works:金湖听雨、华侨城原岸、碧桂园天玺湾、力高雍湖湾、华发外滩首府、绿城玉兰花园、北辰优+、蔚湖轩 获得荣誉 Get the honor 荣获 2013 年红鼎奖优秀作品奖 中国建筑学会 CIID 注册室内建筑师 中国建筑学会室内设计分会会员 荣获 2019 年 APDC 亚太设计精英邀请赛佳作奖 荣获意大利 A’Design 全球大奖设计类铜奖 2019 届中央美院进修班 案例介绍
●客厅
客厅遵循现代风格的简约,整体采用比较温和的色调,典雅而不过度的装饰,摒弃镶金镀银的浮华人生,家的每一处细节都感人而温馨。
●餐厅
●餐厅
花艺的加入增添了自然生活的气息,生活方式如同一层层记忆在空间中渐次打开。
● 主卧
卧室的暖色调,给空间带来恰到好处的沉静感,注重美和形式感,硬包和金属打造独特的床背景,富有质感的灯具、舒适柔软的床品,使空间更富有生活情感,彰显主人的品味与格调。整个卧室舒适且放松,富有气质且带有时尚感,贴合当代人的审美喜好,远离喧嚣,尽享安静和恬淡的夜。
● 次卧
● 卧室有拥抱,这就是幸福!低调优雅的高级灰厨房,与生俱来的谦逊与深沉,不张扬,不浮夸,释放着独一无二的气场。
●老人房
●设计师采用明亮淡雅的色彩,让居住者的心情也跟着晴朗,唯有阳光和美好的心情,是孩子对父母不可辜负的馈赠。
● 茶室
● 茶室是一个家庭文化品味的体现,是一个家庭中爱好、文化和情感的寄托,在这里不仅仅可以陪伴孩子们一起读书、娱乐,更可以在闲暇之余的片刻心灵沉淀,身在其中就能感受到身心的放松,阅读与工作都能事半功倍。
● 浴室
● 浴室也与之前的淡雅素净一脉相承,干湿分离最大限度保证空间的舒适性,硬朗黑色线条流畅点缀,低调不低俗。
绿城 · 玉兰花园——玫瑰湾动画示例
了解更多经典案例或拨打 4000-155-886。文章底部左下角点击阅读原文往期经典案例。
时光剪影,来自未完待续的生活……
低调,舒适,却无损其高贵与雅致……
交响法式古典,考究贵族生活……
黄州书院&高度国际——追溯书院文化的庭院生活
……
碧桂园·忆西湖&高度国际——内外兼修的美
实景案例|心怀浪漫,袅绕人间烟火
……
精致的空间,有温度的生活——现代装修风格
实景案例|奢华是一种想象力,蓝与白的仪式感空间
Less is more——极简装修风格
莫奈色,栖居的温度与自由……
知音盛棠&高度国际——城市山水院,往来皆人物
实景案例|浪漫蒂芙尼蓝,成就最温柔的美式家
……
实景案例|光影流转间,尽是舒适与惬意
实景案例|静·境——家是自由与安静并存的优雅
……
高度国际装饰设计集团武汉公司
武汉公司:武汉市武昌区汉街总部国际 C 座 20 层
尊享热线:4000-155-886
客服
消息
收藏
下载
最近























