查看完整案例


收藏

下载
空间并非填充物体的容器,而是人类意识的居所。——[法] 加斯东·巴什拉
在《空间诗学》这本书中,巴什拉认为空间并非填充物体的容器,而是人类意识的居所。他说:“被我们所体验到的家屋,并不是一个迟钝的盒子,被居住过的空间实已超越了几何学的空间。”
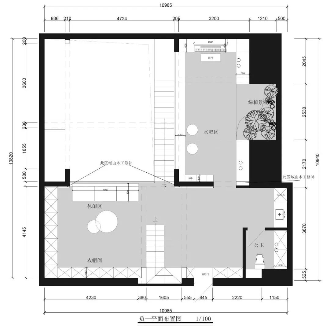
1 简而不减 Simple butRich 阳光灿烂的下午,当孩子们在被阳光包裹着的室内阳台区域嬉戏时,闺蜜们则可以慵懒的躺在客厅区域宽大的沙发上闲聊......
空间,不仅仅是为功能而生,也是一个具有生命力、更加流动的社会舞台。《空间诗学》中最精彩之处,莫过于对于亲密空间的描绘与想象。他指出家是人在世界的角落,庇护白日梦,也保护做梦者。家的意象反映了亲密、孤独、热情的意象。
在社交媒体逐渐操控人类社交模式的时代,面对面的交流正在变得越来越珍贵。让客餐厅成为灵活多变的多元空间,可以在家庭聚餐、朋友酒会、亲子烘焙和手工活动、临时办公、读书会等各种活动中轻松转换,并将亲密空间的描绘与想象,渗透到居住着的日常。
2 理性之美 The Beauty Of Reason
《空间诗学》中最精彩之处,莫过于对于亲密空间的描绘与想象。他指出家是人在世界的角落,庇护白日梦,也保护做梦者。家的意象反映了亲密、孤独、热情的意象。
摆脱传统的以隔墙来控制布局的模式,使空间灵活多变,在保证私密性的同时,使空间更具动态与实用性。
“美并不在物体本身,而在物体与物体之间阴影的交错与明暗之中。”——谷崎润一郎《阴翳礼赞》
任何设计都将面临着生活必要性的课题,尤其我们正受着环境资源递减的挑战。本案的设计中,空间的材料的选择以科学美作为学后盾,以生活的必要性为前提。
3 界限消失
BoarderVanishing
“在家屋和宇宙之间,这种动态的对峙当中,我们已经远离了任何单纯的几何学形式的参考架构。
▽
项目信息 ABOUT THE PROJECT
项目名称丨朝阳金泰中央公园
设计机构丨趙岩设计研究室
设计总监丨趙岩
项目主人丨小李老师
项目类型丨硬装设计,软装搭配
项目面积丨288
常住成员丨三口之家
主要材质丨木、石材
主题配色丨暖灰、黑、胡桃木
项目地点丨辽宁·沈阳
设计团队丨于滨铖/章文/王禹博/周鑫/付苗苗
设计时间丨2020 年 11 月
关于 ZHAOYANlDesign
▽
趙岩
设计主理人/创始人
鲁迅美术学院建筑学学士设计
沈阳工学院客座讲师
现代简约设计先行者,都市精英生活方式引导者,赵岩设计研究室创始人
近年来获得诸多国内外室内设计大奖
赵岩设计研究室是一家国际前沿的室内设计机构
作为集室内设计、环境设计、软装设计等一体化的综合性专业设计公司致力于当代新人居观念的启迪与更新,为设计提供更多可能。
是一家以室内设计、家居软装设计及落地为核心业务的独立设计事务所。
始终秉承“设计创造价值,品质改变生活”的理念,从设计概念引导分析及系统化的项目管理经验,拥有国际化的设计视野与专业化的设计团队。
整合建筑、景观、智能化等产业链资源,对于作品具有严苛且完整的把控度。
以开放虔诚的态度,妥帖的设计手法,最大程度的尊重原生环境及地域文化特点,做到“顺势而为”的室内设计。
作品期望能提供一种精致、温润、被感知而非可见的设计体验,使人们乐于生活和工作其间。
Design&Value
设计创造价值
▸ 客户价值
新时代精英,年轻、国际化,他们不再以奢华为唯一标准,更多地以人文、艺术为价值取向,追求自由、惬意的生活方式。
▸ 创造客户价值
不纯粹为设计而设计,更多地从客户诉求出发,将不同的风格与时代元素糅合、重组,提供不同场景下的设计解决方案,为人们带来惬意与美的居住体验。
▸ 客户价值与社会价值趋同
对于当代新青年而言,家已不再是简单的居住空间,而是让心灵惬意栖居的地方。设计在为客户创造价值的同时,也创造了属于当代人多元、包容的生活美学,让设计美好生活、品位生活。
简约是一种态度,在有限的年华里,活出无法复刻的人生。
ADD:沈阳市浑南红星美凯龙
客服
消息
收藏
下载
最近





















