查看完整案例


收藏

下载
「 2019
DESIGN · 私宅实景
」
- Location · 地址 -
成都,金牛区
- Square Meters · 面积 -
140㎡
- Design · 设计负责 -
拾光悠然设计
- Mode · 服务模式 -
全案设计+施工服务
Demand 1.
精装房硬装+软装改造
Demand
2
.
客厅电视背景墙+隐形门
Demand 3
.
三室连通=主卧、书房、儿童房形成隔而不断的布局
在写今天的这套
案例前
,我想讲点不一样的
故事
,甚至可以解释
为
一种在生活中容易忽略的现象。
在从事室内设计运营期间,与朋友聊起他的小时候,特别害怕单独一个人在密闭的空间睡觉,特别没有安全感,还常做噩梦,总希望父母能够在睡觉的的时候也多些陪伴在自己身边甚至还梦游到父母的房间过,但父母也需要自己独立的私人空间。
要是小时候的房子能有一种让父母在拥有一定私人空间的同时还能做到孩子的陪伴,保证孩子安全感的室内设计。
而这样的解决方案就将在这套案例里与屋主和他们的小家呈现,既是现在有趣的二人世界未来也是温暖三口之家。
(图中同事临时串场当一回模特,哈哈哈)
原木餐桌上记录着屋主们饮食生活习惯的点滴,春夏秋冬四季交替,在这个餐桌上记录着屋主一家的人生喜乐。
客厅现场木作电视墙与隐形门的结合,创造室内空间的无限可能。
为
接下来的主卧,书房、次卧及客厅形成隔而不断的空间提供必要前提条件。
借阳台的日光星辰聊天、阅读、亦或是游戏,不论是二人世界还是一家三口,这个家都能包容成长。
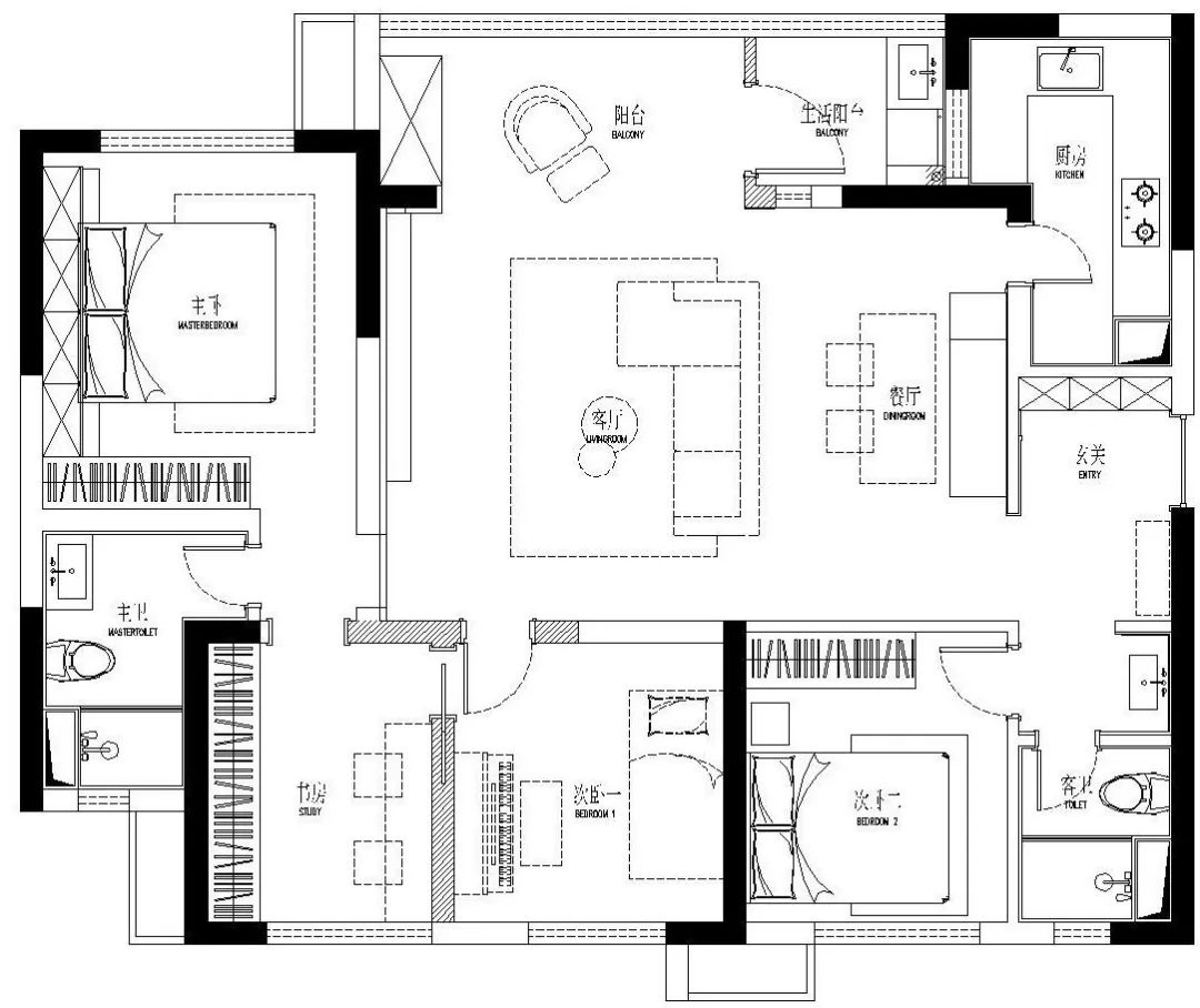
主卧+书房+次卧:
这个家的设计有趣之处便是到达主卧的动线,非常灵活
线路1:
客厅→主卧
线路2:
主卧→书房→儿童房『次卧一』
次卧作为未来的儿童房,当孩子年幼时,大人既可一边工作同时还能照顾到孩子在次卧里的一举一动;
当孩子休息时,关上次卧变成孩子的独立休息室;
而孩子随着孩子逐渐成长,辅导孩子或独自学习做作业,都不会影响到主卧休息的人。
静谧的蓝灰,磨砂黑的门框与小物件,是质感也是生活态度。
由于原始户型开门见山式的入户表现,从风水学上来讲容易让外气从大门直接冲入客厅,所以隔断设计不光是拯救风水上的影响。
其次还能给屋主带来一些隐私性,在入户时给人一种“犹抱琵琶半遮面”的感觉。
SHI GUANG YOU RAN DESIGN
拾光悠然设计成立于2015年。
从最初3个人发展至今,现在我们已拥有成熟的运营团队、设计团队及设计执行团队(工程落地) 共20余人。
5年时间我们为100多位业主提供了EPC交钥匙服务,拥有100多项标准的SOP流程去确保每个项目的服务标准化与专业度。
我们不care项目的大小与风格,追求去风格化设计,追求一切设计都回归实用性,我们愿意为提升空间价值而不断努力创造。
更多案例
客服
消息
收藏
下载
最近




























