查看完整案例


收藏

下载
「 2019
DESIGN · 私宅实景
」
- Location · 地址 -
成都,双流区
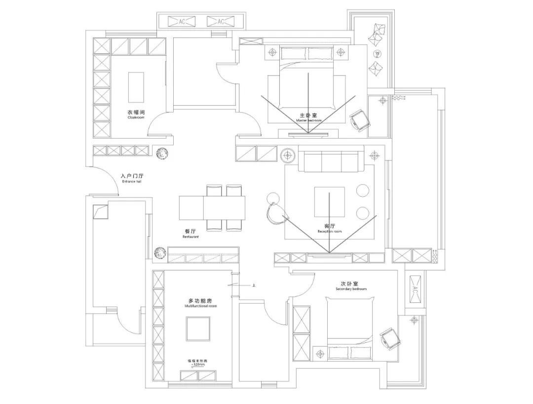
- Square Meters · 面积 -
140㎡
- Design · 设计负责 -
拾光悠然设计
- Mode · 服务模式 -
全案设计+施工服务
Demand 1.
家里有两只宠物,需要宠物的玩耍空间和大量的宠物用品需要储存收纳。
Demand
2
.
房屋的所有地板希望都能够替换掉,日式简约风希望是整个屋子的基调。
Demand 3
.
希望能在卧室电视旁弄个给老公玩电脑的桌子。
Demand 4
.
可以改造两个房间做衣帽间和榻榻米会客室。
Solution 1.
客厅的大部分区域都设计了收纳柜来储存物品。
Solution 2.
在卧室、阳台、房门都留了猫洞,让猫主子可以在这个屋里自由穿梭。
Solution 3.
客厅和卧室都设计了桌子方便屋主办公等。
本案例是一套经典“开发商式风格“的精装房,140m²的传统套四,屋主是一对从事金融与IT的年轻夫妇,喜欢冰岛、宠物、潜水、骑行、拳击。
两种严谨的职业,碰上了一对有趣的灵魂,他们的家也是趣味满满。
但传统精装房的设计让屋主小两口收房后表达了满满槽意,用女主人的原话就是(精装修都很丑、大理石客厅地板好丑、卧室地板深红色也很丑、踢脚线也很丑。
。
。
)
于是,在强烈改造的念头下,有了现在他们期待的生活状态,在他们的温馨小家里实现着现代大户人家的目标:
猫狗双全,人生美满。
考虑到宠物的生命安全等因素,全封闭阳台是养宠人家首要的条件。
客厅做了边顶,从而扩大卧室空间。
餐桌对面的操作台,是厨房的延伸区、也可做西厨使用,烘焙或者摆放小家电都随自己心意。
改造前细节:
原始户型没有做太大的改变,主要改造的是地板和鞋柜部分,厨房保留了原貌。
大
量的原木元素,温馨且自然
。
餐厅的两把藤编椅是女主人特意选的。
可伸缩餐桌,不光满足屋主俩的日常下厨,偶尔三五客人造访也不用担心坐不下了。
在书桌下专门为猫留了猫洞,与宠物近距离亲近。
阳光透过百叶窗倾泻到卧室的每个角落,与爱的他们共同呆在一个空间完成所有的事情。
Ctrl+C的主卧模式,给你Double 份的舒适与暖意。
独立衣帽间是每个女孩的梦想,而可爱的女主人怎么能不拥有呢!!
设计榻榻米的初衷是女主人希望有亲人朋友来家里有可以会客、玩耍的独立区域.
SHI GUANG YOU RAN DESIGN
拾光悠然设计成立于2015年。
从最初3个人发展至今,现在我们已拥有成熟的运营团队、设计团队及设计执行团队(工程落地) 共20余人。
5年时间我们为100多位业主提供了EPC交钥匙服务,拥有100多项标准的SOP流程去确保每个项目的服务标准化与专业度。
我们不care项目的大小与风格,追求去风格化设计,追求一切设计都回归实用性,我们愿意为提升空间价值而不断努力创造。
更多案例
客服
消息
收藏
下载
最近































