查看完整案例


收藏

下载
时尚之家
项目类型 | 居住空间
项目设计| 童振锋
曾有人言:
艺术必须从理性出发,
当主观思想感情与理性起了冲突,
我们要克制自己的感情。
本案业主是年轻时尚人士,她希望家是温馨、敞亮、舒适的。因此整套设计并没有运用过多色彩,主要以木色、白色、灰色为主,仅以少量的艳色加以点缀。
设计师通过明朗的轮廓,将新时代青年们的自我表达与审美需求勾勒得淋漓尽致。
| 室内一隅
原户型弊端:地下室昏暗不通风采光差,一楼中空客厅二楼处无开窗,楼梯口一面墙体隔断地下室采光,二楼卧室及三楼衣帽间面积较小,卫生间无采光等等。
因此根据户主的需求以及解决户型弊端为目的重新进行了规划梳理。原有一楼空间较小,于是把客餐厅厨房功能都移置地下室,并且利用建筑本身的防潮层做隔楼,增加出一个储藏间,储藏间顶上的茶室离采光井也更近,这样地下室空间成了餐饮会客区。
| 客厅一览
|电视正角
|客厅一览
客厅以包容性极强的灰色铺底,辅以鱼肚白岩板和科技银梨木饰面,将简约大方做到了极致。大量的自然光纤涌入室内,让一层空间都有了呼吸感,整体视觉效果愈加通透。
| 客厅一览
| 客厅一览
| 客厅一览
场域的精神空间不应被面积尺度所局限,素白的墙面一角仿若掀开的纸张,让空间艺术趣味顿时提升,酒红的绒面沙发散发温暖静待入座,整个空间自然简单,有趣纯粹,线条吊灯恰到好处地点缀其中,细述了场域的情感交集。
| 吧台厨房
| 吧台厨房
生活不仅仅是柴米油盐
也需要增些风花雪月
几平米的艺术空间
足以
镂空的一角
延伸的不止是视线
还有精神
| 室内阶梯
| 室内阶梯
| 阶梯俯视
在楼梯的栏杆设计上,大胆创采用铝金属杆,从地下室贯穿到三楼。在高光水晶吊灯映衬下,金属质感显得尤为精致,也让楼梯成为空间的视觉亮点。
| 楼道一角
| 室内一览
| 卧室一览
| 卧室一览
静养身心的卧室空间
通过天花弧度的细节处理
让心灵回归一片宁静
精力得到恢复
暖灰主调融合原木材质
背景墙采用格栅纹理
落地灯光在白色地毯上
体现着面料的舒适质感
|光影对比
| 卧室一隅
| 卧室一隅
静谧的卧室空间
灰色床具旁铺呈质感地毯
简洁的床头背景搭配光纤温和射灯
透过百叶钻进的阳光尽显空间雅致
纵向线条与横向线条互相组合
传递岁月静好
| 衣帽间
| 衣帽间
| 衣帽间
柜面、地板运用原木材质
搭配透亮玻璃柜面
黑色线条与背景色形成对比
传递现代的简约感
| 光影对比
| 卫浴空间
| 卫浴空间
白色浴室墙面搭配细腻纹理的岩板
矩形镜子与简洁的氛围相互呼应
浴室既有淋浴也有浴缸
在鱼肚白岩板装饰下展现现代时尚
一场引人入胜的空间剧情
散落在每个空间里
由居者牵引
在往后每一天
演绎精彩的生活故事
……
设计图纸
DESIGNDRAWINGS
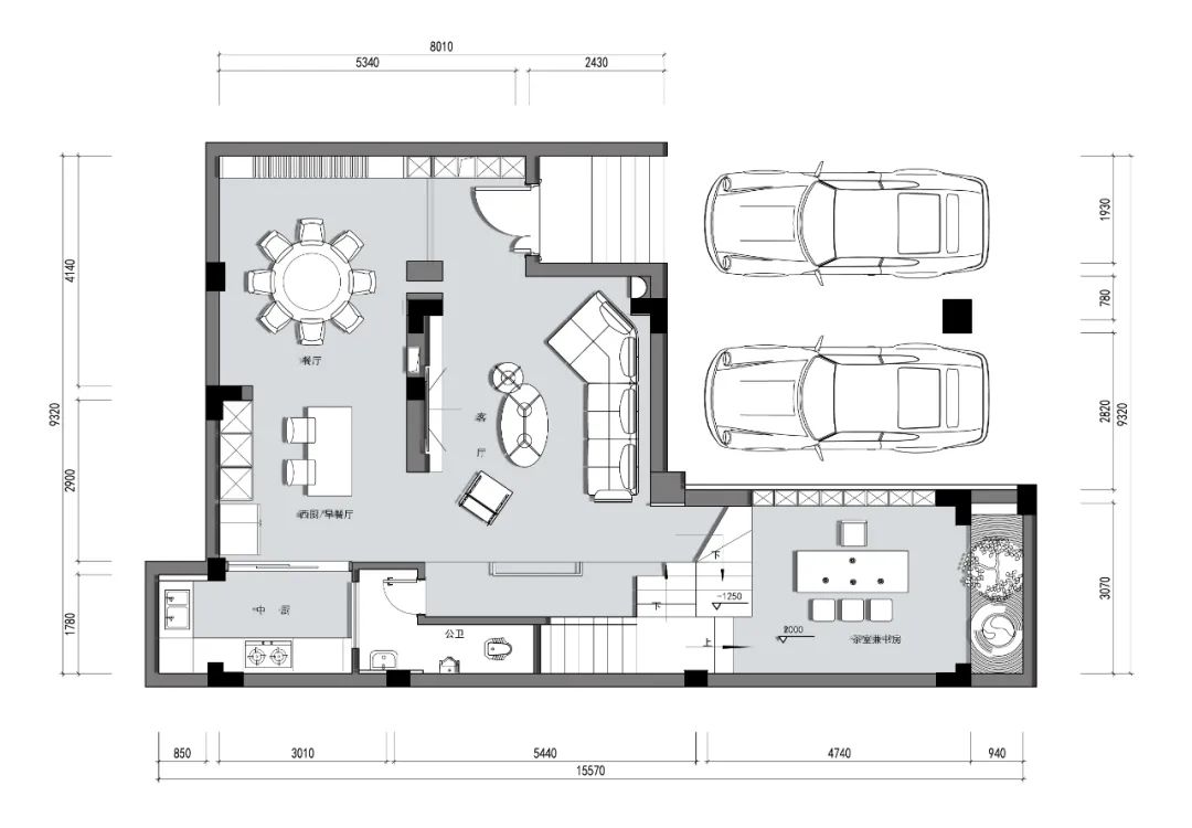
-1 楼
1 楼
2 楼
3 楼
项目简介/Brief Introduction
Location/项目地点:上饶恒大金域蓝湾
Type/项目类型:别墅住宅
DESIGN TEAM/设计出品:江西研舍全案设计
PROJECT/设计主案:童振锋
AREA/项目面积:350㎡
TIME/完工时间: 2021.10
PHOTO/摄影: 欧阳陈倞
主创设计师/Designer
童振锋
江西研舍全案设计 设计总监
E N D
《上饶匯設計》——是设计类专业媒体,报道上饶地区原创设计师作品、策划设计交流性活动及家居行业类访谈。
客服
消息
收藏
下载
最近



































