查看完整案例


收藏

下载
至简至雅
设计的功能,不仅仅是基础的生活,更应该在此基础上改变传统生活方式,打破常规格局,实现多角度人文互动。
项目类型 |居住空间
项目设计| 赵芳艳
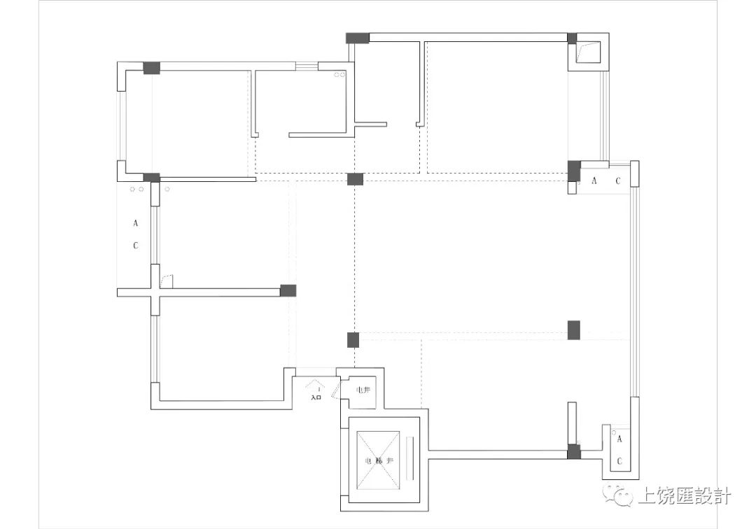
本期设计项目针对四叶草户型最大弊端:面宽窄、进深过长,餐厅采光有限,位置局促等。针对这些缺点,设计师合理的功能规划使客厅空间更加宽敞,客餐厅一体化的设计,既实现了两空间的职能,又能让活动空间更充足。
通透宽敞,横平竖直的线条增强了空间的平衡感和纵深感,搭配带有艺术风格的家居设计,结构简约且富有时尚感,每个细节都恰到好处。
| 厅堂一览
|客厅一隅
| 客厅一隅
设计师进行了空间上的重新规划,通过空间与空间的结合营造不同的格调,突出了室内线条与空间布局的简洁性。搭配上软装元素间的优雅氛围,打造出一个沉稳优雅的居住空间,同时满足了审美和实用需求。
| 客厅一览
| 客厅一览
| 客厅一隅
组合沙发增加了随意、慵懒,提升空间的互动感,不刻意阻断,保证整体性的同时,让空间通透又舒适。摈弃固定笨重的茶几,铺上舒适柔软的羊毛毯,没有出挑的色彩,一切都恰到好处的舒适,让整个空间变得十分简单,但是又带来了家的舒适。
|餐厅一览
| 餐厅一览
| 餐厅一览
餐厅井然有序而自由的结构,通过空间、颜色、材料的变化,慢慢地呈现出一幅空间肖像。温暖与冷静、明亮与阴暗、粗糙与精致,几处或是线条或是弧形的立面手法,让整体呈现出温暖而不失高级的色调。空间不仅是一种展示,也应该是真实的生活体现。设计师追求的生活体验,将细节透入每一个空间处所的设计之中。
| 厨房一览
|主卧一览
| 主卧一览
| 主卧一隅
简洁的线条勾勒下
填充原生态的纹理
在灯光的配合下
没有辞藻华丽的内饰
纯净柔和的氛围舒适放松
|次卧一览
| 次卧一隅
| 家庭一隅
简单的布局营造出静谧与优雅
在安静中
不露痕迹的展现出气息
让人
感受静止中的空间流动之美
- ▼平面布置图 /PLAN
项目简介/Brief Introduction
Location /项目地点:滨江棕榈公园一号
Type /项目类型:居住空间
Mode / 服务模式:全案设计
Area /项目面积:130㎡
Design / 设计出品:红石空间设计
Project / 设计主案:赵芳艳
Time / 完工时间: 2021.12
落地出品人 /Designer
设计师 | 赵芳艳
红石空间设计
上饶家装建材交流群
E N D
《上 饶 匯 設計》——是设计类专业媒体,报道上饶地区原创设计师作品、策划设计交流性活动及家居行业类访谈。
客服
消息
收藏
下载
最近

























