查看完整案例


收藏

下载
本案位于紫金山体育公园-牡丹园二期【央墅】,非常荣幸同户型多位业主同时选择
厚朴设计
为你们服务,让我们能够在同一户型做出不同的尝试。
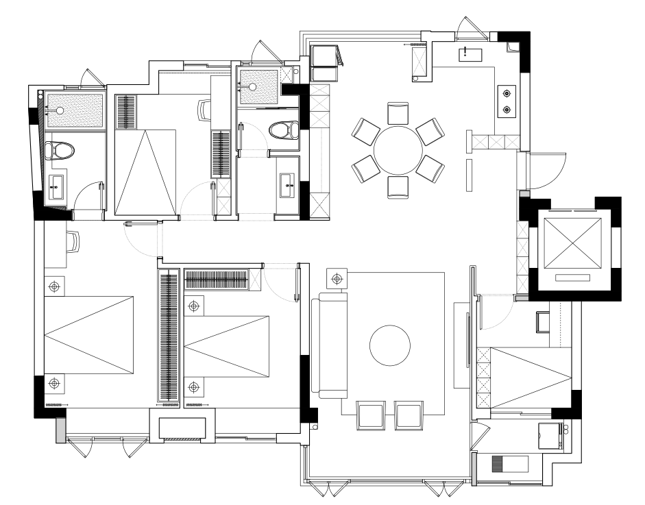
项目名称 | Name
:素
项目地址 | Address :龙岩·牡丹园二期【央墅】
设计总监 | Designer:陈曾斌 陈隐开
设 计 师 | Designer:陈隐开
项目面积 | Area:138㎡
设计参与 | Designer:曾静莹 罗益淳
视觉表现 | Designer:TNT
玄关
客厅
餐厅
卧室
原始结构
平面布置图
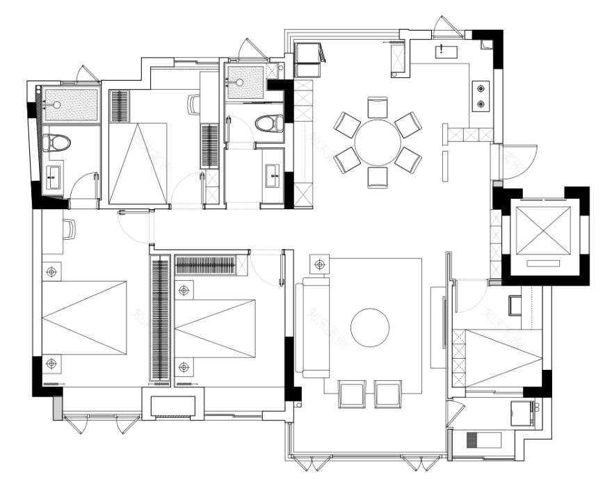
项目名称 | Name
:
奢致
项目地址 | Address :龙岩·牡丹园二期【央墅】
设计总监 | Designer:陈曾斌 陈隐开
设 计 师 | Designer:陈曾斌
项目面积 | Area:138㎡
设计参与 | Designer:曾静莹 罗益淳
视觉表现 | Designer:TNT
玄关
客厅
餐厅
卧室
原始结构
平面布置图
往期精彩内容 /
Past Content
▼
关
于
我
们
「
设
计
师
说
」
『
设计改变生活,也许不应该是一句空话,我们试着探寻更多生活的本真,力求能带给大家设计之外的思考。生活方式的不同,决定了设计的多变性,我们应该让设计服务生活
,改变生活。』
陈
曾
斌
创
始
人
/
设
计
师
1
3
8
5
9
5
3
4
9
1
0
▼ 陈 曾 斌 微 信 号
陈
隐
开
创
始
人
/
设
计
师
1
5
8
8
0
6
6
7
6
6
7
▼ 陈 隐 开 微 信 号
李宏伟
创
始
人
/项目经理
1
3
8
5
958
3160
▼ 李 宏 伟 微 信 号
我
们
向往
自
由
,
热
爱
设
计
并
追
求
完
美
。
我
们
相
信
设
计
源
于
生
活
,
设
计
即
是
对
生
活
的
深
层
感
悟
,是
为
了
生
活
品
质
的
提
升
而
存
在
,
我
们
不
仅
关
注
生
活
的
品
质
内
涵
,
更
在
于
创
造
一
种
极
致
的
生
活
文
化
。
关
订
阅
搜
索
微
「
厚
朴
空
間
設
計
」
地
址
:
福
建
省
龙
岩
市
新
罗
区
万
宝
S
O
H
O
A
1
幢
1
8
1
9
室
客服
消息
收藏
下载
最近






































