查看完整案例


收藏

下载
MINSE DESIGN 民舍制作空间设计工作室
Space 雅天 X 克林 10.23
Nov
5th.2021
Copyright@MINSEDE
SIGN
DESIGN
/ © 贺赞辉
该项目是位于萍乡市雅天大厦 185 平米住宅,方案中最难改点是考虑三代过渡居住问题。考虑到父母、业主、小孩的过渡性,更多从解决机能为主,储物收纳、学习、娱乐、聚会等多功能的结合。将户型的优点最大化,将厅堂部分做到最大值。一直喜欢用木材质贯穿于住宅空间。喜欢,执着,每次的木质材质表现落地都会带来惊喜。
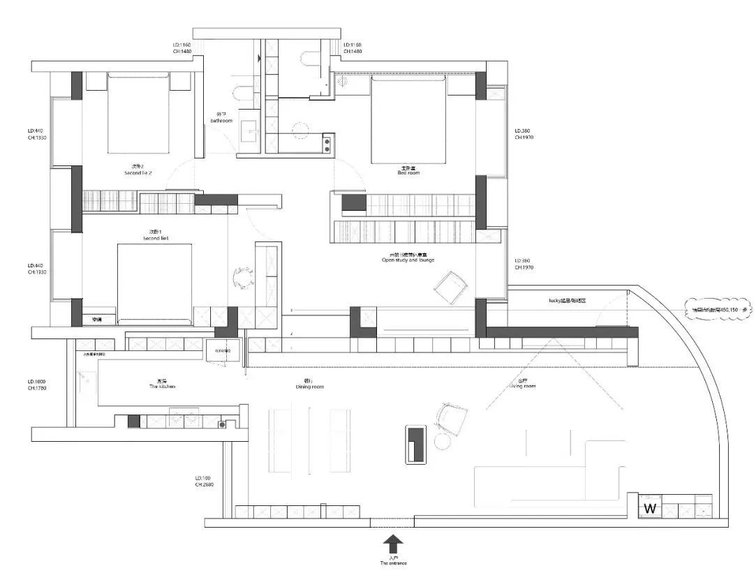
平面布置图 Floor plan
空间整体基调以木质与黑白的色调作为空间基础,在同一个色阶中通过不同灰度和明度,分离空间层次。
The overall tone of the space is based on wood and black and white tones, which give the sense of separation of spatial levels through different gray levels and lightness in the same color level.
空间将原本结构优势扩大,顶面做以斜顶贯穿整体客餐厅空间。原户型为错层结构,通过体块、线性的概念植入,体现空间的尺寸及设计美感。
The whole space will expand the original structural advantage, the top surface is made to run through the whole guest restaurant space. The original house is a split-level structure, through the volume, the concept of linear implantation, will reflect the size of the space and design beauty.
木质作为空间打破原有单一颜色属性存在,本身材质属性纹理感也更好的给空间增添温润质感。
Wood exists as a space to break the original single color attribute, and the texture sense of its own material attribute is also better to add warm and moist texture to the space.
开放式书房的概念,更多考虑未来居住的可能性,多方面的考虑,可为书房,可为小孩娱乐区,可为补足主卧衣帽间不足之缺。
The concept of open mode study, consider the possibility that future lives more, many-sided consideration, can be a study, can be area of child entertainment, can be complement advocate lie cloakroom to be short of.
动线上我们结合空间的可能多变性,原有结构房间拆除墙体,打破墙体阻碍,让视野和互动性更加多样。
On the moving line, we combined the possible variability of the space, and removed the walls of the original structural room to break the barriers of the walls, so as to make the vision and interaction more diverse.
原有的大梁,我们在保留原始形态的基础上,通过打磨、上清漆做一定的修饰处理。
For the original girder, we retained its original form and polished it with varnish.
左侧的柜体设计(鞋柜+餐边柜)的融合,序列组合的柜体秩序空间,强调对比性。
The cabinet design on the left side (shoe cabinet + meal side cabinet) integrates the cabinet order space of sequence combination, emphasizing the contrast.
黑色体块包原有承重柱,整体结构设计上遵循体块线面的组合,更好的构成空间的设计美感。
The black block covers the original bearing column, and the overall structure design follows the combination of line and surface of the block to better form the design beauty of the space.
卧室区域木质造型包裹隐藏壁挂空调的设计,整个吊顶我们通过 20*20 的阴影缝型材内凹,提升吊顶层次感。
In the bedroom area, wood modeling wraps to hide the design of wall-hung air conditioning. The whole ceiling is concave with 20*20 shadow seam profiles to enhance the sense of layer of ceiling.
項目名稱:雅天 X 克林 10.23
項目地址:江西
設計單位:民舍製作空間設計
設計主創:賀贊輝
建築面積:185 m²
項目類型:住宅空间
歡迎轉發分享本文
You are welcome to share and repost this article.
以空间承载乐 以色彩记录趣
贺赞辉
杭州民舍制作空间设计工作室 联合创始人
2021 百度馨居奖全国 top50
2020 UNDER40 中国杭州设计杰出青年
2020 中国设计新青年华东 TOP50
2020 ADA 菲斯曼设计优秀作品
2019 金堂奖年度杰出作品
2019 年 IDS 设计星十佳作品
2019 亚太空间设计新锐设计师
绿洲:
-三贝-
add:杭州市滨江区江南岸艺术园区
圖文涉及隱私版權.如需轉載.請先通過文末的郵箱地址與公眾號管理員聯繫.我們會第一時間回覆.謝謝!
客服
消息
收藏
下载
最近




















