查看完整案例


收藏

下载
MINSE DESIGN
民舍制作空间
设计工作室
Space 夏日漱石 X 碧妍哲理医美
June 29th.2021
Copyright@MINSEDE
SIGN DESIGN/©贺赞辉
本案为首次商业医美空间设计项目,医美不仅是满足变美欲望的一种方式,更成为在人体上雕刻下艺术的美学过程。依甲方诉求,对审美的理念及初创梳理,设计打造出艺术展廊一般的美学空间。通过空间设计与品牌理念的结合,共同诠释医疗之美,论述艺术、美容的故事。结合品牌 VI 方向定位以“克莱因蓝”为点缀色提炼空间,更多直线与弧线的曲面状态呈现,呼应 logo。
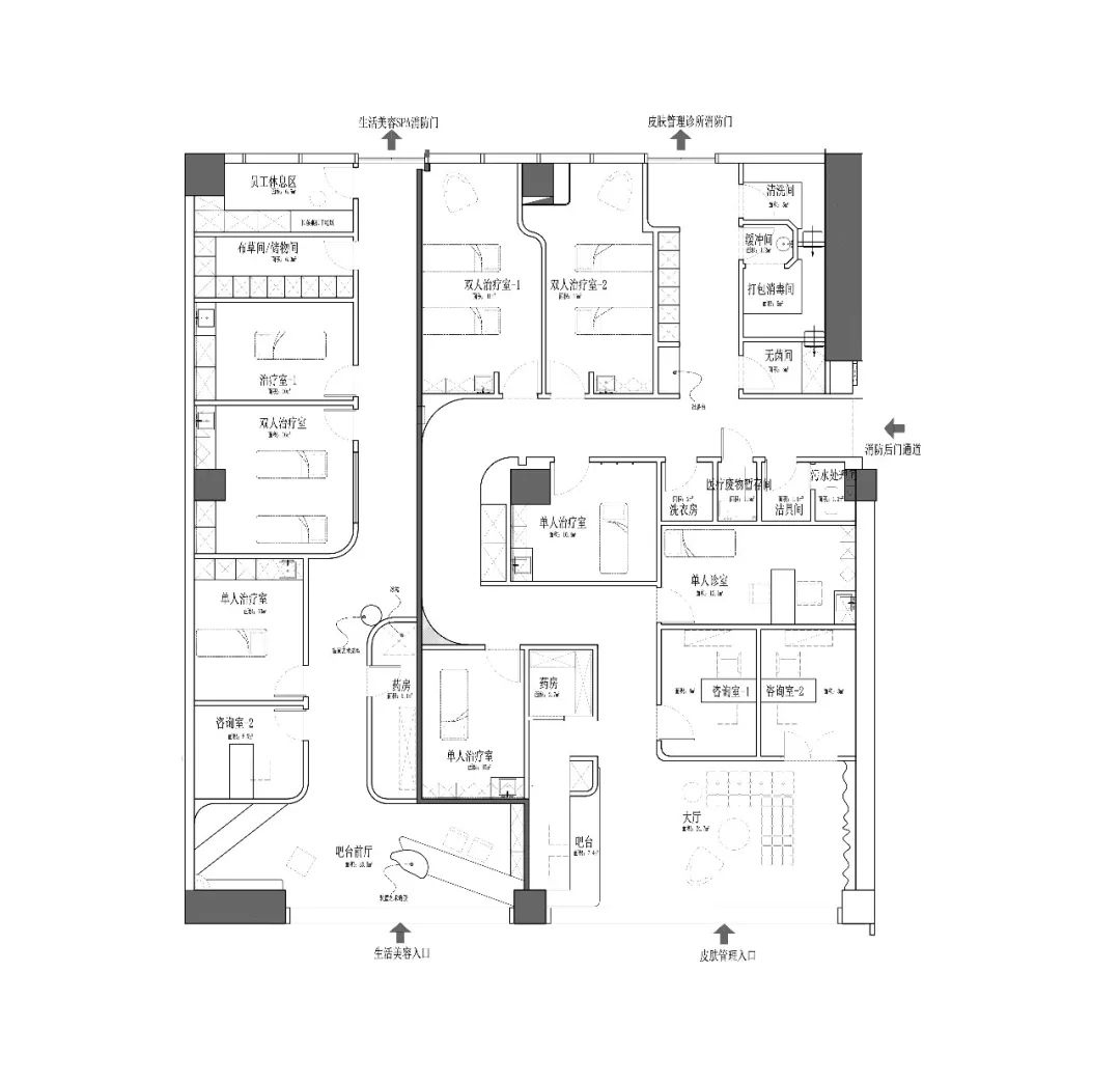
平面布置图 The Floor plan
生活美容 SPA 医美诊所外立面效果
Life beauty SPA, medical beauty clinic facade effect
医美诊所店门头效果
Life beauty SPA, medical beauty clinic facade effect
室内更多营造艺术空间氛围,高级裸感美学,利用低饱和度的奶茶色为空间基调,自带高级属性,与米色系的局部搭配,让空间更宜近人。
The interior creates more artistic space atmosphere, advanced nude aesthetics, the use of low saturation milk tea color as the space tone, with advanced attributes.
立面不锈钢材质与磨砂亚克力的结合,中和空间暖色材质属性,破平衡寻找变化。
While meeting the owners’ demands for color, it also adds some decorative color and modeling elements.
地面微水泥材质,后续加以现场创作勾勒地面纹理。
Ground micro cement material. Followed by on-site creation to outline the ground texture.
过道展示 Aisle display
软装搭配陈列效果展示.
Soft outfit collocation display effect display.
吧台局部 Partial bar
过道展示 Aisle display
单人诊室
Pleasant reading corner
单人治疗室空间设计考虑打破原有墙体的布局设计,将墙体立面镂空处理,加以蓝色渐变玻璃,寻找变化。
The design of this space considers breaking the layout design of the original wall, hollow treatment of the wall.
生活美容 SPA 门头效果
Life beauty SPA door head effect
左侧卡座等待区 Left booth waiting area
双人美容室
Double beauty room
項目名稱:夏日漱石 X 碧妍哲理医美
項目地址:浙江杭州
設計單位:民舍製作空間設計 X 構築空間設計
設計主創:賀贊輝 陳佳峰
建築面積:326 m²
項目類型:商业设计
歡迎轉發分享本文
You are welcome to share and repost this article.
以空间承载乐 以色彩记录趣
贺赞辉
杭州民舍制作空间设计工作室 联合创始人
2020UNDER40 中国杭州设计杰出青年
2020 中国设计新青年华东 TOP50
2020ADA 菲斯曼设计优秀作品
2019 金堂奖年度杰出作品
2019 年 IDS 设计星十佳作品
2019 亚太空间设计新锐设计师
绿洲:-三贝-
add:杭州市滨江区江南岸艺术园区
圖文涉及隱私版權.如需轉載.請先通過文末的郵箱地址與公眾號管理員聯繫.我們會第一時間回覆.謝謝!
客服
消息
收藏
下载
最近




























