查看完整案例


收藏

下载
森林 若抛开其生物特性和自然属性
按人对空间的思维习惯 是没有明显的区域和功能划分的
既不会按照不同植被间的分层来识别自己所在的区域
也不会根据路径走向某个目标 这就是所谓的无边界感
以博物馆文化和品牌理念延伸
项目地址:浙江·杭州
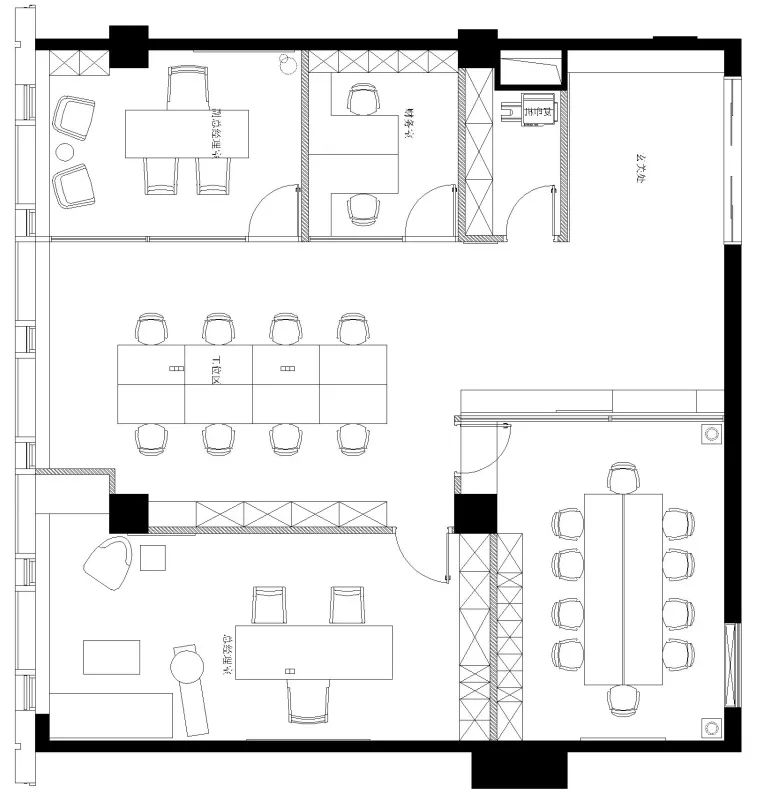
平面图
Plan
立面方案推敲
Elevation scheme consideration
材质意向参考
Material intention reference
入口方案A
plan A of
Entranc
e
方案中运用了统一的设计语言 空间自由而开放 覆盖以有序的肌理为空间赋予了独特的气质
Using a design language, the space is free and open, and the space with unique temperament.
入口方案B
plan B of entrance
在保持空间基调的前提下 融入饱和度较高的蓝色在背景墙中 运用几何图形秩序排列且嵌入灯带突出设计 营造友好办公氛围
On the premise of keeping the space tone, the blue color with high saturation is integrated into the background wall.
工位区
station area
董事长办公室
office of the chairman
董事长办公室休闲位方案A
plan A for leisure space in chairman's office
中性色调的休闲空间 像一杯醇厚的咖啡 多种材质的碰撞 配合大面积的留白 给人理性 质朴之感
In the choice of material color, the brand VI visual color system, black gray and wood grain color.
董事长办公室休闲位方案B
plan B for leisure space in chairman's office
Ligne roset沙发的布置 将空间内布局与外景相关联 强调休闲区域的多变性 同样选择饱和度较高的蓝色饰品来呼应地上的挂画 带动空间节奏
The layout of the Ligne roset sofa associates the interior layout with the exterior layout, emphasizes the variability .
THANKS
項目面積:130 m²
Project Area . 130 m²
項目類型:商业空间
主案設計師 : 贺赞辉
Design By. HeZanHui
歡迎轉發分享本文:
You are welcome to share and repost this article.
以空间承载乐 以色彩记录趣
------------------------------------------------
荣誉
杭州民舍制作室内设计联合创始人
杭州共合设新锐设计师
2019亚太空间设计新锐设计师
2019年IDS设计星十佳作品
2019金堂奖年度杰出作品
绿洲:贺贺贺赞辉
add:杭州市滨江区江南岸艺术园区
圖文涉及隱私版權.如需轉載.請先通過文末的郵箱地址與公眾號管理員聯繫.我們會第一時間回覆.謝謝!
客服
消息
收藏
下载
最近






















