查看完整案例


收藏

下载
以现代语言诠释唐风文化
以RGB霓虹色调投射一个抽象未来
同时回顾古风记忆
各种新潮的 复古的 经典的事物在这里碰撞
项目地址:安徽·淮南
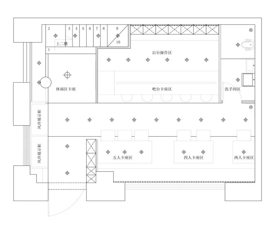
一层平面图
Plan
二层平面图
Plan
材质参考图
material reference
入口
reference
这座小酒馆充分利用了沿街店铺点特点 设置了一系列让人一探究竟的室外座椅区 值得一提的是其中的一个醒目的品牌主题人偶雕塑 这个雕塑在整个酒馆设计中建立了一个反复出现的主题将室外元素带进室内 酒馆室内迷笛的灯光主题变化 使得酒馆氛围多样性
This bistro has made full use of the characteristics of shops along the street and set up a series of outdoor seating areas for people to find out. It is worth mentioning that one of them is an eye-catching brand theme figurine sculpture. This sculpture has established a theme in the design of the bistro.
走道
aisle
入口廊道寻着一道微光 隐藏式灯带闪烁光芒 现实与虚幻仅有一道之隔 今夜唐潮由内而外将我们一层层包裹
There is only one gap between reality and fantasy. Tonight, Tang Chao wraps us layer by layer from inside to outside.
冷柜展示区
freezer display area
不同身份的人聚集在这里 自由 酣畅 无畏 不同形式的人来到这里 探索未知与未来 回顾过去与自我
People of different identities gather here freely and fearlessly, and people of different forms come here .
休闲区卡座
casey in leisure area
也许我们的交谈有着未加修饰的直白 一言未必答一语 话虽不多 尽在酒中 独享这一刻脱离现实的冷静
Maybe our conversation has an unadorned and straightforward word, not necessarily a word.
手稿立面推敲细节
manuscript Facade Refines Details
吧台卡座区
bar booth area
抛光的水泥肌理漆与在外的新砌凹凸砖形成了鲜明的对比
The polished cement texture paint is in contrast with concave-convex bricks.
五人卡座区
five-person booth area
地拼设计嵌入式灯带作为动线的引导标识 同时呼应整个空间氛围RGB颜色的LED灯管带来的效果
There is only one gap between reality and fantasy. Tonight, Tang Chao wraps us layer by layer from inside to outside.
、
THANKS
項目面積:100 m²
Project Area . 100 m²
項目類型:商业空间
主案設計師 : 贺赞辉
Design By. HeZanHui
落地執行:
淮南艺墅家装饰
歡迎轉發分享本文:
You are welcome to share and repost this article.
以空间承载乐 以色彩记录趣
------------------------------------------------
荣誉
杭州民舍制作室内设计联合创始人
杭州共合设新锐设计师
2019亚太空间设计新锐设计师
2019年IDS设计星十佳作品
2019金堂奖年度杰出作品
绿洲:贺贺贺赞辉
add:杭州市滨江区江南岸艺术园区
圖文涉及隱私版權.如需轉載.請先通過文末的郵箱地址與公眾號管理員聯繫.我們會第一時間回覆.謝謝!
客服
消息
收藏
下载
最近


















