查看完整案例


收藏

下载
遥 知 心 乐 处 椿 畔 桂 当 时
酒 到 芳 春 偏 弄 色 轻 绿 泛 滟 鹅 儿
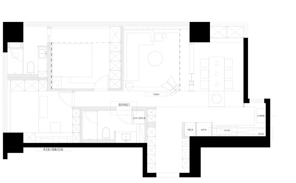
项目地址:广东 ·广州
平面图
Plan
省略纷繁复杂的装饰 仅用朴质的低饱和度色 点缀跳色 运用线条感极强的设计手法 营造出强烈的空间感 展示高纯度美感
Omission of complicated decorations.Using a strong sense of line design techniques.Use only plain low saturation colors.
客厅
living room
客厅—软装意向图
living room -soft fit intention chart
又是一年好景时 请君但饮一壶香
It is another good year,
drink a pot of incense
细节特写片
detail feature
草木深 四野明净 一庭春寂
Deep vegetation, the
four fields are bright and clean.
干净利落的线条分割地面材质 不拘泥横梁走向的设限 籍其原貌与顶面之间的结构错落 强化空间透视立体感 立面加以些许线性灯光分割材质面 同时增加立面线条感
The clean lines make the division between the ground materials not constrained by the direction of the beam.
and the structure between the original appearance.
餐厅
restaurant
餐厅—软装配色意向图
restaurant-soft color fit intention chart
人间有味是清欢
plain flavor,
the meaningful flavor in the world
窗外可饱饮春风与自然 窗内可得以内心平静 抽象装饰画与质朴材质不分你我 空间流淌出舒缓气韵
The window can be filled with spring breeze and the natural window can be filled with inner peace.
主卧
master bedroom
主卧—软装意向图
master bedroom-soft fit intention chart
草色带朝雨 卷帘花万重
grass ribbon facing rain
the roller shutter costs
thousand yuan.
临近傍晚 微风吹来
一想到是春天来了 新绿撞了个满怀
THANKS
項目面積:128
m²
Project Area .128m²
項目類型:住宅空间
Project Types .Rensidence space
主案設計師 : 贺赞辉
Design By. HeZanHui
歡迎轉發分享本文:
You are welcome to share and repost this article.
以空间承载乐 以色彩记录趣
------------------------------------------------
荣誉
杭州民舍制作室内设计联合创始人
杭州共合设新锐设计师
2019亚太空间设计新锐设计师
2019年IDS设计星十佳作品
2019金堂奖年度杰出作品
绿洲:贺贺贺赞辉
add:杭州市滨江区江南岸艺术园区
圖文涉及隱私版權.如需轉載.請先通過文末的郵箱地址與公眾號管理員聯繫.我們會第一時間回覆.謝謝!
客服
消息
收藏
下载
最近






















