查看完整案例


收藏

下载
当某个设计作品,以其独特的美将你我打动,则它是具有独特艺术品质的,波比铸茶所,便是如此。 设计秉持着“人应是空间核心”的理念,在室内空间中加入许多绿植元素,让空间充满互动感,自然特质,成为一个不可多得的空间亮点. 对于美的追求,一直都是艺术永恒的主题
项目坐落于广东 · 东莞
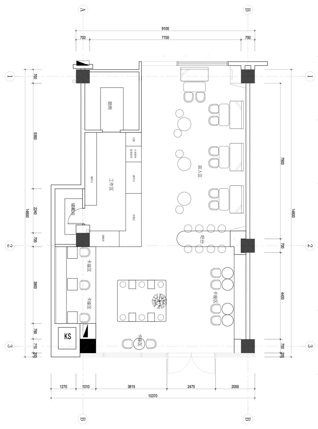
▼项目平面布置图,Layout plan
▼项目位于广东东莞,the project is located in Dongguan, Guangdong.
▼ 沿街卡座区,booths along the street
▼ 不锈钢带的使用,让空间奇幻与现实相交织,apply strinless steel band to the space
▼生长的柠檬树,the growing lemon tree
▼吧台,the bar
▼双人座区,two-seater
▼商场内部门头,shop frot
▼
T
H
A
N
K
S
项目面积:135
m²
Project Area. 135m²
项目类型:商业空间
Project Types :Commercial space
设计团队: 贺赞辉 陈佳峰 孙紫益
Design By. Zanhui He,Jiafeng Chan, Ziyi Sun
欢迎转发分享本文:
You are welcome to share and repost this article;
以空间承载乐,以色彩记录趣
------------------------------------------------
地址:杭州市滨江区江南岸艺术园区A座210室
客服
消息
收藏
下载
最近

























