查看完整案例


收藏

下载
MINSE DESIGN
“家里必须是一个有机的环境,家人能够在这里安心生活、自在玩耍,周围不能有什么东西是贵重到不能碰的。”
- 光的治愈 -
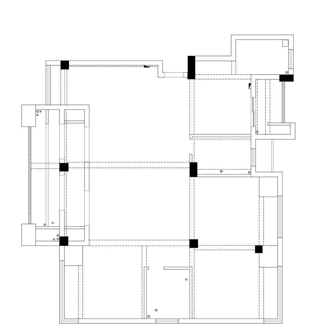
原始结构图 / Original structure diagram
平面布置图 / Layout plan
石材与木饰面 /
Stone and Wood Decoration
长虹艺术玻璃材质说明
Description of Changhong Art Glass Material
客厅区域概览
Living room area overview
墙面繁简对比的做法,让客厅不单调。
Simple wall contrast, so that the living room is not monotonous
木饰面与石材是最好形成的碰撞关系之一 书房背景用小块造型绒面绿色扪布点缀加两侧发光
Wood veneer and stone is one of the best collision relations. The background of the study is decorated with small pieces of suede green tincture cloth with light on both sides.
同色系的格栅与石材是很好的无违和呼应 与沙发背景墙的格栅产生元素统一效果
The same color grille and stone are very good contradictory and echo, and at the same time with the sofa background wall grille has the element unification effect.
餐厅区域概览
Overview of Restaurant Area
绿色的扪布是餐厅的视觉中心
让白色石材的桌面能够更好的跳脱
The green cloth is the visual center of the restaurant, which makes the white stone tabletop have a good effect.
卧室区域概览
Overview of bedroom area.
运用半透明的玻璃隔断使衣帽间和卧室实现了一体化。
The cloakroom and bedroom are integrated by translucent glass partition.
- end -
項目面積:140
m²
Project Area .140m²
項目類型: 住宅空间
主案設計師/參與設計師:
贺赞辉
/
陈佳峰
Design By. HeZanHui / ChenJiaFeng
歡迎轉發分享本文:
You are welcome to share and repost this article;
圖文涉及隱私版權.如需轉載.請先通過文末的郵箱地址與公眾號管理員聯繫.我們會第一時間回覆.謝謝!
------------------------------------------------
add:杭州市滨江区江南岸艺术园区A 座 210室
客服
消息
收藏
下载
最近


















