查看完整案例


收藏

下载
“克莱因蓝”
蓝色象征着天空 / 海洋 / 无界限 / 抽象
蓝色没有维度 和其他颜色不同 它超越了维度
项目坐落于杭州 · 富春江畔
空间以克莱因蓝为颜色元素 也是空间的气质引现 它是沉稳且富于沉淀
它决定了空间最重要的氛围感和气质属性
利用此空间原有层高结构优势 将蓝色延伸至顶部 传递一种被蓝色环绕且放松的情绪
希望体验者对于空间可以感到舒适
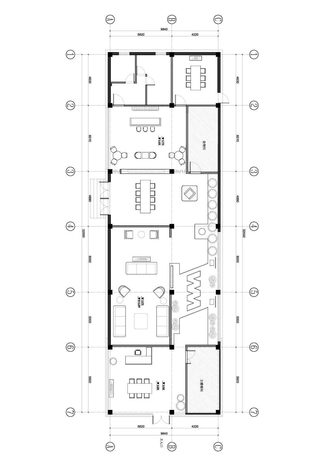
▼项目平面布置图,Layout plan
▼项目位于山水婉约的富春江畔,the project is located on the bank of the Fuchun River
▼ 一些蓝色,all about klein blue
▼过道空间,悬浮白球,aisle, the rhythm of blue and white
▼光影,light and shadows
▼吧台,the bar
▼从吧台望向过道,view to the aisle from the bar
▼会议交流区,communication area
▼观影交流区,viewing area
▼前台茶室,tearoom
-
E
N
D
-
T
H
A
N
K
S
项目面积:300
m²
Project Area. 300m²
项目类型:商业空间
Project Types :Commercial space
设计团队: 贺赞辉 陈佳峰 孙紫益
Design By. Zanhui He,Jiafeng Chan, Ziyi Sun
欢迎转发分享本文:
You are welcome to share and repost this article;
以空间承载乐,以色彩记录趣
------------------------------------------------
地址:杭州市滨江区江南岸艺术园区A座210室
客服
消息
收藏
下载
最近






























