查看完整案例


收藏

下载
| 物空 | 得心自虚妙 外物空颓靡 ——《金门答苏秀才》李白
|物空|
|80 平米|
|海南·三亚|
创作关键词
自由·艺术·细腻
这是一对年轻小夫妻的家,两人分隔两地工作,这处住所将是他们情感交织的地方。
在忙碌的工作后,他们期许有一个自由、细腻、简单的空间,供他们调整放松,享受惬意生活。
设计师带着这样的想法,首先对空间整体的基调进行确定,再对空间布局进行了调整,增加各功能区域交互感,比如从阳台、客厅到餐厅,除了功能上的不同,它们更像是一个有交流的整体。
房屋通过墙面流的延伸,让线条更加流畅、圆润,像是扎进了一杯丝滑的牛奶里。
水泥色地砖与复古花纹地砖的碰撞,恰如其分,干净的同时又提升了整个家的艺术氛围。
在整体色彩的应用中,有种燕麦香扑面袭来的直观感。
最后,通过软装的搭配,赋予空间更多的质感,艺术与品位并存,让原本简洁的空间更有生命力,使人更加投入地沉浸于空间本身。
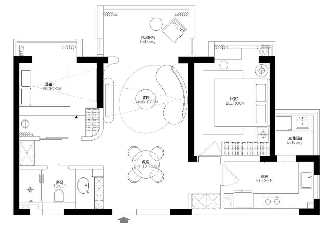
平面图
Living Room
客厅
Dining room 餐厅 -
Kitchen
厨房
Masterbedroom 主卧 -
Second bedroom 次卧 -
Toilet 卫生间 -
Balcony 阳台 -
「筑物设计」
坚持“感受新美好”的设计理念
深耕本真需求 创业主真口碑
▼|联络|
海口:18976
贵阳:18892458699
德江:17508561777
▼|位置|
海口:龙华区海棠路恒大海口湾南区商业区 3F-D08
贵阳:观山湖区富力中心 A4 栋 519 房
德江:江与城 2-1-15F
客服
消息
收藏
下载
最近














