查看完整案例


收藏

下载
项目介绍
项目名称 | 新世界
设计团队 | 筑物设计
施工团队 | 筑物设计
项目地址 | 贵州·贵阳
项目面积 | 248㎡
设计调性 | 现代轻奢
Said ahead
说在前面
本案为 248㎡精装改造案例,男女主人都是企业高管,对生活有着自己独到的品味和质量需求,他们还有一双可爱的儿女,为了让一家人生活的更加愉悦、贴近自我理想化,决定将房屋进行改造。
改造思路:适应生活需求 打造品质空间
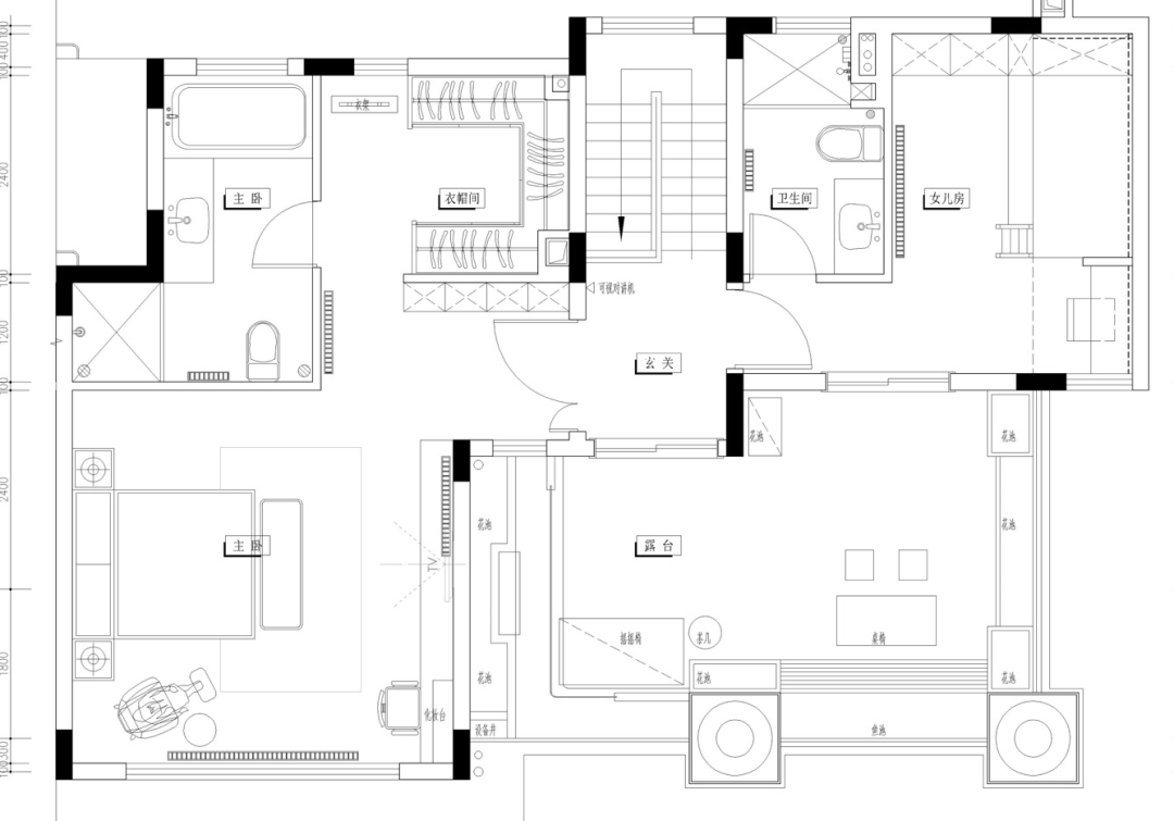
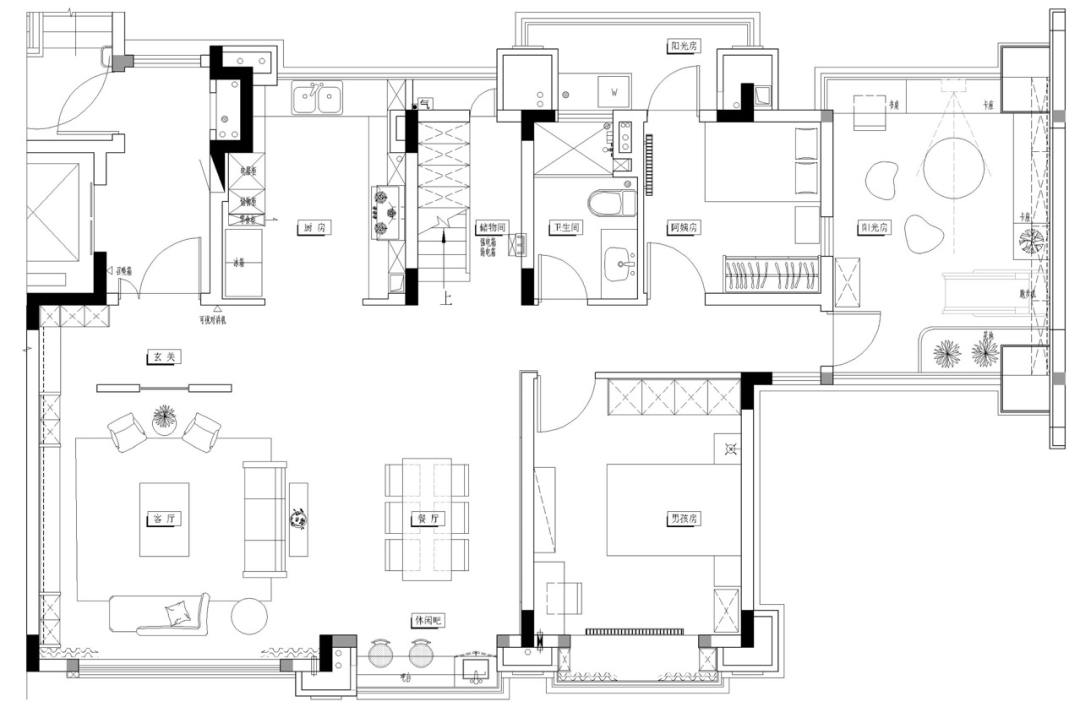
平面图
Living Room 客厅-客厅与餐厅采用敞衔接,休闲空间变得比较通透,使空间氛围更加轻松,软装采用暖色调,表达了主人内心温暖、柔软的一面。不论是阳光还是风景,被大落地窗表达的很彻底。客厅的一角更像是一个独立的空间,实现储物展示、入户挂衣等功能,却不缺失它的艺术美。
Dining room
餐厅
喜欢人间热闹、也喜欢与你二人独处。餐厅临窗处增加吧台内容,在亲朋好友聚餐时,孩子们可以单独在窗边用餐,不受打扰;男女主人也可在二人独处时,开一瓶红酒,微醺小酌,尽享窗边风景。
Master Bedroom
主卧
叫醒我们的不再是扰人的闹钟,是窗外早起的鸟儿。
主卧空间整体色彩偏向淡雅,在忙碌的工作以外,更需要一个安心休憩的空间。设计师采用灰、白、橘的色彩搭配,淡雅中又不显沉闷,舒适中又不失小心机的俏皮感。
Children’s room
儿童房
男孩房同样采用橘色作为整体空间的大背景,软装则选用灰色为主色,既不失空间整体的格调又凸显男生明朗的气质,飘窗部分设置了书架空间,为小男主人提供了舒适的窗边阅读空间。
女孩房则形成强烈的反差,又将风格拉入到一个可爱、柔软的形象,木质上下床、搭配粉色墙面,童趣满满。加上云朵灯饰的点缀,小公主一定会拥有童话般的好梦。
Kitchen
厨房
厨房一改拥挤杂、乱的印象,采用白色整体橱柜,给人干净、整洁的感觉。
Grand Terrace
大露台
人人都想拥有一个大露台,摇椅、花坛是大露台不可或缺的元素,早餐、下午茶、亲子时间、朋友聚会通通都可以在这里实现。同享户外、家居生活,美哉。
Sun Room
阳光房
家,滋养人的精神。阳光,滋养万物。绿植在阳光的照射下,折射着斑驳的光影,印在墙上,美的让人心动。整个阳光房采用白色纱帘遮挡,空气都变得清新文艺了。在四周种上自己喜欢的花花草草,与植物一起沐浴阳光的感觉真好。可能,一个阳光充沛的家,更能抚慰人心吧。
「筑 物 设 计」
坚持“感受新美好”的设计理念,怀揣着对梦的执着,我们脚踏实地,仰望星空。筑美之所向,构心之归宿。一个为生活服务,并遵循生活实用和生活方式的设计团队,深耕本真需求,创业主真口碑。
▼|联 络|
海口:18976
贵阳:18892458699
德 江:17508561777
▼|位 置|
海口:龙华区海棠路恒大海口湾南区商业区 3F-D08
贵阳:观山湖区富力中心 A4 栋 519 房
德 江:江与城 2-1-15F
客服
消息
收藏
下载
最近

















