查看完整案例


收藏

下载
Design creates a better life
“我们称赞一把椅子或是一幢房子美时,其实是在说我们喜欢这把椅子或这幢房子向我们暗示出来的那种生活方式。它具有一种吸引我们的‘性情’——假如它摇身一变成为一个人的话,正是我们喜欢的人。”
——
阿兰・德波顿《幸福的建筑》
“When we praise a chair or a house, we are actually saying that we like the lifestyle that this chair or the house suggests to us. It has a 'temperament' that appeals to us – If it turns into a person, it is the one we like."
——Alain Debotton
《
Happy
A
rchitecture》
▲
灵感来源
Source of inspiration
设计的目的在于满足人的需求,是为了努力去创造一种更好的生活状态。当下人们越来越重视绿色健康的生活方式,零零茂购物中心以全新的方式打造出一座健康运动生活综合体。
The purpose of the design is to meet the needs of people, in order to strive to create a better life. Nowadays people are paying more and more attention to the green and healthy lifestyle, and the shopping mall has created a healthy sports life complex in a new way.
▲
建筑效果
Building effects
本案坐落于郑州市省体育场。设计之初,我们深入剖析了当下市场环境,针对当下消费者的消费模式由
“需求型消费”逐步向“体验型消费”转变,我们提出了“时尚前卫、玩购一体”的生态自然型生活俱乐部这一主题设计理念。
The case is located in the Zhengzhou Provincial Stadium. At the beginning of the design, we deeply analyzed the current market environment, and aimed at the current consumption pattern of consumers from “demand-based consumption” to “experience-based consumption”. We proposed an eco-natural life of “fashion avant-garde, play-and-play”. The theme of the club design concept.
▲
设计分析
Design analysis
▲
设计定位
Design positioning
结合项目业态,设计将一层定义为动感活力街区,二层为休闲乐活街区。把自然生态、动感时尚的元素运用到空间当中,从而使运营团队倡导的
“运动、健康、注重品质的新生活方式”潜移默化的传递给消费者。
Combined with the project format, the design defines one layer as a dynamic and dynamic neighborhood, and the second floor is a leisure and music neighborhood. The elements of natural ecology and dynamic fashion are applied to the space, so that the “sports, health, quality-oriented new lifestyle” advocated by the operation team is subtly conveyed to consumers.
▲
元素提炼
Element refinement
▲
一层入口
First floor entrance
商场设计处处体现着
“运动与自然”的主题。进入购物中心一层,一株形象化的树状装置映入眼帘,令顾客对商场内部充满好奇与期待。
The design of the mall reflects the theme of “sports and nature”. Entering the first floor of the shopping center, a visualized tree-like device is in sight, making customers curious and expecting the interior of the mall.
▲
一层情景植入
One layer of scene implantation
▲
运动卡通元素
Sports cartoon elements
▲
二层情景植入
Second layer implantation
▲
一层步行街
First floor pedestrian street
空间氛围有别于传统商业的白亮、拘谨,顶面深灰色漆搭配绚丽、动感的装饰灯具,墙面以灰色水泥及植物墙为装饰,幽默风趣的运动卡通漫画点缀其中,使空间倍感轻松活泼,更加深了顾客的体验感。
The space atmosphere is different from the traditional business white and restrained. The top dark gray paint is matched with beautiful and dynamic decorative lamps. The wall is decorated with gray cement and plant walls. The humorous sports cartoons are dotted around to make the space feel relaxed. Lively, deeper customer experience.
▲
一层步行街
First floor pedestrian street
为了创造情景带入感,设计将一层地面以跑道的形式贯穿整个空间,树状装置散落于两旁,顾客行走于其中犹如置身于林荫下的运动场,使空间主题更为明显。
In order to create a sense of scenes, the design runs a layer of ground through the entire space in the form of a runway. The tree-like devices are scattered on both sides, and the customer walks in it like a sports field under the shade of the trees, making the space theme more obvious.
▲
中庭
Courtyard
中庭两株树状装置挺立于两侧,形成一个充满场景感的艺术空间。两侧的装饰屏风使空间隔而不断,
通透的空间规划,充满后工业时代的基调,渗透着
浓郁
的文艺气息
。
Two tree-shaped devices in the atrium stand on both sides, forming an artistic space full of scenes. The decorative screens on both sides make the space gap and continuous, the transparent space planning, full of the tone of the post-industrial era, infiltrated the rich literary temperament.
▲
二层步行街
Second floor pedestrian street
二层地面大面积的仿木纹地砖柔和了空间基调,六边形小花砖零星点缀于地面与天花造型相呼应,整个
室内街区努力的营造出室外感,让逛街充满乐趣。
The large-scale imitation wood grain floor tiles on the second floor soften the tone of the space. The hexagonal small tiles are sprinkled on the ground and echoed with the ceiling pattern. The whole indoor block strives to create an outdoor feeling, making shopping fun.
▲
卫生间
Bathroom
卫生间的设计上依然贯穿了
“运动与自然”的
主题思想,并融入了展厅的概念。精致的展架即起到展示的作用,又趣味化了空间,形成了个性、时尚、差异化的空间感觉,带给顾客独特的记忆点。
The design of the bathroom still runs through the theme of “sports and nature” and incorporates the concept of the exhibition hall. The exquisite display rack plays the role of display, and also makes the space interesting, forming a sense of personality, fashion and differentiation, bringing unique memory points to customers.
▼
效果图
设计其实
是人与自然相乘的实用艺术
,
Design is actually a practical art where people and nature multiply.
从自然来灵感;
Inspired by nature;
从生活找需要;
Find the need from life;
从梦想造惊喜,
Make a surprise from your dreams,
让设计美的恰到
好
处。
Let the design be just right.
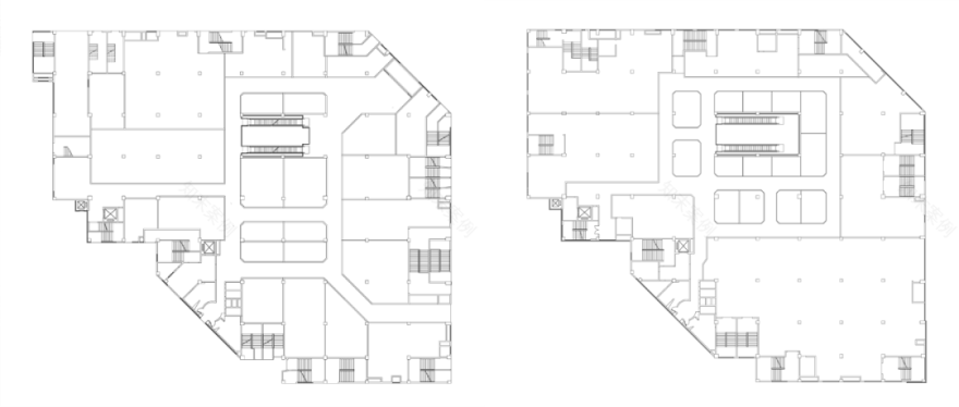
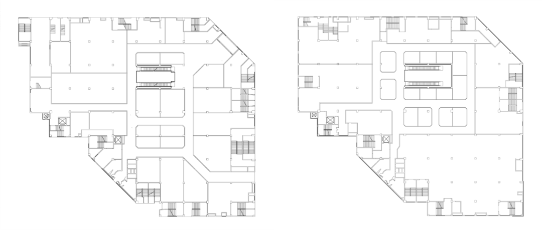
Δ一层平面图
plan
Δ二层平面图
plan
项目名称:零零茂购物中心室内设计
设计机构:上海励时设计
设计主创:任杰
设计团队:秦丽、许尚、黄喜朋、何高永、张秋石
项目地点:郑州
主要材料:水性聚氨酯漆、复古地坪漆、清水混凝土漆、六边形花砖、仿木纹砖
设计时间:
2017年4月
竣工时间:
2019年6月
摄
影:如初商业摄影 张琳 耿旭姗
主创设计师
▲
任杰
·设计师简介:
河南励时装饰设计工程有限公司合伙人&设计总监
中国建筑学会室内设计分会会员
室内建筑设计师
高级室内软装设计师
TOP软装会员
励时设计(国际)机构成立于2001年,在国内设分支机构:装饰设计事业部:上海励时设计股份有限公司、杭州洒俊建筑设计事务所、河南励时装饰设计股份公司。
公司全国拥有专业化设计团队180余人,业务类型已涵盖规划建筑、室内装饰、艺术陈列。
面向客群:商业地产、金融办公、酒店餐饮、成品房研发部、艺术成列六大类客群;我们秉承“彼此尊重、坦诚沟通、团队合作”的价值观,坚持“为社会提供高质量高品质高品味设计作品”的公司使命,从而实现“成为促进行业进步的一流设计企业”的企业愿景。
励志前行 | 时系初心
LIZHIQIANXING | SHIXICHUXIN
朱小姐
13310106395 ( 上海 )
赖先生
18258188886 ( 杭州 )
王先生
18638597399 ( 郑州 )
| 地址 |
上海
:上海浦东源深路388号
Shanghai: 388 yuanshen road, pudong, Shanghai
杭州
:杭州市西湖区丰盛九玺6层
Hangzhou: floor 6, fengsheng jiuxi, xihu district, hangzhou
郑州
:郑州市郑东新区建正东方中心C座21层
Zhengzhou: 21st floor, building C, jianzheng east center, zhengdong new district, zhengzhou city
客服
消息
收藏
下载
最近


































