查看完整案例


收藏

下载
不是艺术在模仿生活,而是生活在模仿艺术。
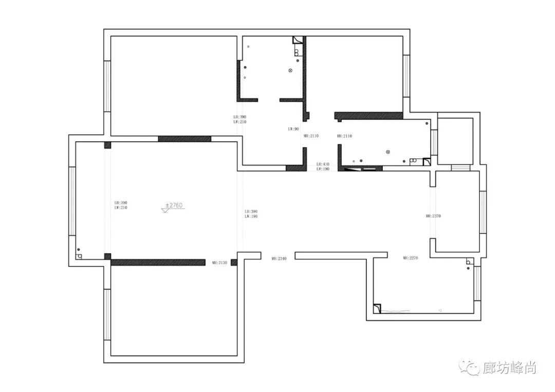
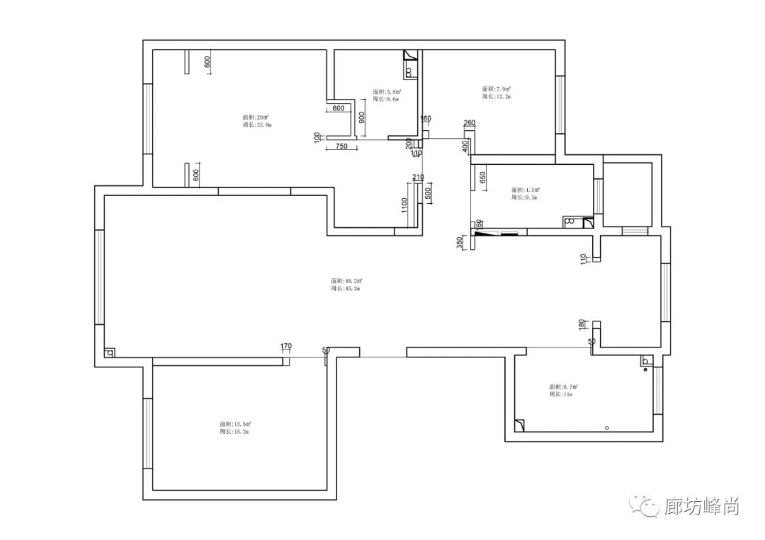
案例地址 | 大公馆
案例面积 | 138㎡
案例设计 | 许玉文
案例风格 | 法式现代
案例户型图
效果图展示
浅灰色的地砖铺垫了空间的质感。沙发的色调与材质偏柔和中性,搭配以金属铜色的边几,和谐共处。
石膏艺术线条造型的电视墙充满知性的艺术气息,极简主义家具和古典元素的融合,看似不对称的艺术线条贯穿整个空间,但却是经典轴线、对称布局的方式,成为整个设计方案的亮点。
全屋墙面大面积采用奶油色乳胶漆,和顶部白色墙漆的对比,突显整体空间感。除了奶油色,拱门内里采用雾霾蓝,沙发背景以及走廊采用盈红重色进行空间色彩的碰撞。
摒弃传统法式的繁复、冗杂的装饰造型与甜腻的色泽,转而用经典轴线、对称布局的方式,结合“洗白”的空间色调、几何线条与典雅时尚的陈设软装,打造出了一个法式现代主义的空间格调。
本案设计师介绍
许玉文
峰尚主任设计师
2013 年荣获廊坊新锐设计师
2015 年荣获河北(廊坊站)十大空间设计师
2016 年荣获居然杯·CIDA 中国室内设计学院奖
2018 年荣获 APDC 亚太室内设计精英邀请参赛奖
2019 年荣获河北(廊坊站)十大空间设计师
2020 年荣获河北(廊坊站)王朝杯冠军
♥
如果您近期有装修计划,可查看以下店面活动内容。
▼▼▼
▼▼▼
想要了解更多活动内容及设计方案,可拨打 0316-2651000、2652000、2653000 或进店咨询峰尚装饰。
位置:河北省廊坊市广阳区北凤道华夏铂宫底商
峰尚装饰
位置:河北省廊坊市广阳区北凤道华夏铂宫底商
峰尚装饰
位置:河北省廊坊市广阳区北凤道华夏铂宫底商
峰尚装饰
位置:河北省廊坊市广阳区北凤道华夏铂宫底商
峰尚装饰
位置:河北省廊坊市广阳区北凤道华夏铂宫底商
峰尚装饰
位置:河北省廊坊市广阳区北凤道华夏铂宫底商
峰尚装饰
位置:河北省廊坊市广阳区北凤道华夏铂宫底商
峰尚装饰
位置:河北省廊坊市广阳区北凤道华夏铂宫底商
峰尚装饰
位置:河北省廊坊市广阳区北凤道华夏铂宫底商
关注企业服务号
▼▼▼
客服
消息
收藏
下载
最近


















