查看完整案例


收藏

下载
点击上方
蓝色
字
,
关注“廊坊峰尚”
订阅号:langfangyzf01
' '
家,对于我们每一个人来说是最重要的,家是心灵的港湾、是人生的驿站、是情感的归宿、是灵魂的延续。
家,是一个避风的港湾。家的和谐,家的静谧,家的惬意……家啊,是一个理解奉献思念呵护,是圣洁宽容接纳和谐。
拥有一个温馨和美的家是每个人的理想!
原始平面图
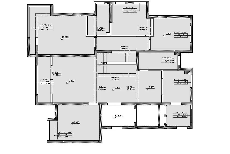
平面规划布置图
平面布置规划方案是家居设计的重要部分,天下大事必作于易,天下难事必作于易,细节决定成败,一个房子是否好用取决于平面规划。
案例赏析
玄关
是家庭中最重要的,玄关用玻璃屏风的方式把楼梯间与门厅进行了虚与实的分割,自然光线可以透过玻璃自由的穿梭,使空间在白天自然光线下也可以明亮。
客厅电视背景墙
采用隐形门的设计手法使电视背景墙与沙发形成对称轴线,从而使整个客厅达到对称。
餐厅
空间承载着餐厅功能及交通空间的功能,使原本不太大的餐厅可以拓展空间。
楼梯间
使原本不宽敞的空间采用玻璃的形式使空间保持明亮。
主卧室
的色调柔和舒缓,当然除了柔和的色调之外储藏空间也非常的重要,储藏空间是使空间变得整洁的法宝。
设计公司:廊坊市峰尚装饰
设计内容:建筑 室内 会所
主案设计师:季 曼
项目类型:住宅空间
绘 图:聂 微
关于设计师
季 曼
. 廊坊峰尚建筑工程有限公公司首席设计师
. 家居整理咨询师
.《IAAPC国际注册执业资格认证》国际执业高级软装师
.2012年清华大学继续教育学院清大环艺软装设计高级研修班毕业
.2013年中国城市廊坊十大室内设计师
.2013年度广州设计周河北十大设计师
.2018年度广州设计周40&40河北优秀设计青年
.2018年度青年设计师先锋榜
力求打造以人为本,绿色、多元、能够自然协调的,和谐的, 合理的人性设计,关注细节,功能至上 ,为客户提供多元化的设计服务。
客服
消息
收藏
下载
最近













