查看完整案例


收藏

下载
点击上方
蓝色
字
,
关注“廊坊峰尚”
订阅号:langfangyzf01
观白”二字取自一首禅诗,“白鹭立雪,愚人看鹭,聪明见雪,智者观白”。白鹭立于雪中,愚者只能看到鹭,聪明的人能看到雪,而真正的智者会看到本质,天地合为一体,成为白茫茫的一片。
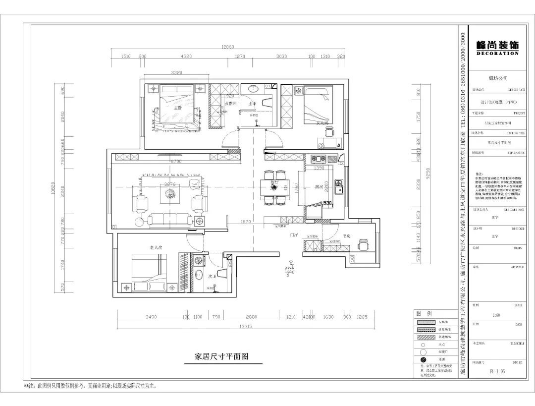
平面布局
项目地点:大公馆
作品名称:观白
测量面积:110 ㎡
设计机构:廊坊峰尚装饰
全案设计:王宇
图示展示
设计也是如此,切不可一叶障目, 去粗取精,去伪存真
。
此案设计中灰白是最核心的视觉因素,爵士白天然大理石得背景墙和仿木纹得壁纸,设计希望达成“简洁”和有智慧。
居住空间应该是一个让人在精神上获得放松得场所,,恰如其分的营造出静好、舒适而内敛的居住氛围,表达主人对生活,对工作的态度。
整个空间一内敛的灰白灰为主,辅以木色增加温暖感觉,打造出极具生活感的小温馨。
精心挑选的艺术品,提升餐厅空间的格调与品位
设计师介绍
设计师:王宇
职务:主任设计师
设计理念:
我信仰设计的力量,坚信——设计,让一切有所不同!
客服
消息
收藏
下载
最近















