查看完整案例


收藏

下载
当代奢雅结合自然与人文的双重禀赋,带来居住者的质感生活。
01
平面方案
PLANE LAY
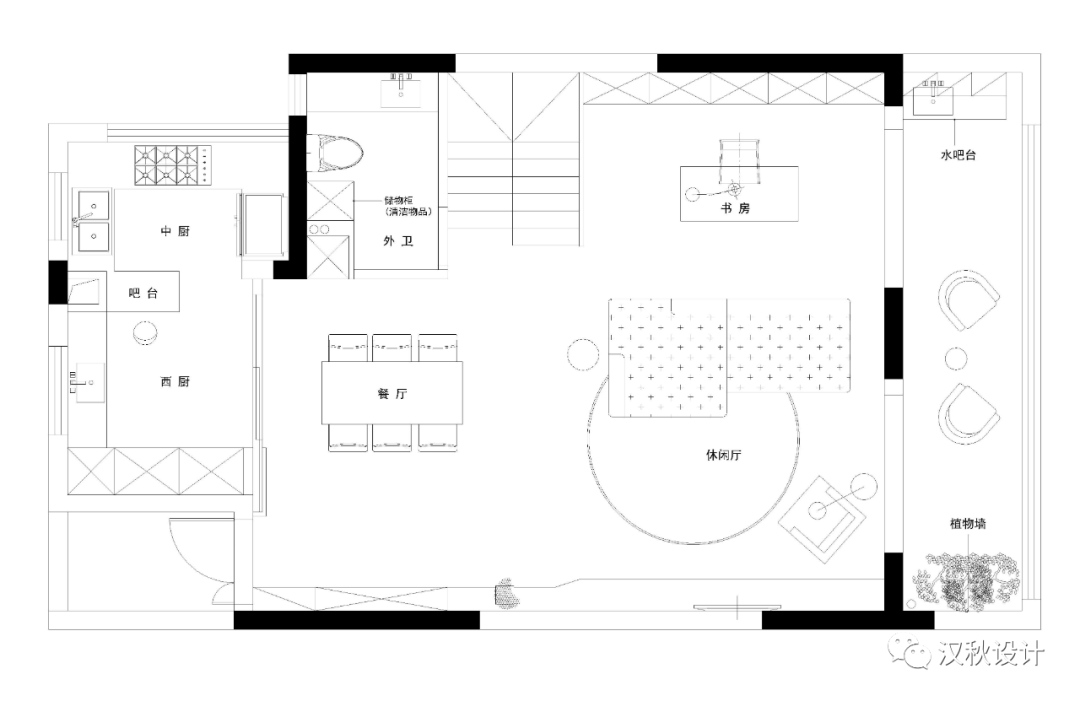
▲一楼平面图
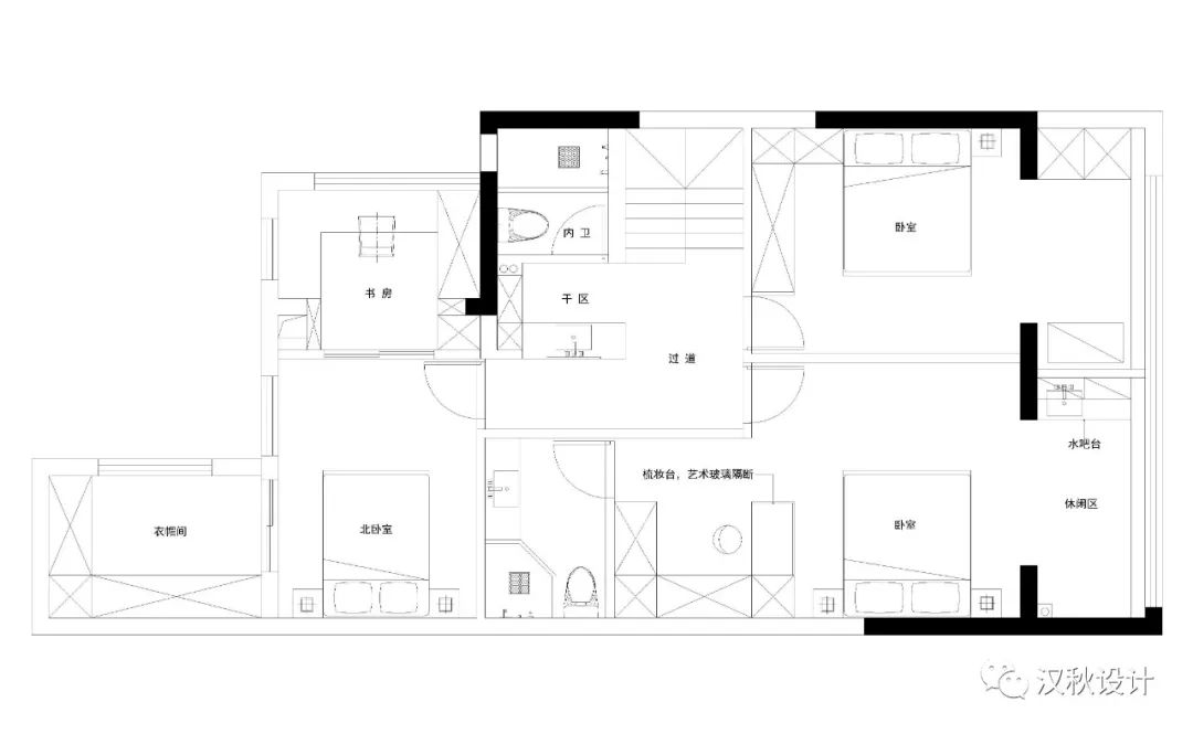
▲二楼平面图
02
实景照片
REAL PHOTOS
▲
客厅空间 / Living Room
客厅抛弃了复杂的造型,大面积的立面留白,一眼望去,仿佛穿越时空,经历了一次朦胧梦境。
▲
阳台一角 / Corner Of The Balcony
▲ 厨房 / Kitchen
开放式厨房与立面的留白,使整体空间更具统一性,金属边框的局部包裹,纯净之中凸显质感沉淀,亦成为视觉焦点。
▲
餐厅 / Restaurant
艺术点缀空间,亦能照亮质感生活。细节之处的艺术点缀与复古色调,平衡了空间的冷清氛围,与家人围桌而坐,长夜漫谈,与景共情,仿如一部情节温润的老式电影。
▲ 楼梯间 / Stair Case
▲
卧室 / Bedroom
▲干区悬浮台盆
▲
卫生间 / Bathroom
设计对于空间的意义,在于不断地延续。
- END -
项目名称|Name:春江天玺
项目地点
|Place:江苏常州
项目类型|Type:私宅
项目面积|Area:186㎡
设计时间|Time:2021
设计师|Designer:张安
主要材料:岩板、灰泥、木饰面
设计师:张安
客服
消息
收藏
下载
最近






















