查看完整案例


收藏

下载
城市文脉,装点精致生活。蕴诗意与风华,拥阳光和清风。龙湖景粼天著 168m²户型的详细解析
▲ 地理位置图 / The geographic map
交通:地铁新区公园站向东 500 米;公交:29 路到龙城小学站下往西步行约 350 米,b12 路到汉江路建东路站下步行约 260 米;自驾:钟楼区、天宁区、武进区可通过青洋高架、晋陵路转到珠江路上,便可到达。
周边配套:西侧紧靠龙城小学及在建中的龙城中学,南侧为九龙仓住宅小区,北侧是汉江东路日料一条街。
周边景观:东侧紧靠常州城市名片 5A 级中央公园-恐龙园、紫荆公园、北塘河水利风景区、横塘河湿地公园。
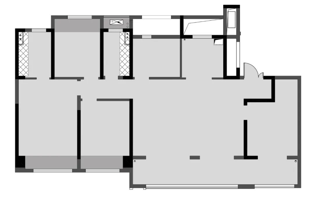
▲原始结构 /The original structure
户型优点
1. 三开间朝南,南北通透。
2. 景观落地大阳台。
3. 动静分离,独立套房配置
Advantages of household type
1. Three open south-facing, north-south through.
2. Landscape floor-to-ceiling large balcony.
3. Dynamic separation, separate suite configuration
▲原始结构方案 /The original structure scheme
户型可优化空间
1. 厨房空间较拥挤,不能满足多人同时操作。
2. 阳台空间比例较大,可优化客厅共享空间。
3. 客厅东西方向开间够大,南北纵深去除过道后空间略显紧凑。
4. 飘窗对于卧室的空间占比过大,卧室活动空间略显紧凑。
5. 儿童房开门位置与床位方向及儿童学习桌位可进行再优化。
6. 主卧室动线走向及南北通风空间布局可进行再优化。
Household disadvantages
1. Kitchens excessively are small, crowded, cannot satisfy the multi-people also to use.
2. Balcony space is proportional to optimize living room space
3. The living room thing direction standard width suffices in a big way, after the north and south depth elimination corridor the space reveals slightly compact.
4. The window is too large for the bedroom space, the bedroom activity space is slightly compact.
5. The opening position and bed orientation of the children’s room and the children’s study table can be re-optimized.
6. The master bedroom generatrix moves towards and the north and south ventilates the spatial layout to be possible to carry on optimizes again.
168 平户型改善解析(一)
▲改善方案一/
Improvement Plan One
1.厨房位置,打开公共空间的南北通透性的同时,可以增加西厨位,满足喜欢做烘焙的女主人。
2.客厅与阳台互通实现真正的大客厅,在落地窗前,即可以与家人朋友互动的同时,也可以感受室外的四季变换。
3.儿童房,房门与飘窗同时改动,可以满足孩子拥有自己的一个学习娱乐的小空间。
4.北卧室改成储物间可以增加家里的储物空间。
5.餐厅边两扇隐形门的设计,使得空间有独立的私密性,再也不用担心坐在沙发边能看到内衣内裤的尴尬。
▲改善
方案
一
/
Improvement Plan One
1. kitchen positions, open public spatial north and south permeability at the same time west, may increase the kitchen position, satisfiedly likes the hostess who does cures.
2. living rooms and the balcony intercommunication realization genuine lobby, in front of the French window, namely may at the same time which interacts with the family member friend, also may feel outdoor four seasons transformation.
3. child room, the door with flutters the window also to modify, may satisfy the child to have an own study entertainment small space.
4. north bedrooms alter to Chu Wujian to be possible to increase in family’s Chu space.
Nearby.
5. The design of two invisible doors at the side of the restaurant makes the space independent and private, so you don’t have to worry about sitting on the sofa and seeing the embarrassment of your underwear.
▲方案空间参考
一
/
Plan one
space reference
168 平户型详细解析(二)
▲改善方案
二预告
/
Improvement Plan Two
▲方案空间参考二 预告/Improvement Plan Two
如上方案仅供参考,如有其他需求的邻居可联系【彧】为您私人定制设计方案
13861057786
13861057786
▲设计师团队/
Designer team
▲设计师团队/
Designer team
▲设计师团队/
Designer team
▲设计师 王浩 / Designer Wanghao
从业时间: 10 年
涉及领域:室内设计,建筑设计,园林设计
案例地址:龙湖春江天玺,龙湖双珑原著,御龙山别墅......
风格擅长:现代极简,美式轻奢,法式巴洛克......
设计理念: 自然品质的物质家园不是简单地将自然要素引入室内,而是结合地方自然环境特征进行创造,用心观察,用心感悟,让设计与生活互动。
Being employed time: 10 years
Involves the domain:Interior design, architectural design, garden design.
Caseaddress:LonghuChunjiangtianxi,LonghuShaunglongyuanzhu,Yulongshan
Style good at:Modern minimalism, American light luxury, French baroque
Design idea:Natural quality material home is not simply to introduce natural elements into the interior, but combined with the characteristics of the local natural environment to create, careful observation, mind insight, so that design and life interaction.
“Where do new ideas come from? The answer is simple: differences. Creativity comes from unlikely juxtapositions.”
新的想法来自哪里?答案很简单:差异。创新源于与众不同。
– 汉秋设计
客服
消息
收藏
下载
最近
















