查看完整案例


收藏

下载
生如夏花
平淡如菊
素材
/半杯水
文/半杯水
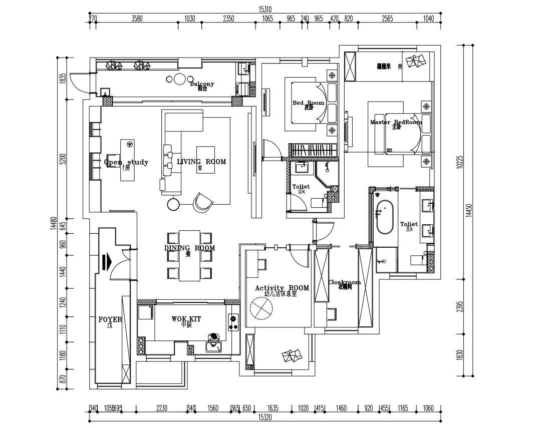
本案最大的改动特色是
把餐厅、客厅、书房连贯在一起, 使得视线非常开阔,南北很通透。活动室外面也做了点小心机,小块的玻璃让来往的家人可以看到孩童的玩乐。主卫的玻璃房设计也是本案的一大亮点。
功能分区: 玄关 Entrance to Buddhism
客厅 Sitting room
餐厅 Dining room
书房 Study
多功能室
Multifunctional room
厨房 Kitchen
主卧
Master bedroom
儿童房 Children's room
卫生间 Toilet
阳台 Balcony
餐厅
Dining room
▼开放式的餐厅设计,
木质的餐桌、小巧的餐椅、玻璃材质通透的多组吊灯,加上厨房推拉门的设计,透过玻璃窗洋洋洒洒的照进屋子。别有一番景象。
▼地板砖也是选的恰到好处。
▼细节拍摄
客厅
Sitting room
▼简洁的吊顶,搭配无主灯的筒灯照明,配合通体净白的氛围,是休闲娱乐的好地方
▼
看云卷云舒,树叶飘落,消磨整个午后。
▼
L型的米色沙发背后就是我们的书房区域。及办公、娱乐为一体。软装搭配上也是别有深意。柜子上方的数字模型是客户宝宝出生的年份。也记录了这个一家三口属于他们自己的一个印记。
▼细节展示
主卧
Master bedroom
▼进入主卧,首先映入眼帘的是大片的玻璃跟通透的光源。好似一个玻璃房。
▼窗边的榻榻米区域,简易的抱枕,也是一个休憩的好选择。
▼
淡然恬静的内心也会有跳跃的灵魂。
▼卫生间的设计很大胆,满足基本需求,却又带点小情调。
儿童房
Children's room
▼女儿房背景墙我们加了线条的元素,跟床上用品恰好吻合。墨绿色及粉色的搭配,清新感迎面扑来,一眼望去便喜欢啊。
▼卧室一角
▼活动室里我们没有过多装饰,绿油油的背景墙,高低错落的书架,一点点小小的软装,留给孩子的是无限遐想。她是创造者。
▼阳台一角
END
做您身边的设计管家
享受简单的设计生活
有些人即使是天天相见也不会相知,有些人相交甚少却彼此了解。设计是一种对生活的全新理解与认识,是设计师与屋主审美互相碰撞出来的产物。一个好的设计需要好的设计师,更需要一个品味相投的客户。
【半杯水设计工作室】
地址:慈溪市北二环中路427号
一个小小的转发,也是对我们的鼓励~
客服
消息
收藏
下载
最近

























