查看完整案例


收藏

下载
家是人生旅途中一个重要的驿站
是岁月长河中一条永远行驶的船
素材
/半杯水
文/半杯水
本案最大的改动特色是把原来的格局打通,使得空间通透明亮。
多处地方运用玻璃材质,
尽可能的引用自然光。
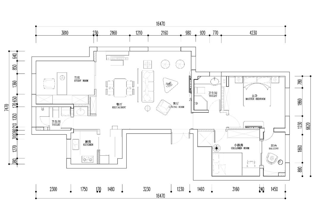
功能分区: 客厅 sitting room
餐厅 dining room
厨房 kitchen
书房 study
主卧
Master bedroom
儿童房 children's room
卫生间 toilet
大厅 hal
▼钢琴声从客厅缓缓传来 挥动着黑白分明的琴键 演奏着一曲曲动人的旋律~
▼通透的玻璃组合 开放式吧台与闭合式厨房的结合 加上清爽的蓝色 使得整个空间变得充满活力。
▼厨房忙碌的身影
互动性强的小吧台
▼简约的早餐台 简洁的餐布铺设 黄铜色的镂空花瓶 灰色系的窗帘 是一天美好生活的开始。
书房 study
▼闲暇空余之际,书房也确是一个好去处。复古的书架 矩形的玻璃吊灯 随意放置的木梯 惬意人生。
▼书中自有黄金屋,安静的在这小坐会,品一品书,别有一番乐趣。
主卧 bedroom
▼玄关走道 精致的玻璃吊灯 一抹靓丽的地面颜色 每一处都是精细雕琢。
▼推开门 优雅的床头壁纸 精致的桌几 复古的吊灯 整齐的书柜映入眼帘 是带来好心情的源泉啊。
儿童房 children's room
▼清晨的闹钟声 蓝白条纹墙纸 可爱的抱枕 连床头上方的装饰画也是精心挑选。
卫生间 toilet
▼复古绿的台盆柜 花砖的拼色 简易的毛巾架 为相对沉闷的卫生间增添一抹绿,充满着生活气息。
▼喜欢的摆盘设计
有些人即使是天天相见也不会相知,有些人相交甚少却彼此了解。设计是一种对生活的全新理解与认识,是设计师与屋主审美互相碰撞出来的产物。一个好的设计需要好的设计师,更需要一个品味相投的客户。
END
做您身边的设计管家
享受简单的设计生活
【半杯水设计工作室】
地址:慈溪市北二环中路427号
一个小小的转发,也是对我们的鼓励~
客服
消息
收藏
下载
最近




























