查看完整案例


收藏

下载
FOR LONGYUEDESIGN
轻奢风追求时尚与潮流,注重自我表达。整个体验空间以“无定义、无边界”为设计理念,唤醒生活的质感,坚持独立思考的生活价值观及自由精神,去表达不被定义的生活。
——设计师吴中情
●
01 PRESENT 呈现
- 现代轻奢,一种生活的态度,低调、舒适却无伤高贵与雅致,线条简单,装饰元素少,追求恰到好处的美感。它能张扬我们每个人的自我,同时又约束自我,理性化的面对生活。
P. 01
P.02
P.03
P. 04
P. 05
P.06
P.07
P.08
●
02DESIGN SENSE
设计感
每个家都有自己的性格
让人融入其家
找到存在感与归属感
才是设计最终诉求
关照内心精致生活
P. 09
P. 10
P. 11
P. 12
P. 13
●
03DETAILS
细节
- 通过背景墙的造型、材质等艺术处理,从而凸显出舒畅、轻松的意境。
- 运用材质、色彩和灯光、配饰的融合,使生活、功能、艺术完美的合一,实现既实用又美观,又兼具个性化的空间。
P. 14
P. 15
P. 16
P. 17
●
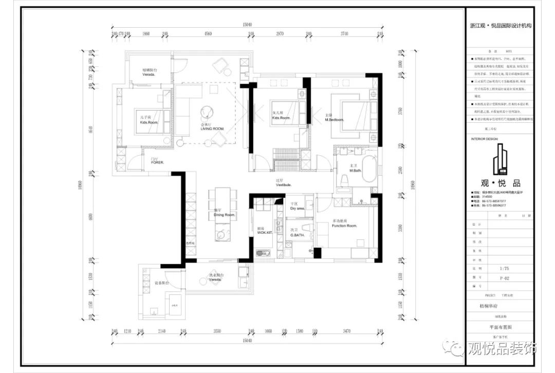
04ANALYSIS DIAGRAM
分析图
- 现代轻奢
一种生活的态度
低调、舒适却无伤高贵与雅致
线条简单,装饰元素少
追求恰到好处的美感
它能张扬我们每个人的自我
同时又约束自我
理性化的面对生活
项目名称 | 梧桐华府
项目范围|住宅设计
项目地点 |浙江 嘉兴
项目面积 | 170㎡
设计机构 | 隆悦设计
施工单位 | 观悦品精工
主案设计 | 吴中情
观悦品装饰
观悦品
不止于设计
不止于装修
不止起于当下
不止行于未来
观悦品
一个创新活力的设计品牌
一个激情务实的年轻团队
观道|悦心|品天工
地址:世纪大道 2480 号同鑫大厦 3 楼
0573-88597377
客服
消息
收藏
下载
最近





















