查看完整案例


收藏

下载
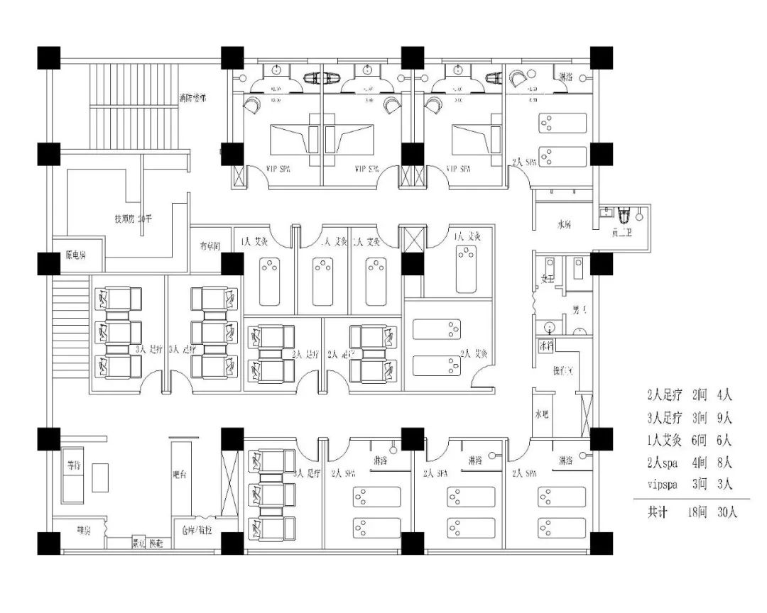
平面布置图
设计思路
Design ideas
整体项目风格定位新中式风格。从功能、美学、文化、技术等方面认真研究反复推敲,并进行深知与演变,来适应现代人的审美情趣与生活理念。使得场域内具有简约、时尚、流行、不拘一格的现代气息,同时具有中国传统文化的古典韵味。
设计思路图
设计效果图
Renderings
▲门
头效果图
创意说明
1,主门头充分发挥层高优势,从地到顶的形体关系凸显大气和豪华感,圆形入口方式增加中式意境感。
2,二楼原外立面窗户比较单调,现增加木纹方通材质做整体遮挡,使形态更加统一协调,原创半圆形的月亮意境抓人眼球。
▲
大厅全景图
一楼大厅效果
创意说明
1,从一层楼梯到达二层,进入总台和休闲区域,原创的莲花造型和玻璃隔断效果抓人眼球,最远处的卡座换鞋区域使用灯箱和格栅使原本封闭的空间给人更加开阔的视觉效果。
2,材质上使用木饰面、大理石、古铜不锈钢等材质搭配暖色灯光效果使空间氛围介于明亮和灰暗之间,意在打造高端大气的精品店。
过道效果
创意说明
1,过道空间,现场顶面有根管道2.3m高,根据这个高度做了弧形吊顶,左边最高点可做到2.6m高,既解决了高度问题,也使管道有效的隐藏。
2,墙面使用原创的格栅造型,将店名称也设计在内,植入品牌概念。
3,最远处的是水吧台,搭配灯箱画面,指引客户行动方向。
创意说明
1,二人包厢在灯光配比和颜色搭配上协调统一。灯光温暖柔和烘托出自然轻松的氛围,色彩低调内敛使人心理放松。
创意说明
1,三人包厢 在材质上选择大量运用深灰色乳胶漆,节约成本也缩短施工周期,以极其简约的设计手法着重营造出内敛舒适的包厢空间。
创意说明
1,单人spa包间。墙面用哑光色硅藻泥和仿麻布纤维板材质,都具有防撞防水可擦洗等功能,地面是仿木纹砖也是方便清洁,顶面采用镜面不锈钢材质,拉伸空间高度,解决高度较低问题。
2,通过局部软装和灯光手法,营造和谐温馨放松的空间意境。
创意说明
1,二人SPA包间。吊顶石膏板叠
级
造型,墙面仿麻布纤维板等材质,即可节约成本也可缩短施工周期。
创意说明
1,VIP包间。配置有更衣柜、写字台、卡座、卫浴等功能,满足客户的基本使用需求。空间氛围上着重营造温馨舒适的意境。
往期案例
月阑珊足道公馆
金曼谷足道会所
御龙古典足道会所
龙悦国际养生会所
净水莲spa足浴会所
鑫意境采耳
Thanks For Watching
长 按 识 别 关 注
专注商业空间室内设计
全国统一服务热线:
15395085899
长按识别咨询客服
客服
消息
收藏
下载
最近

















