查看完整案例


收藏

下载
和谷足道
养生馆案例
空间设计部分
设 计 思 路
整体项目风格定位新中式风格。
从功能、美学、文化、技术等方面认真研究反复推敲,并进行深知与演变,来适应现代人的审美情趣与生活理念。
使得场域内具有简约、时尚、流行、不拘一格的现代气息,同时具有中国传统文化的古典韵味。
设计效果图
门头效果图
创意说明:
从唐诗资料中找寻设计灵感,在设计过程中引入店名“和”“谷”的概念“谷鸟吟晴日,江猿啸晚风”,将谷物和稻穗等元素用现代的设计手法重新组合演变,使之具有简约、时尚、流行、不拘一格的现代气息,同时又暗合店名崇尚自然。
室内部分
公共区域 通过现代化的设计语言,表达出新中式的舒适意境。
创意说明:
1、一层楼梯间。楼梯踏步采用深灰色石材,墙面流水石搭配飞鱼软装,格栅搭配云图案硅藻泥,极力还原出新中式古朴自然。
2、在意境氛围的打造上,引入“水”的概念“问渠那得清如许,为有源头活水来”在楼梯下方放置景观水池搭配石雕摆件等使宁静古典氛围跃然纸上。
创意说明:
1、从一层楼梯上到二楼映入眼帘的是石材造景,两边墙面是屏风隔断和流水石,顶面水波纹不锈钢,增加空间玩味细节的同时又可丰富空间层次,使空间独具特色。
2、地面采用劳伦黑金地砖,镜面效果抓人眼球。
创意说明:
1、大厅顶面材质延续入口处,墙面以木饰面和硬包为主,视觉尽头处的墙面圆形造型使空间富有变化。吧台、休闲区与过道之间采用体块较大的格栅使空间通透,层次感强。
2、休闲区采用经典的中式座椅提升空间气质,搭配水波纹吊灯使传统与现代元素巧妙兼柔。
创意说明:
主走道,吊顶采用深灰色乳胶漆,地面采用劳伦黑金地砖,墙面以硅藻泥和火岩板材质为主,搭配中式狮柱和案台使整个场景赋有浓浓的新中式气息简约而不失质感。
创意说明:
副走道墙面采用肌理漆、流水石等材质使空间更具亲和力,转折处波浪灯光造型和创意的门牌灯以及局部的软装景观相呼应,成为空间亮点。
包厢设计
包厢 根据户型规范出若干个意境包厢
2人包厢
创意说明:
二人包厢在灯光配比和颜色搭配上协调统一。
灯光温暖柔和烘托出自然轻松的氛围,色彩低调内敛使人心理放松。
3人包厢
创意说明:
三人包厢 在材质上选择大量运用深灰色乳胶漆,节约成本也缩短施工周期,以极其简约的设计手法着重营造出内敛舒适的包厢空间。
4人包厢
创意说明:
四人包厢。顶面采用石膏板平顶,墙面运用深灰色麻布及中式格栅,地面是仿木纹地砖,背景墙的莲花透光造型也是空间的亮点。
6人包厢
创意说明:
六人包厢,通过地面抬高为前后阶梯状,运用多层次灯光效果和墙面艺术漆材质的细腻高级质感打造高端影院式足疗包厢。
SPA包厢
创意说明:
SPA包厢顶面采用深灰色乳胶漆,拉伸空间层次感,地面采用仿木纹地砖,墙面深色大理石材质凸显高级感和神秘感。
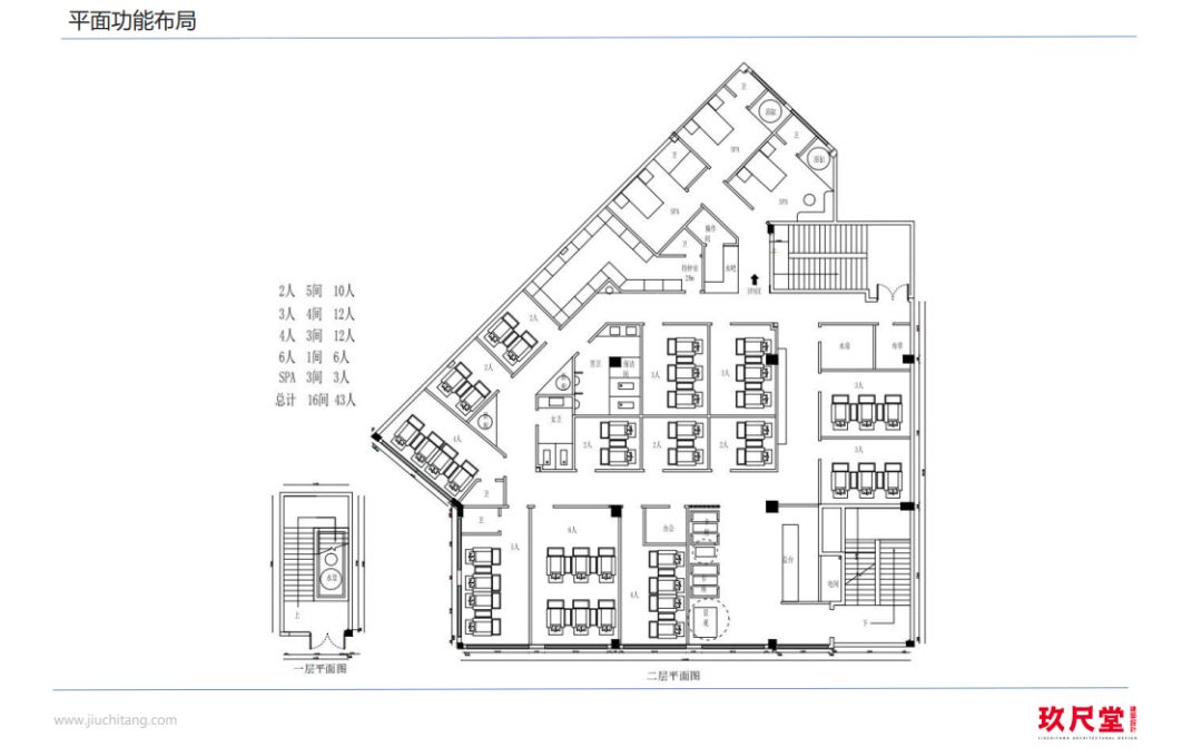
设计汇总
JIUCHITANG
Thanks For Watching!
122651909
15395085899
地址:
安徽省合肥市蜀山区托基金座A座611
客服
消息
收藏
下载
最近

























