查看完整案例


收藏

下载
Interior & Decoration Design
/
本期推荐
|时光静好
Home & Eternity
Interior & Decoration Design
Jiaxing ,2020
项目设计:上海艺念之间室内设计
主案设计:朱统菁
设计师说Forword
设计师朱工与业主一家相识于两年前,最初将装修的思路和风格定为传统美式。但由于种种原因,装修的计划被搁置下来。直到去年才再次被提上日程。根据业主的现状,朱工对原先设计方案进行调整,并结合现下流行元素,将整体风格改为现代轻奢。
原先的装修已有十多年,已经无法满足业主如今居住需求。比如,原先是三房两厅的户型,但经过世事变迁,业主的儿子已经出国深造,只是放假偶尔回来住一下,但他的卧室却还是儿童房的格局;另外,家中也没有和父母同住或是留宿客人的需求,女业主也特别想要一个大衣帽间,所以最终将整个家改造成了两房两厅的格局。
每个人对家的定义都不同,这和业主的实际情况、人员构成都息息相关。作为设计师,能为业主做的就是“空间升级”,包括厨房改造,电器设备,厨房用品等方面的升级,围绕业主的需求续写家的故事。
本期案例视频↓↓↓
本案情况
本案面积:140㎡
本案地址:嘉兴
房型:三房两厅
风格:现代轻奢
主案设计:朱统菁
▲改造前平面布置图- layout chart
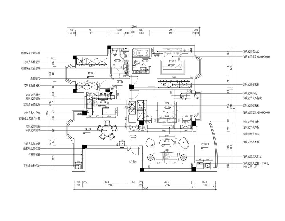
▲改造后平面布置图- layout chart
改造特色
1.三房改两房,将其中一个卧室改成女业主梦想中的衣帽间;
2.调整了过道的墙体,造出西厨区,结合岛台打造成开放式餐厨空间,空间宽敞感更强;
3.业主儿子已出国留学,设计师将小孩房改造成一个成年人的卧室,并打造两排收纳柜展示他的手办;
4.本案没有过多的装饰,设计师秉持“硬装即是装饰”的理念,借助灯光设计、吊顶金属线、亮面柜体、现代轻奢家具、仿石材砖等从整体营造出时尚、现代的氛围。
Living Room|客厅
现代轻奢,以极致简约风格为基础,通过一些精致的软装元素来凸显质感。既不盲目从众,又有着自身独特的品味。本案设计师朱工倡导“硬装即装饰”,所以即便没有较多的软装,整个家现代轻奢的感觉依然明显。
▲从阳台望向客厅,整个空间以浅灰色为基调,
简洁且层次分明的吊顶,搭配深棕色沙发背景墙,金属线条勾勒走边,整体干净利落。
▲
沙发背景墙,原本设计中是木饰面上墙,但最终做成了皮革硬包,主要也是从造价考虑,省下了一万块装修预算,将这笔钱花在关乎舒适性的配置上,比如升级两个智能坐便器等。家中也没有像样板房那样,到处都是挂画,设计师希望家中的装饰和业主本身是有关系的,而不是一种随意的堆砌。
Kitchen & Dining Room | 餐厨
开放式厨房的思路,在两年前就已经和业主达成共识。因为原先是封闭式厨房,使用下来局限性较大,因此做成开放式厨房更加适合本案业主。
▲在这个空间中,增加了长度1.2m的岛台,同时搭配嵌入式电器和收纳抽屉。岛台搭配L型橱柜,相对于老装修的操作台面来说增加了2m的台面,更方便使用。同时,本案有三处配置了蓝牙音箱,客厅、主卫和厨房,做菜的时候能形成轻松的氛围,让业主在这个家完全放松下来。
顶部采用了富有特殊机理的艺术漆,墙面墙布的选择也比较素雅,带有暗色花纹,于细节之处流露对生活美学质朴的向往。
▲厨房的配件也做了升级,比如转角处做了飞碟篮,更充分利用橱柜角落空间,方便放置锅具。燃气灶下方的锅篮碗篮也做了升级,使用了酷太的产品,配置了防水垫,内部的空间分隔也很灵活。抽拉式调味篮,隐匿于橱柜之中,不会让调味用品占用台面空间。
▲餐厅旁是狭长的北阳台,原来业主在这个阳台里面放了一组鞋柜,但实际使用不方便,因为人步入其中很局促,无法转身。如今,北阳台被打造成了一个生活阳台,拖把池、清洁工具等难以收纳的物品有了较好的收纳去处。
▲厨房配置了50cm长的轨道插座,好处就是所有的插头不用每次都拔下,只要旋转亮灯就能充电,再旋转灭灯就断电。但厨房同时也配置了几个传统插座,传统与现代的使用方式相结合。
▲拆掉原先通道的墙体,彻底打开空间,并设置西厨区。双开门冰箱、咖啡机、红酒柜都安排在西厨区,离开油烟远一些,但功能又归属于整个餐厨空间。
BedRoom
|卧室
原本主卧就是套间的格局,这次改造后,在主卫中增加了浴缸。考虑到常住人口是业主夫妻二人,设计师将家中两个卫生间,一个做成淋浴房,一个做成浴缸+花洒,这样功能就有了互补性。
▲主卧的套间,借用了过道的一部分,衣帽间紧靠卫生间,业主拿衣服不需要通过主卧,直接去衣帽间就可以拿衣服,拿完衣服可以直接去卫生间,动线如此规划更紧凑合理。
▲主卧中没有放置电视机,让卧室的功能回归到供人修生养息的本质。考虑到开间问题,原本应该悬挂电视机的墙面设置了整排衣柜,大大地增加储藏空间。
▲床头的一侧,以梳妆区来取代原本的床头柜,功能更加丰富。
▲米白色床头软包靠在简约款式的墙布上,依靠点光源来完成卧室的照明需求。整个空间充满了简约轻松的生活气息。
Second Bedroom | 次卧
次卧,原先是儿童房,摆放的是高低床,而如今儿子已经是大学生了,旧有的布局显然已经为生活所淘汰。因此,在此次装修中,将次卧升级成一个成年人的生活空间。
▲次卧的窗台,打造成了儿子的学习工作区,窗台的遮阳帘是儿子自己特别选择的。
▲业主的儿子喜欢日本手办,所以设计师专门在床边做了两排展示柜,来放置他心爱的手办。内部的尺寸均根据手办大小来定制。
WalkingCloset | 衣帽间
家中没有需要老人居住,客人留宿的需求,所以在此次改造中,将一间次卧大方让了出来,女业主心心念念的独立衣帽间,最终在这次装修中得以实现。
▲这个衣帽间原本是次卧,如今做成了两排到顶的衣柜,增加收纳空间。亮面的柜门让整个空间现代时尚,中间玻璃柜门的位置是放包包的区域,搭配灯带,营造出展厅的感觉。
▲衣帽间没有设置主灯,采用漫反射灯光,使得整个衣帽间灯光氛围更加柔和,同时衣柜内部都配置了开门即亮的感应灯。衣帽间做了新风,可以时刻换气,让衣帽间不会有异味。
washroom | 卫生间
卫生间的格局乍看没有太多改动,实际上原本的下水管道已经出现老化现象,所以在此次改造中,特别对此进行了全新的升级。
▲原本的下水管道出现严重老化,而且没有存水弯,家中经常出现返臭现象。在这次改造中,业主选择封闭式的地漏,防止异味和飞虫通过管道进入家中。
业主问答:
本案业主 吕先生
1.本次改造历时较长,是什么原因导致的呢?
答:旧房改造,需要下很大决心,光是重新整理一下就花了好几个月。最初我们只是考虑做局部的功能调整,甚至想过换一套房,但考虑到这里工作比较方便,所以最终还是决定将旧房重新翻新。
2.通过这次改造,您希望实现哪些功能上的升级?
答:很多人买房,都会考虑房间多一点,给父母来住住,或是留宿下客人。但是想想现在房价那么高,这个房间空在那里是成本非常高的。再加上现在家庭人口比较少,父母也多半住在周边,在这种情况下没有必要专门做一个客房。
一个家庭的女主人最希望有一个独立的衣帽间,包括能在家泡澡,这两个梦想,在首次和朱工交流时就提出了,最终也在这次装修中落地。
3.实际居住感觉如何?
答:入住的时候正好适逢疫情期间,妻子在家实际使用下来感觉很满意,能在家待得住。在家能泡澡做SPA,也做起了她喜爱的烘焙,可以说疫情把人封印在家,但也是对装修最实际的一次检验。
4.有哪些单品想要推荐给大家?
答:一是抽屉里酷太的组建,二是电热毛巾架。
设计师 朱统菁
中国建筑装饰协会高级室内建筑师
中国室内装饰协会室内设计师
全国杰出中青年室内建筑师
全国优秀室内设计师
上海市五星级室内设计师
百佳资深设计师
上海建筑装饰设计大赛别墅一等奖
广州设计周设计创造价值精英人物
金堂奖-全国优秀设计作品
全国新锐设计师50强
中国装饰设计别墅空间银奖
本案主材:
地砖墙砖、定制柜、实木多层地板、皮革硬包、艺术漆、进口卫浴洁具、电热毛巾架、新风系统、蓝牙吸顶音响等。
点击设计师名片小程序,直接预约品质设计↓↓↓
客服
消息
收藏
下载
最近























