查看完整案例


收藏

下载
Interior & Decoration Design
/
本期推荐
| 都市中的有氧森林
Home & Eternity
Interior & Decoration Design
Shanghai ,2020
项目设计:盛一装饰
户型图
项目地址:上海市嘉善路
项目面积:50㎡
项目户型:两室
项目风格:日式
项目造价:50万
设计师说Forword
本案位于上海市徐汇区,是一套80年代的老房,总面积50㎡。考虑到上班距离较近和预算,业主韦先生果断地买下了它。“短期内可能不太会置换了,所以期待能在这里营造舒适的生活环境。”韦先生说,由于房子面积较小,而家里又需要很多收纳的空间,所以“日式”化的设计能帮助自己实现梦想。
韦先生最满意的空间,是由次卧改造的日式多功能房,这里可以满足他睡觉、吃饭、娱乐、接待客人,甚至是收纳的需求。初来家中的客人,可能会觉得家里的物品很少,确实在肉眼可见的范围,几乎很少看到摆放在明面上的物品。但实际上,正是因为极致化地利用空间,才让整个家看起来如此整洁。
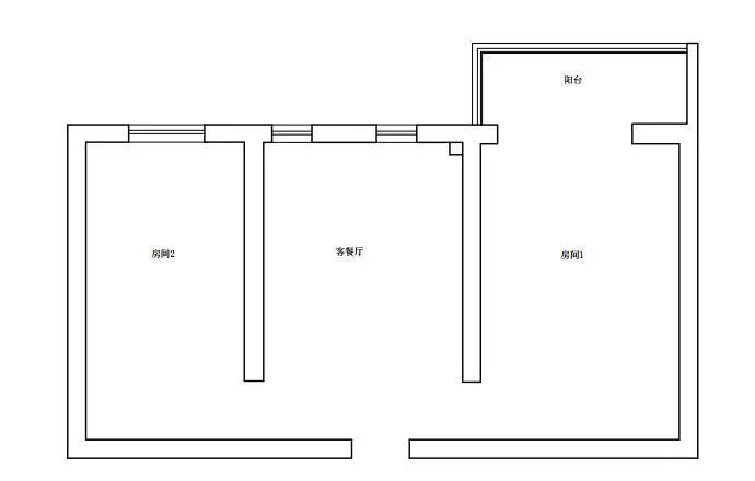
▲平面布置-改造前 / layout chart
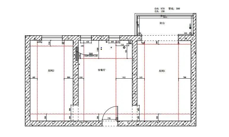
▲平面布置-改造后 / layout chart
▲平面布置图
改造设计特色:
————
1.卫生间做了三分离,同时使用了电雾玻璃,最大程度保证室内的采光通透性。
2.次卧改成多功能房,日式榻榻米大大增加储物功能,可折叠餐桌解决多人就餐问题。
3.厨房橱柜、衣柜等柜体的打造,均使用了方便拿取物品的五金件。
4.全屋主材使用日本品牌,呈现出浓浓的日式风情,同时也将日式家居的紧凑化、集约化特点运用到了极致。
Living Room|客厅
这个50㎡的小家没有真正意义上的客厅,从进门处进入室内,就是卫生间和厨房,以及过道空间。小型的空间,更需要集约化的利用和紧凑的动线处理。
▲从这个角度,可以看到,多功能房的门“不走寻常路”地采用了折叠门,拉起来就是一个独立空间,形成了小空间中的软隔断。和平开门、移门不同,它高度节约空间,打开合起方便,且具有防火抗菌防污的功能。
▲进门旁边的柜体,其实是厨房功能的延伸,也兼具了玄关柜的作用。冰箱上柜是韦先生夫妻二人的“零食库”,打开是两段式拉篮设计,即便上柜较高也十分便于拿取。
Dining Room&Kitchen|餐厨
因为是小户型,所以厨房做了敞开式的,没有“把门的”。L型的动线基本可以满足1-2人在这里烹饪的需求。
▲值得注意的是,韦先生特别在厨房的两面墙使用了珐琅板,这种材质的好处就是耐油污,易清洁。同时,珐琅板还能够抗高温,是一种安全环保的材质。
▲很多厨房收纳工具都可以轻松吸附在珐琅板上,免去了打洞的烦恼,而且可以随手移动,改变收纳的位置。
▲珐琅板,还可以成为一家人的“涂鸦板”,业主夫妻经常会将快到期的物品,写在墙面上互相提醒,不失为一种家庭生活的小乐趣。
BedRoom
|卧室
韦先生和太太都喜欢大床,其余的空间就比较小了,一旁的衣柜特别选用了不占空间的日式折叠门。
▲仔细看来,卧室的柜体都没有使用封边条,而是采用饰面板包边,同时做出了倒角,比使用封边条在视觉上更加简约化,而且也更加环保。
▲
床头的墙面,是业主的展示墙。隔板后面安装了氛围灯光,到了晚上开启灯光,形成浪漫的家居氛围。
▲主卧靠近阳台,透过玻璃移门,可以看到阳台的洗衣区。
Children's Room | 多功能房
▲
这是一个多功能房,也是一个满足业主休息、收纳,接待客人的场所。
▲多功能房的窗户,采用的不是玻璃窗,而是日本的和纸,榻榻米旁侧的展示柜,收纳功能强大。
▲展示柜和墙体之间,做了一小扇日式的窗格,遮挡了背后空调的管道,也让整个家充满了浓浓的日式风情。
▲榻榻米的草垫采用日本大建的
人工合成材料
,所以不会发霉。榻榻米柜体采用
桧木指接板
,自带植物天然的香气。同时,考虑到了榻榻米特别需要防潮,这个多功能室墙面同样做了硅藻泥。
▲如果朋友来访,需要聚餐,这个
折叠桌
绝对能派上用处。轻松拉开,它就从一个小方几,变成一个可供6-8人用餐的大餐桌。
▲墙面上的
壁龛
,也是营造就餐氛围的帮手。
Washroom | 卫生间
在厨房旁边就是洗浴区,整个卫生间的设计采用了
日式三分离设计
,把干区、淋浴和如厕分成了三个独立的小空间,除了能够起到干湿分离的作用外,还能够最大限度利用每一处空间。
▲
为了保证家中的采光通透,卫生间采用了
电雾玻璃
,不通电时是“雾”状视觉效果,自然形成视觉盲区。平时不使用卫生间时,开启电源,卫生间就会形成通透的视觉效果,同时将窗外的光线引入家中。
▲
小户型中几乎不会有两个及以上的卫生间,一家人轮番使用很容易出现“抢厕所”的现象。所以,彻底的干湿分离是有必要的。
▲卫生间除了有淋浴区还有浴缸区,满足一家人喜欢泡澡的生活习惯。
▲卫生间马桶区地面采用了
软木地板
,充分照顾到了脚感的舒适。
▲阳台,采用
三联动移门
,可以拥有比较大的空间进出。阳台是家里狗狗生活的地方,地面采用环氧地坪,便于清洁打理。阳台的另一侧是洗衣区,墙面木材上墙。
清单
本案
定制和室: 渡边
和室折门、厨卫阳台窗帘: 立川
厨房珐琅板: TAKARA
厨房水槽: TOCLAS
厨房龙头: KVK
硅藻泥: 天乐康
进户门: 富耐
玄关定制装饰立柱格栅: 盛容
卫浴电雾玻璃: 晶束
卫浴软木地板: 卡洛琳
浴缸龙头、浴室配件层架、浴室配件层板、毛巾环、手持花洒:三荣
全屋踢脚线、卧室房门、壁橱门: 骊住
全屋定制家具、定制壁龛、定制厨房:盛容
实木复合地板:元气东洋
阳台环氧自流平:乐途
| 本案业主:韦先生
盛一装饰二代目负责人,舒适生活爱好者。
韦先生VS爱犬 Panda
点击设计师名片小程序,直接预约品质设计↓↓↓
客服
消息
收藏
下载
最近





























