查看完整案例


收藏

下载
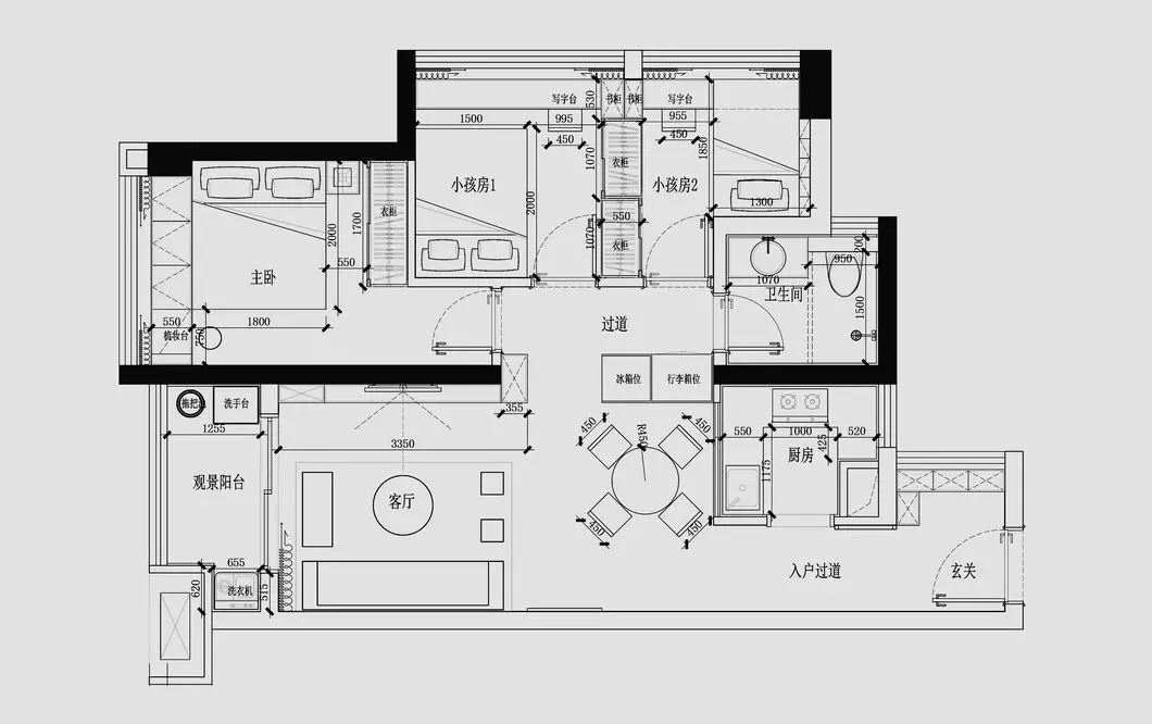
平面布置图
玄关走廊利用一个凹槽空间来做了鞋柜,从玄关一直延伸到餐厅处的墙面都做了相同的设计,让整个空间看起来宽敞又明亮。
走过玄关就到了餐厅空间,这个餐厅给人一种淡淡的禅意感,用白色的桌面搭配灰色的布艺餐椅,看起来简洁又有档次。
客厅和餐厅之间没有做隔断,上方以白色的天花板代替吊顶,还把电视背景墙给改成了收纳款,整个空间看起来宽敞又明亮。
为了体现出中式风的美感,选择了在细节处展现中式风,比如端景台、挂画和硬朗的沙发等,都让人感觉到新中式风的独特美感。
客餐厅之间有着通往卧室和卫生间的走道过道,这个走廊过道也没有被浪费,开放式的展示柜、封闭式的柜子和冰箱等都被塞进了这个走道里。
这套新中式之家,主要就是通过缩减各个卧室的空间,来达到三间房的需求。主卧室靠窗的位置改成了书桌搭配吊柜的设计,满足在家工作的需求。
主卧室的床头背景墙做了硬包背景墙的设计,木饰板搭配布艺的饰面,结合黑色的铁艺床头柜,让这个卧室看起来干净利落。
两间次卧的设计都差不多,为了方便孩子平时做作业和学习,利用床上方的墙面做了开放式的书柜,还在靠窗的位置设计长书桌,使用起来非常方便。
卫生间这个空间比较迷你,所以也没有隔出淋浴房,舍弃了干湿分离的设计。整个卫生间通铺灰色的瓷砖,墙地面的瓷砖款式不一,看起来更有层次感。
点击“阅读原文”可
预约免费量房、出设计方案!
客服
消息
收藏
下载
最近













