查看完整案例


收藏

下载
PLAT ASIA 郑东贤工作室
阿那亚隐庐酒店
秦皇岛黄金海岸
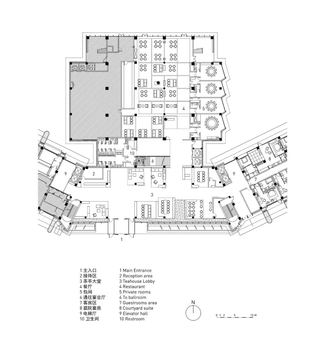
阿那亚隐庐酒店位于秦皇岛黄金海岸一栋五层展翼式建筑中,PLAT ASIA郑东贤工作室受委托进行室内设计。酒店共配备180间全汤池客房,以及多功能大堂、全日餐厅、宴会厅、SPA理疗中心、冥想室等功能空间。
设计旨在创造可抽离城市日常快节奏高密度信息流、恢复精神、释压身心的度假空间。全汤池酒店的身心尽致体验和茶亭大堂的徜徉停眸将一场旅宿的归属感定格在时空的记忆里。
以下内容,横向观看更佳
·
以下内容,请竖向观看
设计手稿
平面图
项目信息
项目名称:阿那亚隐庐酒店
项目地点:秦皇岛·黄金海岸
委托单位:阿那亚
设计单位:PLAT ASIA
设计范围:室内设计
设计团队:PLAT ASIA 郑东贤工作室 – 郑东贤,刘国伟,练敬韵,廖苑余,段弈辰,李满颖;驻场设计师 –
段弈辰
室内面积:18,000平方米
建筑层数:5层
客房数量:180间
功能空间:大堂,客房,全日餐厅,宴会厅,冥想室,SPA等
设计时间:2020.10-2021.12
建设时间:2022.01-2023.04
项目摄影:存在建筑-建筑摄影
项目视频:PLAT ASIA 南迪工作室
室内施工图设计:山东一卜川建筑装饰设计有限公司
设计师简介
郑东贤
PLAT ASIA联合创始人
韩国籍建筑师,PLAT ASIA联合创始人,具有中日韩文化背景。师从日本建筑史学家铃木博之,2008年获得东京大学博士学位,期间就职于建筑大师矶崎新工作室;2010 年与合伙人边保阳共同创办PLAT ASIA。在华实践15年来,致力于当代东方建筑的实践与研究,在设计中挖掘日渐消弭的东方文化精髓,基于当代的设计手法和语境做设计。PLAT ASIA 郑东贤工作室通过设计解决建筑及室内在自然环境及场所的存在状态问题。专注发掘文化展示项目的自然体验,研究自然与城市中满足当代人精神需求的度假及公共建筑及空间,以创造非日常,非城市,非常规的空间体验为创作手法和实践理念。
PLAT ASIA 是立足北京的国际化建筑师与设计师团队,2010年由共有东方文化背景的边保阳与郑东贤联合创立,PLAT ASIA坚持传承东方自然观,建筑观,文化观,完成多个具挑战性的项目,在城市生态与自然环境中持续实践,以当代手法面向未来做设计。PLAT ASIA受全球知名建筑媒体关注,建成项目荣获多个国际设计大奖。PLAT源自PLATFORM-FORM,即去除形式主义的广阔平台,现由专注不同实践领域的工作室组成,包括规划、建筑、景观、室内、家具、视觉等设计方向,事务所位于北京798艺术区。
客服
消息
收藏
下载
最近













































