查看完整案例


收藏

下载
恒田的新项目来自一个上海的三口之家。房子建筑面积 92㎡,业主家的孩子正在学龄前,不久即将进入小学阶段,家里的老人也会偶尔来住。男业主是创业工作者,工作、会议占据了生活的大部分时间,剩余的时间希望可以用心陪陪家人和孩子。女业主的工作则比较规律,周末时间,偶尔有三五好友来聚餐。面对未来生活的种种可能,如何才能让设计满足未来 15 年的居住需求呢?
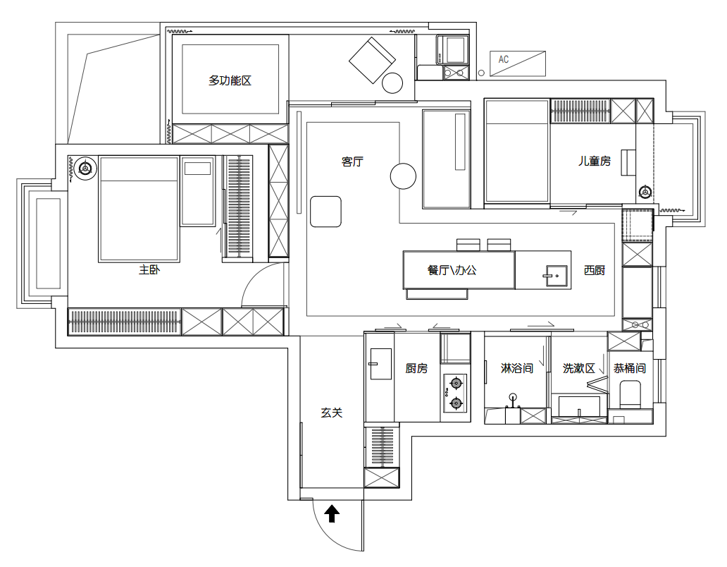
重塑空间格局,收纳面积达 25%。
由于房子被原业主出租了很多年,几度魔改后空间支离破碎,大面积隔断让每个空间几乎是封闭的,水电改造情况甚至都不得而知。
就如同原始照片反映的一样,每个空间都几乎是脏乱差,马桶和淋浴甚至安排在了阳台,入户的位置是简易厨房,居住环境非常差。
我们重新规划了空间格局,通过拆改阳台、卧室、入户等处多余的隔断,将原来封闭零散的空间改成符合三口之家的二室二厅格局,额外增加多功能区,满足老人偶尔的居住需求。
改造后平面方案(左滑查看原始照片)
1. 将阳台部分多余的隔断全部都打通,恢复成一个通透的大阳台;
2. 将客厅、入户多余的隔断打掉,使入户和客厅连成一体,动线更加流畅,营造“南北通透”的既视感;
3. 重新规划厨房空间,将厨房、淋浴间、洗漱区、恭桶间连成一线,空间格局更加科学;
4. 卫生间实现了三分离,满足高峰时段家人的使用;
5. 整个空间进行系统收纳设计,收纳面积达到 25%。
衣帽柜+玄关分区,实现无尘入户。入户右手边设置了衣帽柜,中间预留开放格,是专门放置进出门小物件的空间,方便随手拿取;下方的开放格用来收纳常穿的鞋。玄关处与室内用不同的地面材质区分开来,在外忙碌了一天回到家中,可以将鞋子、外套脱下后进入到室内空间,实现无尘入户。
玻璃墙+中西分厨,让做饭变成一种享受
进门往家中走来,首先映入眼帘的便是无敌的通透感。大大的落地窗,纱窗轻覆,光照和煦。
厨房墙面采用玻璃设计,一方面可以增加采光,另一方面,下厨的时候也更方便与家人交流、陪伴,这就是家的感觉,也是爱的关怀。
左滑查看实景图、效果图
餐厅是一个多功能空间,平日里屋主一家更多是去附近的外婆家蹭饭,只有周末聚餐会用到餐桌,所以平日这里还是男主人的主要办公区域。边工作边看宝贝女儿和妻子互动游戏,让一家人更加亲密。
餐厅上方的艺术吊灯简洁又有设计感,夜晚照射在光滑的桌面,会有灯光反射回来,营造出温馨氛围。
餐厅一侧设置了西厨水吧空间,家用小电器,咖啡机、奶泡机等都收纳在这里。下方的柜体还可以用于放置日常茶饮、酒水、零食等,还配备了一个小冰箱。
宽敞的岛台为烘焙提供了充足的操作台面,餐岛一体的设计,可以增加家庭互动交流,也赋予这个空间更多功能。
通透感客厅,墙面还暗藏客卧?客厅与阳台之间采用了上轨道推拉门,平常的时候,推拉门保持敞开的状态,开放的空间减少了隔断的阻碍,可以方便全家的互动与交流。
滑动查看客厅效果图
闲暇时分,拉上遮光窗帘关掉多余的灯光,就可以享受影院模式。空间暗了下来后,沙发上方的壁灯在这时就起到了作用,随手一开,角落被默默地温柔点亮,既不影响观影效果还不影响采光。
多功能空间设置在与客厅相接的 L 型阳台,这里是家人好友偶尔留宿的空间。吊轨的推拉门既保证了私密性,又不会影响地面平整,方便清洁。
由于家人只是偶尔暂居,所以我们特意采用了墨菲床。为了方便夜间走动,还特意增加了小夜灯,感应照明,是留给家人的细致关怀。
不使用的时候可以完全收进墙面柜体,这里的空间就可以用来运动、休闲或是晾晒衣物。
三分离卫生间,错峰使用更高效
“一个家幸不幸福,去趟厕所就知道了。”
卫生间我们在设计时采用三分离,淋浴间、洗漱区、恭桶间功能分离后,可以满足高峰时段时,不影响其他人的急用。
根据业主生活习惯,洗漱区镜柜设置一定比例的开放区域,在整洁与便利度中达到平衡。恭桶区选用壁挂马桶+小喷枪的形式,便于清洁打理,杜绝卫生死角。
低饱和度色彩+原木,打造温柔感儿童房。儿童房采用柔和的低饱和度色彩,营造温馨的睡眠环境。
上下铺的设计,休息在上铺,下铺空间空出来,可以用作收纳空间或者搭一个小帐篷,是孩子的秘密基地。
儿童学习区设置在飘窗处,书桌是推拉式的,学习的时候可以拉出,保证孩子的腿可以伸直,有一个舒服的学习姿势。不使用时书桌推回,空间就节省了下来,孩子又可以随心所欲畅玩。
打造漫反射光源,安享静谧睡眠。主卧设计取色上,结合业主的喜好,以雾霾绿为主色调,搭配全屋漫反射光源,避免光源直射,营造出宁静内敛的睡眠空间。
床边小吊灯垂下来,点亮床头一角,方便晚间阅读。
由于男业主工作繁忙,我们特别在设置主卧收纳柜时,增加收纳小床的空间。白天的时候可以将小床收纳进柜子,晚上女儿可以在小床上睡觉。再晚回家,宝贝女儿一睁眼就可以看到心爱的爸爸,也是一种无言的陪伴。
左滑查看客厅效果图。设计的重点不仅在于功能空间,更在于将爱与陪伴融入细节之中,修饰生活,成就幸福。
客服
消息
收藏
下载
最近






































