查看完整案例


收藏

下载
项目
地址 |翠微新城
项目面积 | 400m²
项目设计 | 武汉咫尺设计
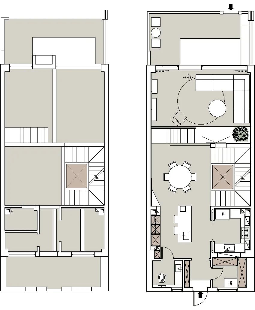
负二层平面图
负一层平面图
1. 负一层作为休息区,设置了影音区和吧台;空间宽敞、格局分明、流通性强,可容纳多人,家里来很多亲朋好朋也不会显得拥挤。
2. 负一层是入门层,将客厅设计为下沉式客厅+挑空设计,营造出开阔视野。
3. 将原本的狭小布局打通,分别设计为进门处的收纳空间、厨房、卫生间以及餐厅和开放式厨房。合理运用空间的同时也使空间看起来更加宽敞。
单株绿植与条形灯将两层空间连接成一个整体。大落地窗为室内引入大量光线搭配浅色调,让整个空间更显通透、明亮。
下沉式客厅+挑空设计营造出开阔视野。L 型大转角沙发大气又让空间延伸感十足。楼梯扶手用透明玻璃代替高级又不显压抑。
厅内灰白肆意的自然纹理与奶白色墙面形成反差,碰撞出艺术的火花。家具的颜色和摆放让空间更有层次感,呈现出更和谐的视觉效果。
沿墙设计了吊柜边柜,丰富了空间功能也填补了视线空缺。极简无把手设计增强美观度,不仅质感高级也更显大气。
定制大理石桌台与梁柱相连,同时还增强了空间的延伸感。
弧形元素作为营造精致柔美氛围的利器,在餐厨空间中多处可见其温柔的身影。将中岛台与梁柱相融,化解了梁柱的视觉突兀感。白色大理石的自然纹理自带高级质感且兼具观赏性。木质通顶收纳柜满足餐厨空间的所有收纳需求,厨电嵌入柜体内让线条更为平整。
双圆吊顶、拱门入口以及墙面的圆边长镜,在细腻微水泥与木纹的映衬下让空间愈显静美。无论是用餐还是料理,时刻都能感受到治愈气息。
2021 金堂奖-优秀住宅公寓空间设计奖
2021 我要去米兰-中国设计力青年榜武汉 Top10
2021 金住奖-中国(武汉)十大居住空间设计师
2021-40UNDRE40 中国(武汉)设计杰出青年
2021 芒果奖-中国住宅优胜奖
2021 未来空间智装营-未来空间智装师 Top10
2021 上海国际设计周-新锐设计奖城际榜
2021 第九届‘未来之星’青年设计师全国三十强
2020 芒果奖-中国住宅优胜奖
2020-40UNDRE40 中国(武汉)设计杰出青年
红棉中国设计奖-2020 室内设计奖
好好住-2020 营造家华北赛区 Top100
她设计奖-2020 年度优秀软装设计奖
2020“自然 共生”G+设计精英大赛全国 Top100
M+中国高端室内设计 2020 武汉“头号设计师”
2020PCHOUSE AWRED 全国 BEST100 杰出设计机构
2020 设计本最佳软装搭配、最佳别墅/豪宅空间奖
2020-2021 上海国际设计周新锐中国设计奖省际榜单
2021 第九届立邦“未来之星”青年设计师大赛全国三十强(住宅组)
2022 阿里巴巴每平每屋设计挑战赛 top300
客服
消息
收藏
下载
最近

















































