查看完整案例


收藏

下载
每一个孩子都有一个关于滑梯的童年,
“我做晨运,他玩滑梯,他说是时光隧道,
滑下去,就变回小孩子了。”
-------这是一首成年人的诗,
也是他儿时与滑梯共度的记忆。
城市森林中的儿童绿岛
△ 混凝土森林中的绿岛
△ 第五立面的塑造
安康高新第五幼儿园,位于一个高层住宅环绕的混凝土森林中,通过退台、围合、第五立面的设计,为钢筋混凝土森林中高密度居住区里的孩童们,打造了一个可以“呼吸”的绿岛。
建筑整体呈 L 型,围合出儿童活动场地,让孩子们在其中安心地玩耍。
建筑采用立体绿化,做到每个教室窗前都充盈着油油绿意,让孩子们与花鸟虫蝶为伴,在大自然中茁壮成长。
屋顶开设的绿色农场,让孩子在劳动实践中收获成长的果实,体验式的教育也是孩子们人生中的第一堂劳动启迪课。
安康高新第五幼儿园宛若一个可以爬上滑下的大玩具,陪伴着小朋友们茁壮成长。
△
第五立面设计及流线分析
©UUA
层叠的退台与活动场
幼儿园主体建筑集中布置在场地的西南侧,从而在东北侧形成了一个开阔的室外活动区域,同时有利于室外场地的遮阳和建筑内部的自然采光,促成建筑和场地的有机融合。
△
建筑与场地的有机融合
△开阔的室外活动场地
幼儿园的三层建筑采用退台处理,并将安全滑梯与退台结合,形成了幼儿园的视觉聚焦点,让每个孩子在此都留下一段美好的成长经历,记忆中的大滑梯,便是他们童年美好时光的见证和回忆。
△
方案生成分析
©UUA
△
三层退台式处理
△连接退台间的台阶
△通往屋顶的台阶
建筑与室外活动场地的界面均采用凹凸进退的处理手法,同时创造了许多妙趣横生的微空间。
开放的户外活动场地,让儿童尽情享受自由奔跑的乐趣,室外活动场地的超大配比,给予了孩子更舒适安全并且丰富多彩的户外活动体验。
△ 丰富的户外空间体验
△多彩的檐下空间
多重元素的建筑外立面
△丰富的立面配色
幼儿园外立面简约现代,墙体采用环保的砂黄色和米白色晶彩石涂料,窗框与遮阳格栅采用原木色泽,塑造出幼儿园细腻温和的质感。室外阳台和楼梯的天花引入鲜艳的橙色,用色彩的语言表达建筑的活力。外墙采用模数化的装饰线条,是建筑整体几何逻辑的外在映射。温合、活泼与严谨,看似差异化的特质,以一种有机的方式被融合在一起。
△
充满亲和力的主入口
△将空调外机隐匿于立面之中
△
模数化的立面线条
△简约的建筑形体
丰富温暖的室内空间色彩
幼儿园室内色彩甄选自三原色衍生色调,为孩童的色彩认知提供丰富的启蒙引导。不同的颜色充当着指示标识,形象直观地引导孩子们到达各个功能空间。
在各个教室里,精心的选色为孩子们开辟出了积极健康的生活学习乐园,在培养他们色彩搭配和审美能力的同时,也赋予了他们一个色彩绚丽的童年。
△
阳光
走廊
△
标准教室
△
阅览室
△
多功能教室
△课外教学区大厅
教培一体的功能与空间组合
△南侧日常教学单元
幼儿园的日常教学单元集中布置在场地南侧偏西 15 度,可以将更多的阳光和景观视野引入建筑内部。日常教学单元采用上下对位的组团式布局,利于结构和管线的高效布置。
△西侧课外教学单元
课外教学功能区布置在场地的西侧,与幼儿园在功能上紧密联系,又可独立运营,为孩子们发展特长爱好提供了便利条件。
△ 功能空间布局©UUA
滑梯-童年的时光机
幼儿园室外的层叠退台,由多部滑梯连接,这种充满童趣的交通方式,持续不断地激发孩子们的探索欲。
与此同时,室内大厅也设有一套组合游乐设施,同样以滑梯为主题,成为了孩子在课间,以及等待父母接送间隙最快乐的场所。
△与退台结合的滑梯
©UUA
△连接室外退台的滑梯
△室内走廊与室外滑梯
△
大厅内的组合滑梯
专属于 “小人国” 的成长乐园
在安康高新第五幼儿园里,从楼梯台阶,到家具洁具,都是为这个“小人国”而精心准备。
童年的记忆,有滑梯、绿岛和七彩虹,有充足的安全感和探索欲,有丰富的小微空间的体验,让孩童时代的他们,上了人生中第一堂关于“探索体验”的启蒙课。
△儿童尺度的家具设计©UUA
△ 教室活动区
△ 盥洗室入口
△
多功能阅览室
还原度对比
△室内:效果图 vs 实景照片
△室外:效果图 vs 实景照片
技术图纸
△
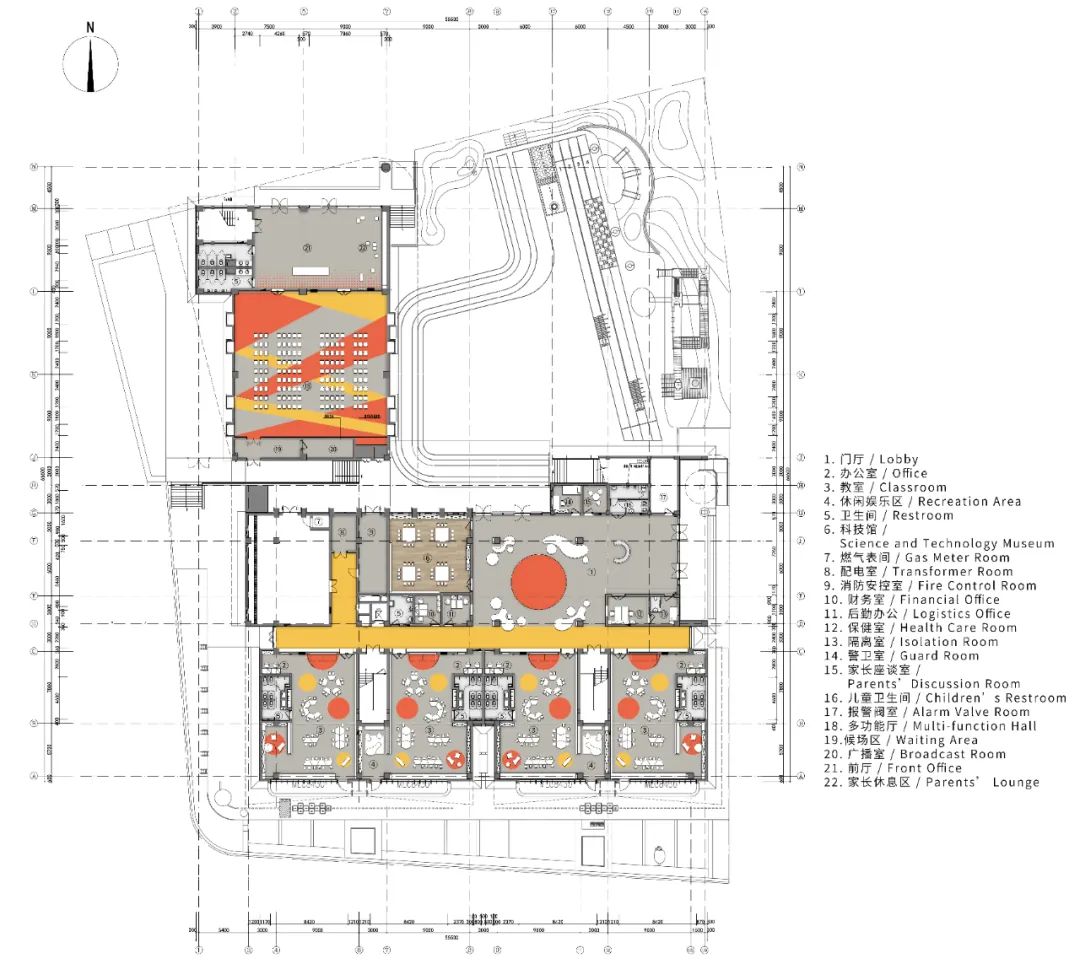
首层平面图©UUA
△ 二层平面图©UUA
△
三层平面图©UUA
△
屋顶平面图©UUA
△
轴测图
©UUA
△
墙身和屋顶大样©UUA
项目信息:
项目地点:陕西安康
项目规模:8,000㎡
项目业主:安康高新博元
项目年份:2016 - 2021
建筑设计:UUA 建筑师事务所
室内设计:UUA 建筑师事务所
主持合伙人:李泳征,李其郅
设计团队:邓亮,姜腾,吕延锋,赵胜利,陈立业,马兴华,方泓博,迟冰钰
景观设计:UUA 建筑师事务所 + Yearn Space landscape(李双双 赵慧 穆莹)
项目管理:吴永刚,杨威,罗来超,刘佳,付贤军,杨钧超,商沙沙
施工团队:安康希承建设工程有限公司
工程管理:殷超,李晨,王勇,章建宁,赵玉虎、胡塬
建筑摄影:直译建筑摄影
媒体负责:赵冰
相关项目导读:
【安康中学大礼堂|回忆中学时光】△
校园精神空间的新生
【通透的无界图书馆空间| 云幔书屋】△
人与自然的协奏曲
【小城现象级城市更新| 安康市图书馆改造】△
WAN 建筑金奖
客服
消息
收藏
下载
最近






















































