查看完整案例


收藏

下载
各朝各代不断更迭至今,千年的文化传承至清时。向世界展示的是集千年文化于一体的古典东方美学,于精神于物质。宣告着东方美学的正雅之貌。
传承千载的形体在我们的生活中依稀可见,那是的过往时代印记,本案重新将其运用于空间之内,重温记忆中的过去。
于精神于物质。宣告着东方美学的正雅之貌。
▲入户庭院
将清代的文脉诗韵在空间雕琢的细节中娓娓道来——典雅厚重、作工精细之间点染出时代的风貌,重新刻画人们记忆深处清时的样貌,也是在勾勒这个现代简美空间中的东方情调。
▲客厅
室内的设计,处处透露着对东方清雅生活意境的美好追求。室内的主色调汲取了清时的石青色,清雅的色调与现代简约形制融构于一体,在空间中铺陈出别有风致的现代中式美学意涵。
▲餐厅
还原记忆中的生活味道,在清净的空间与时间里,用平凡而朴素的物件,仔细诉说对东方清雅生活意境的追求。在繁复的城市生活中,以这样一处安静而有知味、透着厚度与质感的所在,安放身心,满足人们对家的期待。
▲主卧
以清代的文化背景作为支撑,传递着特定文化氛围中人们的生活和精神追求。用淳朴的方式展示特有的意境之妙,让雅气和贵气一同展现。用安静的材质、柔和的色调,将雅做到了极致,让空间沉淀浮躁的心性,抒写着久违的东方情怀。
▲衣帽间
静守时光,榴花簇簇,蕊珠如火,这一染红在静谧中格外夺目,点燃了空间的活力,挖掘了夔文的长寿意蕴,以传统元素象征着对吉祥的向往。
▲书房
在室内空间中加入一抹优雅浅淡,摒弃了繁冗复杂的色调与修饰,以删繁去简的手法将自然引入空间意境。
▲老人房
走入空间,可见植物的柔美点染于背景之上,渲染出怡人舒适的空间氛围。将四时风光纳入框景中,邀人坐看自然的生机、时间的足痕。
▲儿童房
设计师以人性化的设计思维方式出发,使室内不同空间的格调和秩序互为映衬、各自延伸,借由营造一种设计氛围,体味统一性的美。
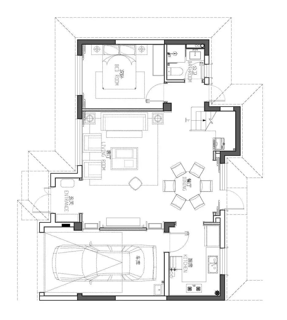
▲一层平面布置图
▲二层平面布置图
项目名称
| 五矿铂海樾府样板间-
E
户型
项目地址
| 中国 营口
设计面积
|
164.2
㎡
项目单位
| 五矿地产
甲方团队
| 东北区域设计管理部
硬装设计
| 深圳市泛思特装饰工程有限公司
施工单位
| 创造工场(大连)装饰工程有限公司
项目摄影
| 彦铭工作室
客服
消息
收藏
下载
最近




















