查看完整案例


收藏

下载
长安回望绣成堆,山顶千门次第开。——唐 · 杜牧《过华清宫》
盛唐的气节在诗歌的气韵中展现的淋漓尽致。
根据唐朝时期的“艺术”“建筑”“文化”等等来表达着空间端庄、气派的盛唐古风。
▲庭院
为华丽的唐风色彩加入现代语汇,将其宁静又纯粹的现代氛围与中式长轴空间揉合,集结唐朝精致文化并融合现代美学,在喧闹的
城
市中创造简约宁静却气势奔放的新中式空间,不流于世俗的一昧仿唐,空间的自由于山水云雾之间展开,独树一格。
▲玄关
以返璞归真的表现手法融情于景,落笔处尽显先锋时尚感,而婉转笔锋则娓娓带出拙朴真挚的气息。
▲泡池
用纤细、古朴的形体突出唐时期的高挑,细腻,温雅的特点。细节上佐以精致金色点缀,迎合该时代追求精炼简约、点缀华丽 细节的典型工艺密巧。
▲客餐厅
红叶烂漫,茶味清甜,长榻松软,空间整体营造出一种气质独到的唐代美学旨趣,生活在氤氲中更显淡之况味。
▲厨房
考究体态的端庄浑厚,造型别致新巧,装饰华丽精美,展示大唐风采。让空间与体态丰腴、雍容华贵的唐代贵妇人形象统一和谐。
▲书房
富有传统韵味的字画,饰品摆件等点缀,叠落出唐代古朴雅致的韵律之美,营造一隅清雅恬淡的文人精神世界。
▲主卧
将唐代意美与人文内涵兼收糅合,以素雅简净的居住格调舒缓疲惫于都市节奏的身心, 素锦亚麻、 花艺瓷器等东方饰物共同抒写诗意风华,空间别有一番清雅艺韵。生活于此,无 过多尘杂琐事,心静且轻,安逸闲适。
▲老人房
在空间中延续唐代风格中端雅稳重的设色意图,在古朴雅致的形体与悦目的摆件烘托下,氤氲意境,唐代韵律和谐的艺术特质一展无遗。
▲女孩房
围绕唐风和仕女元素,以画和唐朝服饰为主要装饰题材,营造一个具有盛唐气息的空间。
▲男孩房
男儿当自强,用弓箭房间展现空间的男儿气概。
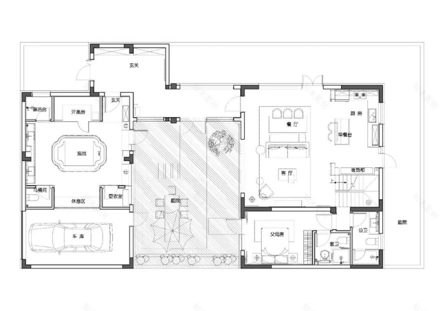
▲一层平面布置图
▲二层平面布置图
项目名称
| 五矿铂海樾府样板间-L户型
项目地址
| 中国 营口
设计面积
| 238.3㎡
项目单位
| 五矿地产
甲方团队
| 东北区域设计管理部
硬装设计
|
FANST
泛思特
设计
施工单位
| 创造工场(大连)装饰工程有限公司
项目摄影
| 彦铭工作室
客服
消息
收藏
下载
最近

























