查看完整案例


收藏

下载
到夏日,想被夏天卷起卷进温柔的清风里、柔软的云朵️里、还有橘子味的拥抱里。
DESIGNER+DECOR
项目名称|湖畔御园
设计风格|美式
项目面积|360㎡
房屋类型|联排别墅
本案设计师|赵倬艺
今天小编就给大家带来一个风景优美之地的美式风格的联排别墅设计案例,相信一定可以点亮你的眼眸。房子位于凤凰山脚下,环境优美,客户选择这个房子就是为了度假和享受,所以本案设计,我着重了生活的功能性。
+ The basement 地下室
|效果图
|实景图|
地下室主要以男主人的健身为主,准备了一套完善的健身设备,打造休闲与健身相结合。
Sittingroom 客厅
|效果图
|
|实景图|
一层风格偏柔美为主的美式风格,软装色彩上更注重颜色的分明对比,柔美中突出了重点。墙面采用灰白系列的护墙板,没有太多造作的修饰与约束,家具的配置上增加了一张亮色的沙发来提亮整个空间,与窗帘的那一抹相呼应。+ The kitchen 厨房|实景图|
厨房是生活气息最浓厚的地方,一家人能够围坐在一起吃饭就是最大的幸福,而厨房就是创造这种幸福的源头。
+Childrenbedroom 儿童房
|效果图
|
|实景图
睡前的絮叨,梦中的呓语,开窗吹进来的风,淡淡的木头味道,都让人感到了幸福。
Master bedroom 主卧
|效果图
|
|实景图|
主卧室视野开阔,采光通透。简约、现代、中式三种元素相协调,构建出空间的美感。+ The bathroom 卫生间|实景图|
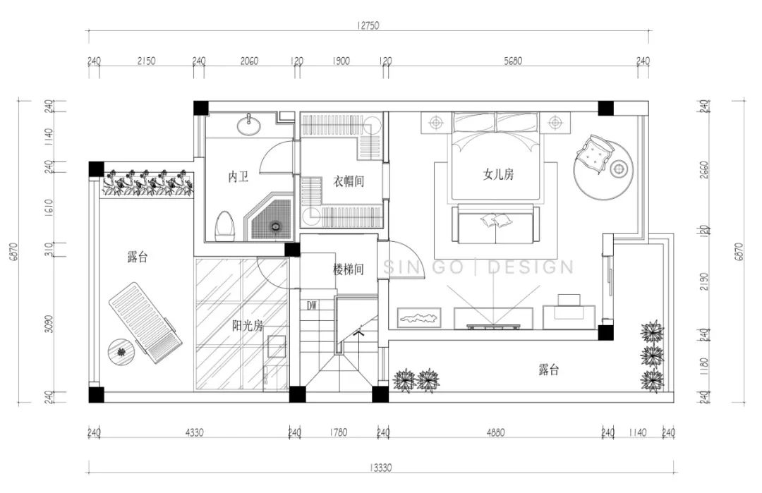
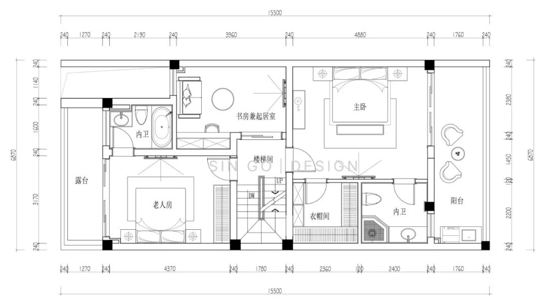
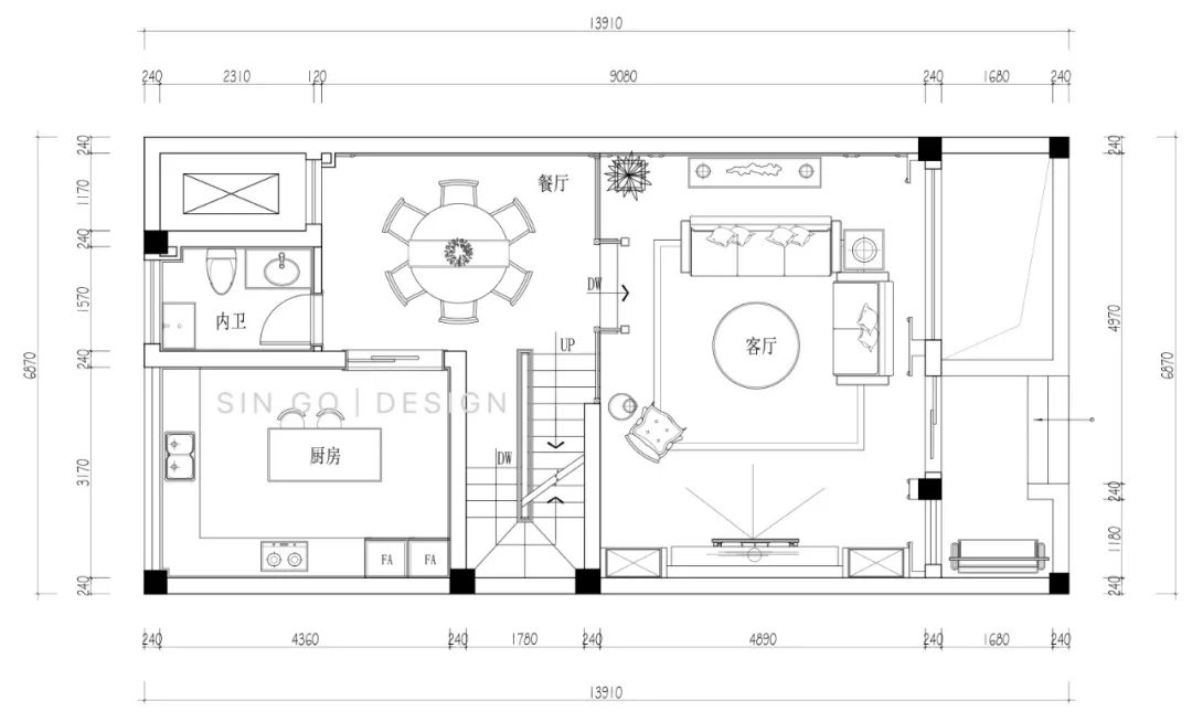
平面图
设计师—赵倬艺
毕业于江苏理工学院。14 年专注室内环境艺术设计。2014 年:亚太室内设计大奖赛(苏州)家装类优秀奖。2014 年:首届“包豪斯奖”国际设计大赛优秀奖。中国注册室内设计师。CBDA 中国青年室内建筑师。
设计理念:勤于沟通重于大局,微于细节,贵于专业。
擅长风格:美式,轻奢,北欧,现代、新中。
人物风采————READ MORE>>>>>
(点击图片查看往期文章)
以上皆为星杰实景。
查看更多实景案例。
初心未改。
严真以待。
止于至美 不止于美。
咨询热线:0512-58963318。
地址:张家港 人民中路 151 号,金城大厦 17 楼。
客服
消息
收藏
下载
最近

































