查看完整案例


收藏

下载
“智者乐山,仁者乐水”,繁华都市把生活节奏加快,能纵情山水显得尤为珍贵。业主从事金融行业,平时难有闲暇,有一对可爱的双胞胎儿子后更觉时间宝贵,希望家能成全高质量的陪伴时光,从此有山有水也有你们。
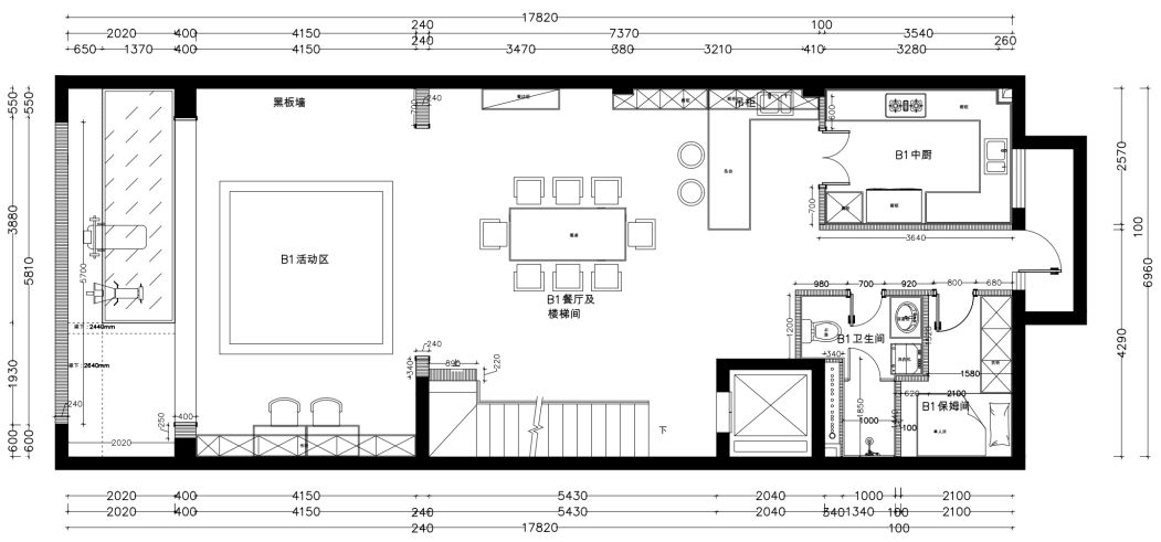
• 封闭地下一层和二层的挑空,最大化利用空间,改造成独属于家人的休闲区、健身区、就餐区。
• 双向入户,保留一至三层的超高挑空,彰显奢阔大气的待客尺度,也能让业主钟爱的艺术品展示出来。
• 儿童房设计既符合双胞胎的审美共性,在色彩、细节上体现个性。
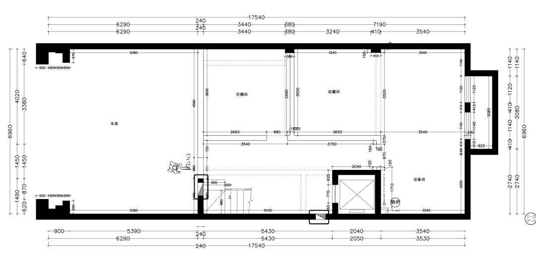
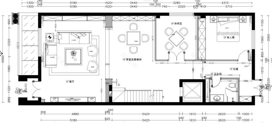
原始平面图
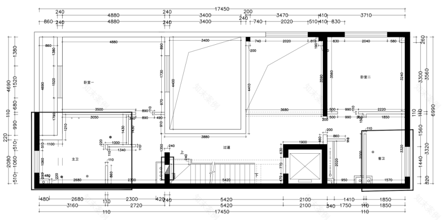
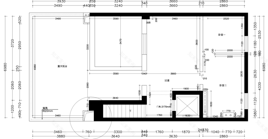
改造后平面图
负一层全开放式格局打破拘谨,开阔空间使人身心舒畅,也延伸出更多功能。整面黑板墙是孩子们的成长赠礼,不同空间的人各自做喜欢的事情,也能互相陪伴,均衡了家的亲密感。
餐厨区挪至负一层,与客厅相互独立,实现烹饪、日常互不干扰。
光影坠入黑色饰面,升腾出微弱的光泽感。黑色背景、灰色氛围、白色 C 位,三种色彩在餐厅里主次分明,焦点落在一饭一蔬、一家人身上。
客厅中运用了大量的黑色、灰色、金属色,深沉的色系融合顺畅的结构曲线,下沉式设计将家全面聚拢起来,与居住者拉近联系。
超高挑空和落地山水画,赋予客厅更多的高贵大气。吊顶和装饰组合形成的“飞鸟归林”的场景切合“回家”的意向,于主人来说,这是家的归属,对来访的宾客是热情的欢迎。
楼梯设计层层渐进,倚靠着巨幅山水画,缔造此起彼伏的群峰叠嶂。拾级而上,横看成岭侧成峰,远近高低各不同,给人一种“只缘身在此山中”的野趣。
一串饱满圆润的异形吊灯,如山涧清幽的铃兰又如秋季成熟的果实,引得飞鸟盘旋而来,给山林带来生命力,给空间增添独特的艺术品味。
两间长辈房的设计色调平和温暖,背景墙采用不同材质拼接设计。低饱和基调自带高级感,在空间中晕染开来,简约和舒适。
二层的卧房空间去繁就简,更加通透明净。两扇南北向的落地窗,即可俯瞰花园绿意,又可寄情笔墨山水,给人视觉和精神上的好兴致。
两间儿童房镜像设计,一样的布局和配置,满足双胞胎什么都要一样的心理。活力橙色如火焰热烈,宁静蓝色如海水深沉,颜色和细节上的区分,设计师读懂了相同外表下的不同内心世界。
双层床设计满足两兄弟幼年时日夜待在一起的心境,独立的书桌、储物及洗漱空间,不妨碍往后他们成为独立个体的需要,这细微的分寸感拿捏的十分到位。
主卧另辟蹊径,以“油画感”为设计语汇,素雅的卧室中加入孔雀蓝,瞬间活络起来。波光点点的地毯如一汪湛蓝的海水,几何天花下向上伸展的床头背景就是根根桅杆,夜幕降临,灰色的帆船返航静静停泊在家的港湾里。
金属材质的收边与柔和的哑光饰面互补,对应窗帘和柜子的蓝色跳色,赋予居室优雅的美和不落俗套的经典。
视线一转处即是衣帽间,也是书房,蓝色柜门温柔神秘,象征着私密场域向外扩散的保护欲。设计师以恰当比例从容运作蓝与黑,调和出宝贵的舒适与安宁。
设计理念:秉持着以人为本,情感再现的原则,始终坚持大处着眼,细处着手,从里到外,从外到里,局部与整体协调统一。为追寻自己的设计理念,游历世界各地著名建筑以及阅读世界知名建筑大师斯卡帕、柯布西耶等相关文献获取设计灵感。
行业经历:从事设计行业 20 年,2020 年参与博洛尼产品研发与展厅设计,形成自己独立的设计思想,空间几何理论研究与实践,坚持精致内敛的设计风格。2018-2020 年全国巡讲室内设计课程 70 多场,观众达到 10000 人以上。
获奖经历:2008 年荣获中国中青年杰出室内建筑师;2008 年荣获北京 10 大明星设计师;2008 年荣获全国主流户型设计大赛金奖;2008 年荣获北京主流户型设计大赛总冠军;2011 年荣获中国百名优秀设计师;2019 年荣获英国伦敦设计大奖银奖;2020 年荣获美国 MUSE 铂金奖;2020 年荣获英国伦敦杰出地产大奖;2020 年荣获意大利 A+设计大赛大奖;2020 年荣获国际房地产大赛大奖。
代表作品:丽宫/棕榈滩/优山美地/远洋天著等别墅区。更多精彩案例,点击“阅读原文”立即查看~
客服
消息
收藏
下载
最近



























































