查看完整案例


收藏

下载
完工视频欣赏
一杯咖啡、一本书籍、一叠点心,略去一身的疲惫。休息是一种放松,而休闲是一种生活方式。
项目地址:伊顿公馆
项目面积:88㎡
设计公司:时光里设计
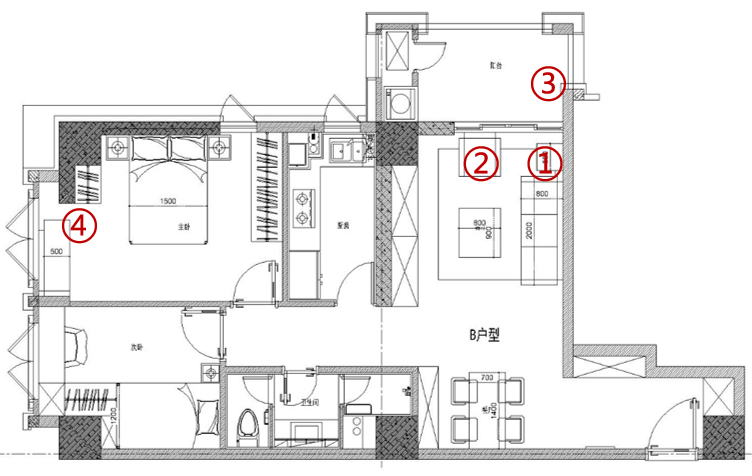
原始平面图
1.
边几和茶几功能重复,空间利用率较低
2.
休闲椅的放置阻碍了空间流动性
3
.
阳台空间没有利用,过于浪费
4.
主卧桌子与柜体之间的距离太窄
优化平面图
1.
将沙发与边几组合,增加了实用性
2.
选用茶几与休闲椅组合的形式,增加了休闲椅的灵活性
3.
阳台做成吧台的形式,增加休闲娱乐的功能
4.
将主卧桌子换成休闲椅,增加主卧舒适感
客厅软装前
客厅软装后
软装落地实拍
客厅跟餐厅是在一个空间,餐厅比较小,节省一些空间
而且不会影响厨房的进出,同时又拥有了一整面墙的收纳空间
。因为户型不大 收纳空间要考虑到,把电视墙一整面都做成了柜子,大大提升了居家的收纳功能。
干净的卧室用的都是浅色系,床背是直接拉通墙面。小窗下放了一个休闲沙发,在闲暇时候可以在窗户旁边休息喝茶。
次卧用的子母床,客人来的时候可以拉开,这样节省了空间
。
客服
消息
收藏
下载
最近



















