查看完整案例


收藏

下载
项目地址:
桐乡佳教集团一楼休闲娱乐区
室内面积:
205㎡
风格定位:
现代工业
空间设计:
孙曼英
施工单位:
青禾装饰工程有限公司
设计时间:
2020年5月
场地摄影:
SHMILY
设计说明:
以
电影为主题
在原有造型基础上的改造设计
保留了地面和顶面,以及部分木质造型背景
变换了木制品油漆颜色
原来的原木色清漆改成了相对沉稳的深棕色
功能上也进行了划分,分成两个动和静区域
由大厅进门靠近健身区的休闲娱乐区到安静的阅读区域
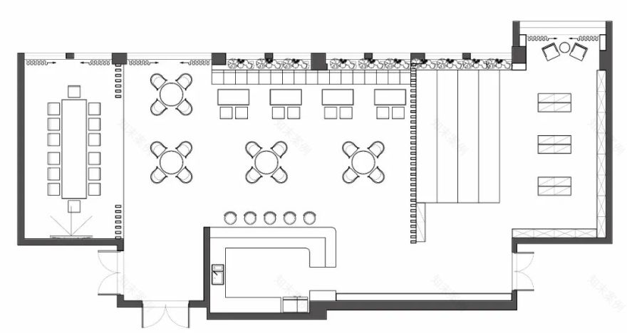
「 平 面 布 局 」
「 改 造 前 」
「 改 造 后
效
果
图 」
「 改 造 后
实
景
图 」
长 桌 区(小型非正式会议及沙龙)
↑
卡 座 区(小数目人员闲谈交流)
↑
吧 台 区(企业内部自助式或外部合作)
↑
阅 读 区(培养企业人员文化,丰富个人知识)
↑
项目地址:
桐乡佳教集团一楼
STEAM
创客教室
室内面积:
420㎡
风格定位:
北欧现代
空间设计:
孙曼英
施工单位:
嘉兴市青禾装饰工程有限公司
设计时间:
2020年5月
场地摄影:
SHMILY
设计说明:
STEAM
创客教室主要的使用群体是儿童
所以整体以原生态、自然、环保的主题展开设计
采用白色及原木色为主,桌椅选用可拼接,可呈现多种组合形式
拉近师生距离、促进交互式交流
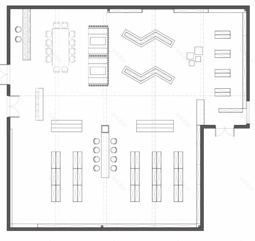
「 平 面 布 局 」
「
效
果
图 呈 现 」
「
实
景
图 」
南 面 大 教 室
↑
过 道 - 中轴 旋 转 玻 璃 门
↑
北 面 大 教 室
↑
南 面 等 候 区
↑
项目地址:
桐乡佳教集团六楼产品展示间
室内面积:
330㎡
风格定位:
现代工业
空间设计:
孙曼英
施工单位:
青禾装饰工程有限公司
设计时间:
2020年3月
场地摄影:
SHMILY
设计说明:
整体色调以白色和原木色为主浅灰色为辅
采用原木色木饰面搭配白色及小部分浅灰背景
营造简约、自然、原生态的空间氛围
凸出展示产品的设计理念及针对的消费群体
带给体验者一种亲和力的舒适感
「 平 面 布 局 」
「
效
果
图 呈 现 」
「
实
景
图 」
茶 水 台 及 洽 谈 区
↑
中 岛 展 示 区
↑
产 品 展 示 区
↑
休 闲 吧 台 区
↑
形 象 文 化 荣 誉 墙
↑
共 创 独 特 而 温 暖 的 家
地址
|
中华路与振华路交叉口易维商务楼
4
楼
|
0573 – 88360007
客服
消息
收藏
下载
最近








































