查看完整案例


收藏

下载
“白”不仅是一种颜色,白必须被称为设计理念”
——原研哉
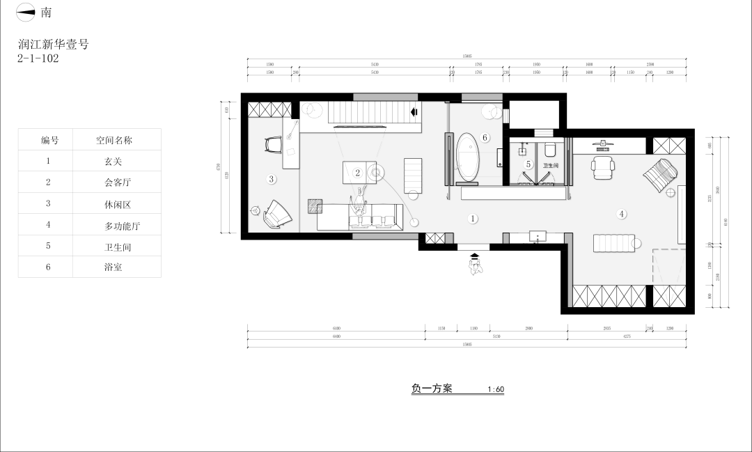
该项目是一个上下跃层空间,设计规划出一个更开放的布局,上下两层区分出寝居和休闲娱乐的空间,让居住者的生活更加独立和舒适:一层为业主的寝居空间,下跃空间为公共娱乐空间。塑造出“一层一世界”的丰富体验,契合当代年轻人的生活方式。
01
“上下有别 ,享受更自由的生活方式”
客厅
一步入下层客厅就能感受到空间的调性,简约而富有质感。客厅使用大色块的黑白对比加入一些木色的点缀,楼梯处玻璃材质的运用,增加了空间的通透度。简约克制的材料选择,让空间处处透露出井然有序。公共空间和日常起居分开的设计形式不仅扩大了各个空间的尺度,也使居住者的生活方式不再受到空间的限制,可以更自由地享受生活。
02
“自我领域 ,安放内心”
休闲区
休闲娱乐区保留大面积空间,让该区域具备多功能性;娱乐空间与寝居空间上下分离开来,快乐和生活互不影响,让居住者拥有了可以无负担放松的自我领域,也为娱乐方式扩大了限度。在地下空间中利用天井,搭配玻璃窗,将阳光最大程度地引入室内,使空间充分吸收自然光通透无比,更加有治愈感,身在其中也会很惬意放松。
卫生间
03
“自由通透 ,向阳而生”
餐厨
一层空间设置业主日常起居和生活空间。阳光肆意,空间敞亮。入户是开放式厨房,在纯净的白色空间中,黑色的倒台配以木色的桌椅增强了视觉重心。开放式餐厨与宽敞的阳台区域连为一体,增强了视觉的延伸感;自然光透过阳台的大落地窗照入室内,使空间更加通透敞阔。
主卧
客卧
卧室色彩大胆运用黑白对比,强调视觉重心,弱化界面感。合理规划窗口引入自然光,营造不同的光影场景,让室内的氛围宁静安定,调性沉稳简淡。
卫生间
项目名称:润江新华一号院
项目地址:河北石家庄
项目面积:196平米
设计团队:青禾设计团队
在理想主义的花园里
梦想的花朵格外绚丽
QINGHE
青禾
客服
消息
收藏
下载
最近






























