查看完整案例


收藏

下载
新中式&
NEW&
SPECIAL
现代元素
项目地址:金科·九曲河
面积/Area:534㎡
风格/Style:新中式
户型/House Type:联排中户
案例分析
本套方案是一个联排中户,但楼上的采光通风都是极好的,原本的花园也比较大。可是考虑到地下两层原本没有通风采光,这样就没有了较大的使用率。于是将部分花园下沉。增加了楼下的采光,也使空间更加通透。配色采用了经典的唐三彩色系配色,典雅别致又不失格调。
改造后的整个空间动线流畅,空间协调不拘谨,功能分区齐全。最大满足客户需求的同时也将空间作用最大化。
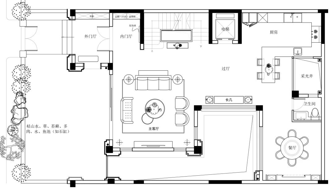
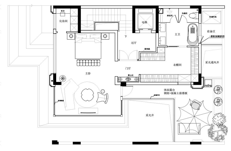
平面布置图
一楼
二楼
三楼
负一楼
负二楼
茶区
棕色系与蓝色系的交融,加以古朴典雅的中式家具。是对文人墨客的向往,也是对当下生活的熏陶。
餐厨区
以棕色系为主的配色,简单大气明了。既有复古的韵味,又有中式都有的沉稳。加以灰色系大理石砖的衬托,房间更雅致了许多。
客厅
水墨山水卷轴挂画,婀娜的松树,都像是一副别样的画。洋洋洒洒的几缕阳光,更像是从天而降的锦帛。
卧室
典型的中式家具布置,采用了墙画和墙板的组合,让空间更显的灵动。加上不对称的床头灯,让房间更加符合房主人的期望。
心若在流浪,随处皆是荒凉
心若在远行,到哪儿都是诗和远方。
往期推荐
Recommended in the past
▼▼▼
财信·赖特与山│享受自由,简单生活
嘉德庄园--实景现代美式风格X高奢生活品质
坡岭顿--实景现代美式别墅
✦
+
+
彭华设计团队
客服
消息
收藏
下载
最近
























