查看完整案例


收藏

下载
实景方案呈现
Live-action case Scheme
项目地址:重庆.茶园
设计团队:彭华设计团队
总面积:700平方米
风格:现代美式
户型:独栋别墅
坡岭顿小镇扼守南岸茶园新区世纪大道入口,是重庆主城区外环线上的纯独栋别墅社区。以原汁原味的西班牙风格为主体,并结合同属西班牙风格的圣塔芭芭拉风格和浪漫的意大利托斯卡纳风格,将充满激情和异域风情的世界经典建筑再现重庆。
结构 · 造型
| Structure & modelling
美式风格本就随着不同人的需求而变化,但是美式风格简单多元,浪漫优雅,舒适惬意的精神内核仍然不变。
一个个拱形的门洞,连接着不同的空间。
与其说它是一扇门,更不如说它是一条纽带,连接着生活的各个方式。
色彩 · 材质
| color & material
色彩对长时间在比较安静的室内空间中活动的人可以起到视觉调节的作用,同时,色彩对于在活动空间里的人可以起到舒缓视觉疲劳的作用。
通过与设计师的交流,发现设计师的浪漫情怀与屋主对房屋的陈设有着高度的共鸣,都认为色彩在繁琐事务堆积出来的生活里必不可少,见过了千篇一律的工作,总想着在自己家中找到独一无二的存在。所以,蓝色系和绿色系的融合就显得尤为重要。再加上法兰绒,金属镜面折射,木地板的质感,这便是美式独有的浪漫吧。
卧室
| living room
茶室
| teahouse
花园 ·小景
|garden
& small scene
▲ 负一楼平面方案
▲ 一楼平面方案
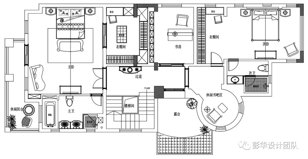
▲ 二楼平面方案
客服
消息
收藏
下载
最近









































