查看完整案例


收藏

下载
光影与空间的关系表达的淋漓尽致,演绎了一场人与景之间的对话,从秩序中寻求变化,赋予空间不同的情绪。
The relationship between light, shadow and space is expressed incisively and vividly, which deduces a dialogue between people and scenery, seeks change from the order, and gives different expressions to the space.
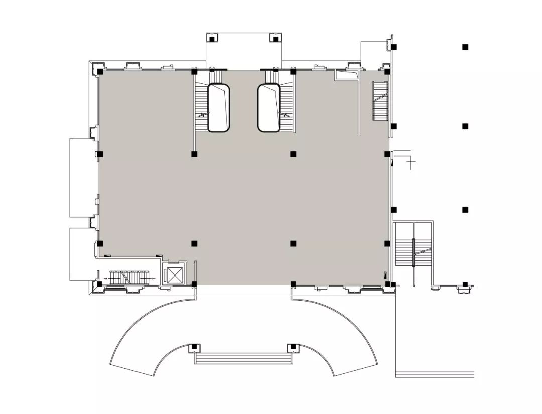
原始平面图⊿
现状分析:
Dynamic line analysis:
项目紧临湖面,平面强调空间中轴线关系,建筑为二层挑空空间,整面落地窗引进自然光线。
The project is close to the lake, and the plane emphasizes the relationship between the central axis of the space. The building is a two-story empty space, and the whole floor to ceiling window introduces natural light.
推演过程⊿
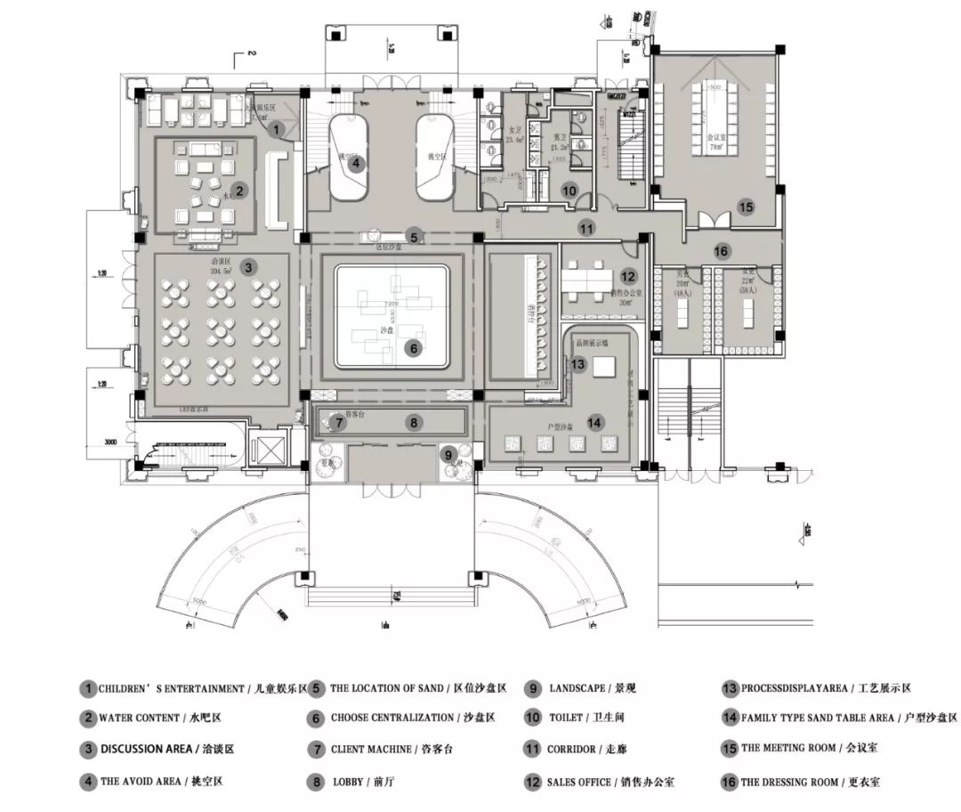
平面动线⊿
动线分析:
Dynamicline analysis:
平面布局强调空间中轴线关系,形成层层递进的空间序列与节奏,步换景移。
洽谈区秩序、统一、变化、将生活化场景延续到公共空间。
The plane layoutemphasizes the relationship between the axes of the space, forms the spacesequence and rhythm step by step. Order, unity, change and extension of lifescene to public space in the negotiation area.
改造后平面图⊿
炸裂图
⊿
实景图片⊿
光影与空间的关系表达的淋漓尽致,演绎了一场人与景之间的对话,在建筑通透的空间里自由行走。
The relationship between light, shadow and space is expressed incisively and vividly, which deduces a dialogue between people and landscape, walking freely in the transparent space of the building.
视觉中心构建立面灯光层次,白色与木色构建低调与清雅的调性。
The visual center constructs the facade light level, and the white and wood colors construct the low-key and elegant tone.
秩序中寻求变化,赋予空间不同的情绪。
Seeking change in order, giving different expressions in space.
光影与空间的关系表达的淋漓尽致,演绎了一场人与景之间的对话。
The relationship between light, shadow and space is expressed incisively and vividly, which deduces a dialogue between people and scenery.
洽谈区采用开放式格局,将每一处功能区连为一体的同时又不失井然有序,主次分明。
The negotiation area adopts an openpattern, connecting each functional area into a whole without losing order anddistinct priorities.
沏一盏清茶,观感自在闲适,将东方意境写进生活方式的每一个日常之中。
Make a cup of tea, feel comfortable and comfortable, and write the Oriental mood into every daily life style.
设计解构传统建筑元素,配以自然的松柏,闻茶,望山,观竹设计于此,在自然中寻觅张力,尝试回归于人心灵的感知。
Design deconstructs traditional architectural elements,with natural pines and cypresses, smell tea, look at mountains and view bamboo.Design here to seek tension in nature and try to return to the perception ofhuman mind.
运用弱对比色彩关系,希望通过植物景观装置使室外与室内自然结合。
Using weak contrast color relationship, we hope to combine outdoor and indoor nature through plant landscape device.
空间以自然宁静为基调,虚实结合设计手法,艺术装置与景观在朦胧中拉开层次,增加空间
灵动性。
The space is based on the natural tranquility, the combination of virtual and real design techniques, artistic installation and landscape in the hazy to open the level, increase the flexibility of the space.
沿中轴对称的空间布局呈现东方仪式感。
The spatial layout along the axis presents a sense of Oriental ritual.
工艺落地⊿
现场施工照片⊿
项目名称:
上湖嘉园营销中心
项目面积:
1500㎡
项目地址:
河南省郑州市上街区淮阳路
项目设计:
YI&NIAN壹念叁仟 | 观念事业部
主案设计:
李浩
设计团队:
李浩、郝斌、毛小龙、陈建行、弋帅博
主要用材:索菲亚灰
石材、卡乐板、木饰面、乱纹玫瑰金不锈钢、硬包
设计日期:
2018.10
竣工日期:
2019.06
下期文章:
叁仟 | SEEK BAR
叁仟 | 胡马八破 川小馆
以往文章:
豫发地产城市会客厅
漫·拾光-永丰乐城样板间
绿城智慧公园现代样板间——拾光
北龙湖139号—静谧
YI&NIAN 壹念叁仟
400-673-3000
客服
消息
收藏
下载
最近































